Anageia, Nicosia District, South Cyprus, 2460, Cyprus
Προς πώληση
€520,000
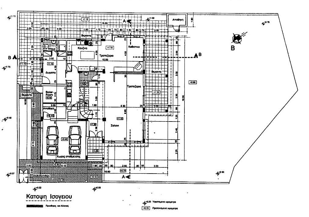
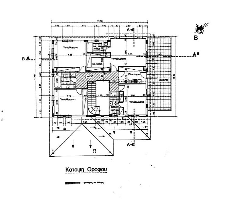
Πωλείται ανεξάρτητη μεταχειρισμένη μονοκατοικία τεσσάρων υπνοδωματίων συν δωμάτιο υπηρεσίας στα Ανάγεια – επαρχία Λευκωσίας, με 400 τ.μ. εσωτερικό χώρο, χτισμένη σε 768 τ.μ. οικόπεδο, το 2007. Διαθέτει κεντρική υποδαπέδια θέρμανση με ξεχωριστό θερμοστάτη σε κάθε χώρο και δωμάτιο, και κλιματισμό, en-suite σε 3 από τα υπνοδωμάτια, γκαρνταρόμπα στο κυρίως υπνοδωμάτιο, 2 χώρους για πλυσταριό, δωμάτιο υπηρεσίας, γραφείο, 5 χώρους υγιεινής, πιεστικό σύστημα νερού, blinds στα παράθυρα, σύστημα συναγερμού με κάμερες, διάτρηση και αυτόματο σύστημα ποτίσματος, αυλή με κήπο, γρασίδι και ψησταριά, 2 καλυμμένους χώρους στάθμευσης (τύπου side by side) με πόρτα και 4 αποθήκες. Τιμή πώλησης 520.000 ευρώ.
Owning a home is a keystone of wealth… both financial affluence and emotional security.
Suze OrmanTo provide the best experiences, we and our partners use technologies like cookies to store and/or access device information. Consenting to these technologies will allow us and our partners to process personal data such as browsing behavior or unique IDs on this site and show (non-) personalized ads. Not consenting or withdrawing consent, may adversely affect certain features and functions.
Click below to consent to the above or make granular choices. Your choices will be applied to this site only. You can change your settings at any time, including withdrawing your consent, by using the toggles on the Cookie Policy, or by clicking on the manage consent button at the bottom of the screen.