Μαζωτός, Mazotos, Λάρνακα, Κύπρος, 7577, Κύπρος
Προς πώληση
€1,650,000
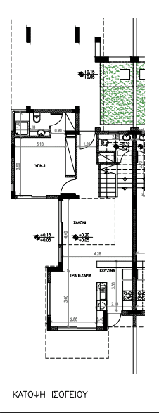
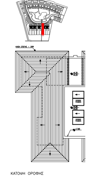
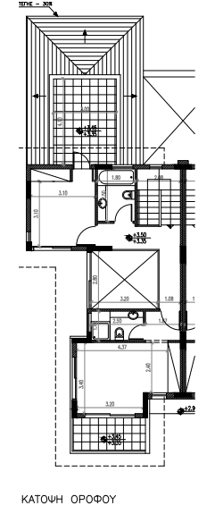
Πωλείται ημιανεξάρτητη πολυτελής έπαυλη τριών υπνοδωματίων στον Μαζωτό – επαρχία Λάρνακας, με ιδιωτική πισίνα, πάνω στην παραλία. Αποτελείται από 133 τ.μ. εσωτερικό καλυμμένο χώρο, 90 τ.μ. καλυμμένη βεράντα και 342 τ.μ. ιδιωτικό κήπο, σε 534 τ.μ. οικόπεδο. Η έπαυλη διαθέτει 4 χώρους υγιεινής, en suite στα 2 υπνοδωμάτια, πιεστικό σύστημα νερού, μεγάλη αυλή με ιδιωτική πισίνα, αποθήκη και χώρο στάθμευσης. Επίσης διαθέτει πλήρης επίπλωση και εξοπλισμένη κουζίνα. Βρίσκεται σε πολύ ωραία περιοχή με θέα τη θάλασσα. Τιμή πώλησης 1,650,000 ευρώ πλέον Φ.Π.Α.
Owning a home is a keystone of wealth… both financial affluence and emotional security.
Suze OrmanTo provide the best experiences, we and our partners use technologies like cookies to store and/or access device information. Consenting to these technologies will allow us and our partners to process personal data such as browsing behavior or unique IDs on this site and show (non-) personalized ads. Not consenting or withdrawing consent, may adversely affect certain features and functions.
Click below to consent to the above or make granular choices. Your choices will be applied to this site only. You can change your settings at any time, including withdrawing your consent, by using the toggles on the Cookie Policy, or by clicking on the manage consent button at the bottom of the screen.