Ψευδάς, Κύπρος
Προς πώληση
€180,000
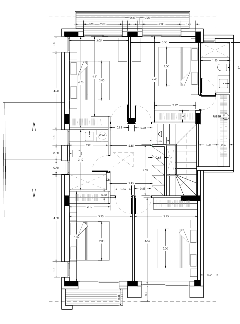
Πωλείται ημιτελές κατοικία τεσσάρων υπνοδωματίων στην περιοχή Ψευδάς – επαρχία Λάρνακας, με 200 τ.μ. καλυμμένο εσωτερικό χώρο σε 276 τ.μ οικόπεδο. Το ισόγειο αποτελείται από μεγάλο ενιαίο χώρο σαλόνι/κουζίνα/τραπεζαρία, μια τουλέτα επισκεπτών και αποθήκη. Ο πρώτος όροφος αποτελείται από τέσσερα μεγάλα υπνοδωμάτια και δύο χώρους υγιεινής εκ των οποίων en-suite στο κυρίως υπνοδωμάτιο μαζί με γκαρνταρόμπα. Ακολούθως διαθέτει και μια μεγάλη σοφίτα. Διαθέτει πρόνοια για σύστημα κλιματισμού και δύο καλυμμένους χώρους στάθμευσης. Η κατοικία πώλειται όπως έχει και την αποπεράτωση την αναλαμβάνει ο αγοραστής. Βρίσκεται σε ήσυχη περιοχή, γύρω από δάσος και χώρο πράσινου και από υπηρεσίες. Τιμή πώλησης 180,000 ευρώ. Δεν υπόκειται σε Φ.Π.Α.
Owning a home is a keystone of wealth… both financial affluence and emotional security.
Suze OrmanTo provide the best experiences, we and our partners use technologies like cookies to store and/or access device information. Consenting to these technologies will allow us and our partners to process personal data such as browsing behavior or unique IDs on this site and show (non-) personalized ads. Not consenting or withdrawing consent, may adversely affect certain features and functions.
Click below to consent to the above or make granular choices. Your choices will be applied to this site only. You can change your settings at any time, including withdrawing your consent, by using the toggles on the Cookie Policy, or by clicking on the manage consent button at the bottom of the screen.