Faneromeni Larnaca Municipality, Larnaca District, Cyprus
Προς μεταπώληση
€1,100,000
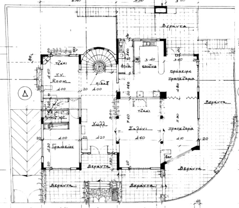
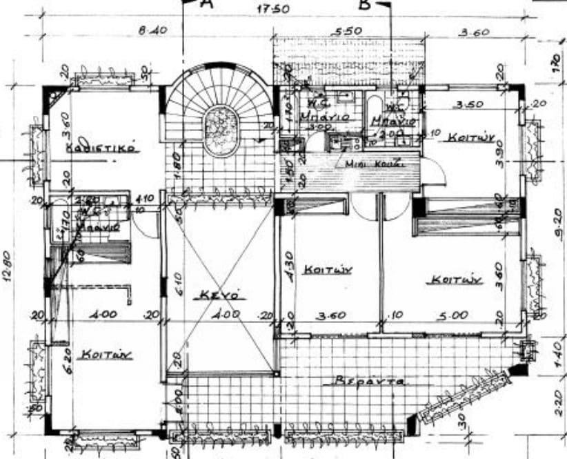
Πωλείται διώροφη ανεξάρτητη κατοικία επτά υπνοδωματίων στην περιοχή Φανερωμένη – επαρχία Λάρνακας, με 566 τ.μ. καλυμμένο χώρο, σε 524 τ.μ. οικόπεδο. Η κατοικία αποτελείται από ισόγειο, όροφο και υπόγειο. Στο ισόγειο βρίσκεται η τραπεζαρία, κουζίνα σαλόνι, γραφείο με ιδιωτικό μπάνιο, πλυσταριό και τουαλέτα ξένων, στον 1ο όροφο διαθέτει τέσσερα υπνοδωμάτια με en suite στα δύο υπνοδωμάτια καθώς και το κυρίως μπάνιο και στο υπόγειο υπάρχει ένα διαμέρισμα με ενιαίο σαλόνι και κουζίνα, ενα μπάνιο, δύο υπνοδωμάτια και αποθηκευτικό χώρο. Επίσης το ακίνητο διαθέτει κεντρική θέρμανση, συστήματα κλιματισμού, τζάκι, χώρο μπάρμπεκιου, πιεστικό σύστημα νερού, πέργκολα, φωτοβολταϊκό σύστημα και καλυμμένο χώρο στάθμευσης. Το ακίνητο είναι ιδανικά τοποθετημένο κοντά σε κάθε είδους υπηρεσίες και διευκολύνσεις. Επιπλέον διαθέτει και τίτλο ιδιοκτησίας για άμεση μεταβίβαση. Τιμή πώλησης 1,100,000 ευρώ. Δεν υπόκειται σε Φ.Π.Α.
Owning a home is a keystone of wealth… both financial affluence and emotional security.
Suze OrmanTo provide the best experiences, we and our partners use technologies like cookies to store and/or access device information. Consenting to these technologies will allow us and our partners to process personal data such as browsing behavior or unique IDs on this site and show (non-) personalized ads. Not consenting or withdrawing consent, may adversely affect certain features and functions.
Click below to consent to the above or make granular choices. Your choices will be applied to this site only. You can change your settings at any time, including withdrawing your consent, by using the toggles on the Cookie Policy, or by clicking on the manage consent button at the bottom of the screen.