Dromolaxia-Meneou Municipality, Larnaca District, Cyprus
Προς πώληση
€400,000
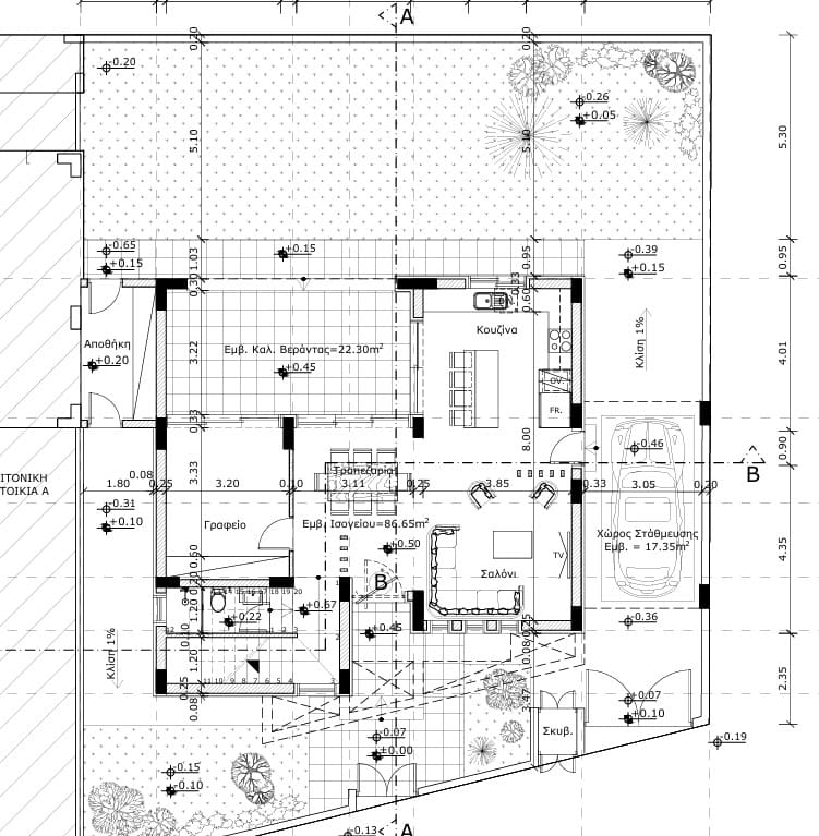
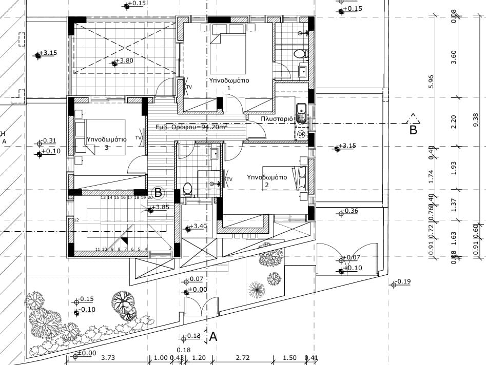
Πωλείται υπο ανέγερση κατοικία 3+1 υπνοδωματίων στη Δρομολαξιά – επαρχία Λάρνακας. Διαθέτει μεγάλους εσωτερικούς χώρους, στους οποίους το φυσικό φως μπαίνει άφθονο, ενώ η προσοχή στη λεπτομέρεια προσφέρει υψηλή ποιότητα ζωής. Η οικία αποτελείται από 181 τ.μ καλυμμένους εσωτερικούς χώρους, 22 τ.μ καλυμμένες βεράντες, σε οικόπεδο των 326 τ.μ. Διαθέτει εννιαίο και σύχρονο χώρο-σαλόνι με κουζίνα, γραφείο, 3 χώρους υγεινής, en suite στο κυρίως υπνοδωμάτιο, πιεστικό σύστημα νερού, διπλά τζάμια, καλυμμένο χώρο στάθμευσης και πρόνοια για σύστημα φωτοβολταϊκών. Εκμεταλλευόμενα τη δύναμη του ήλιου, αυτά τα ηλιακά πάνελ παράγουν καθαρή, ανανεώσιμη ενέργεια, μειώνοντας το οικολογικό αποτύπωμα και επιτυγχάνοντας οικονομία στην ηλεκτρική ενέργεια. Παράλληλα, ο σχεδιασμός του κτηρίου καθιστά την κατοικία ενεργειακά αποδοτική, φιλική στο περιβάλλον και οικονομική. Βρίσκεται σε εξαιρετική τοποθεσία για κατοικίες με εύκολη πρόσβαση στον αυτοκινητόδρομο που οδηγεί σε όλες τις πόλεις της Κύπρου. Τιμή πώλησης 400,000 ευρώ πλέον Φ.Π.Α.
Owning a home is a keystone of wealth… both financial affluence and emotional security.
Suze OrmanTo provide the best experiences, we and our partners use technologies like cookies to store and/or access device information. Consenting to these technologies will allow us and our partners to process personal data such as browsing behavior or unique IDs on this site and show (non-) personalized ads. Not consenting or withdrawing consent, may adversely affect certain features and functions.
Click below to consent to the above or make granular choices. Your choices will be applied to this site only. You can change your settings at any time, including withdrawing your consent, by using the toggles on the Cookie Policy, or by clicking on the manage consent button at the bottom of the screen.