Episkopi, Cyprus
Προς πώληση
€350,000
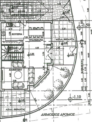
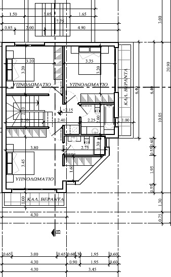
Πωλείται υπό ανέγερση ανεξάρτητη γωνιακή οικία τριών υπνοδωματίων στην περιοχή Επισκοπή της επαρχίας Λεμεσού. Αποτελείται από 145 τ.μ. καλυμμένο εσωτερικό χώρο, 22 τ.μ. καλυμμένη βεράντα, χτισμένη σε 165 τ.μ. οικόπεδο. Διαθέτει 3 χώρους υγιεινής εκ των οποίων en suite στο κυρίως υπνοδωμάτιο, πρόνοια για σύστημα κλιματισμού και θέρμανσης, πρόνοια για φωτοβολταϊκό σύστημα, πιεστικό σύστημα νερού, ηλιακό θερμοσίφωνα, διπλά τζάμια στα παράθυρα, αποθήκη και ακάλυπτο χώρο στάθμευσης. Το έργο διαθέτει πιστοποιητικό ενεργειακής απόδοσης Α και βρίσκεται σε καλή και ήσυχη περιοχή κοντά σε υπηρεσίες και ανέσεις. Η αναμενόμενη ημερομηνία παράδοσης είναι μέσα του 2026. Τιμή πώλησης 350,000 ευρώ, πλέον Φ.Π.Α.
Owning a home is a keystone of wealth… both financial affluence and emotional security.
Suze OrmanTo provide the best experiences, we and our partners use technologies like cookies to store and/or access device information. Consenting to these technologies will allow us and our partners to process personal data such as browsing behavior or unique IDs on this site and show (non-) personalized ads. Not consenting or withdrawing consent, may adversely affect certain features and functions.
Click below to consent to the above or make granular choices. Your choices will be applied to this site only. You can change your settings at any time, including withdrawing your consent, by using the toggles on the Cookie Policy, or by clicking on the manage consent button at the bottom of the screen.