Pyla, Larnaca District, Cyprus
Προς πώληση
€670,000
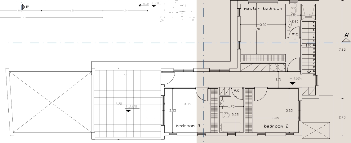
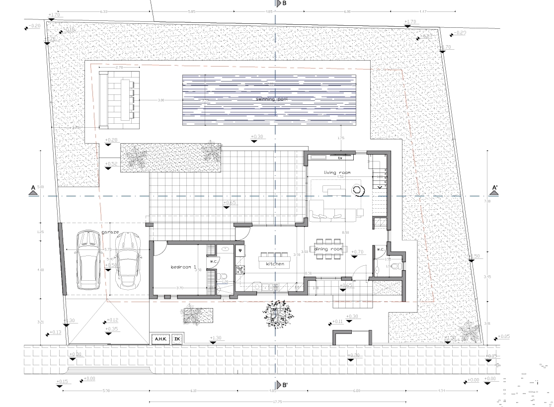
Πωλείται υπό ανέγερση ανεξάρτητη κατοικία τεσσάρων υπνοδωματίων στην Πύλα, επαρχία Λάρνακας. Αποτελείται από 190 τ.μ. καλυμμένο εσωτερικό χώρο, 25 τ.μ. μπαλκόνι και 36 τ.μ. χώρος στάθμευσης σε 635 τ.μ. οικόπεδο. Στο ισόγειο διαθέτει ενιαίο χώρο τραπεζαρία με καθιστικό, κουζίνα με νησίδα, ένα υπνοδωμάτιο με en-suite και μια τουαλέτα ξένων. Στον επάνω όροφο διαθέτει τρία υπνοδωμάτια όλα εκ των οποίων το κυρίως υπνοδωμάτιο με en-suite, ένα κοινό μπάνιο, πλυσταριό και 27 τ.μ. βεράντα. Επίσης διαθέτει παράθυρα με διπλά τζάμια, ιδιωτική πισίνα, εγκατεστημένο φωτοβολταϊκό σύστημα, αυλή με κήπο, δύο καλυμμένους χώρους στάθμευσης και δύο ακάλυπτους χώρους στάθμευσης. Επιπλέον διαθέτει και πρόνοια για εγκατάσταση κάμερες ασφαλείας και συναγερμού. Είναι Ενεργειακής Απόδοσης Α’. Βρίσκεται σε νέα ήσυχη περιοχή, με εύκολη πρόσβαση στον αυτοκινητόδρομο κοντά σε όλες τις υπηρεσίες και 5 λεπτά από την θάλασσα. Επιπλέον η οικία εμπίπτει στο νέο ακριτικό σχέδιο για κυβερνητική βοήθεια από 20,000 ευρώ μέχρι 55,000 ευρώ. Αναμενόμενη ημερομηνία παράδοσης τέλος του 2025. Τιμή πώλησης 670,000 ευρώ πλέον Φ.Π.Α.
Owning a home is a keystone of wealth… both financial affluence and emotional security.
Suze OrmanTo provide the best experiences, we and our partners use technologies like cookies to store and/or access device information. Consenting to these technologies will allow us and our partners to process personal data such as browsing behavior or unique IDs on this site and show (non-) personalized ads. Not consenting or withdrawing consent, may adversely affect certain features and functions.
Click below to consent to the above or make granular choices. Your choices will be applied to this site only. You can change your settings at any time, including withdrawing your consent, by using the toggles on the Cookie Policy, or by clicking on the manage consent button at the bottom of the screen.