Dimos Aradippou, Larnaca District, Cyprus
Προς πώληση
€380,000
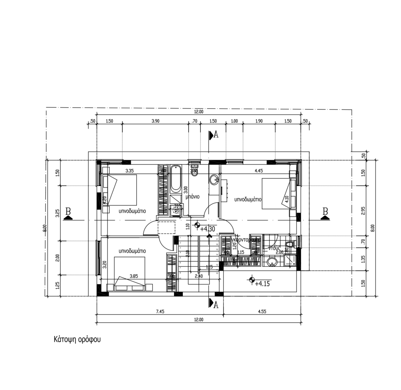
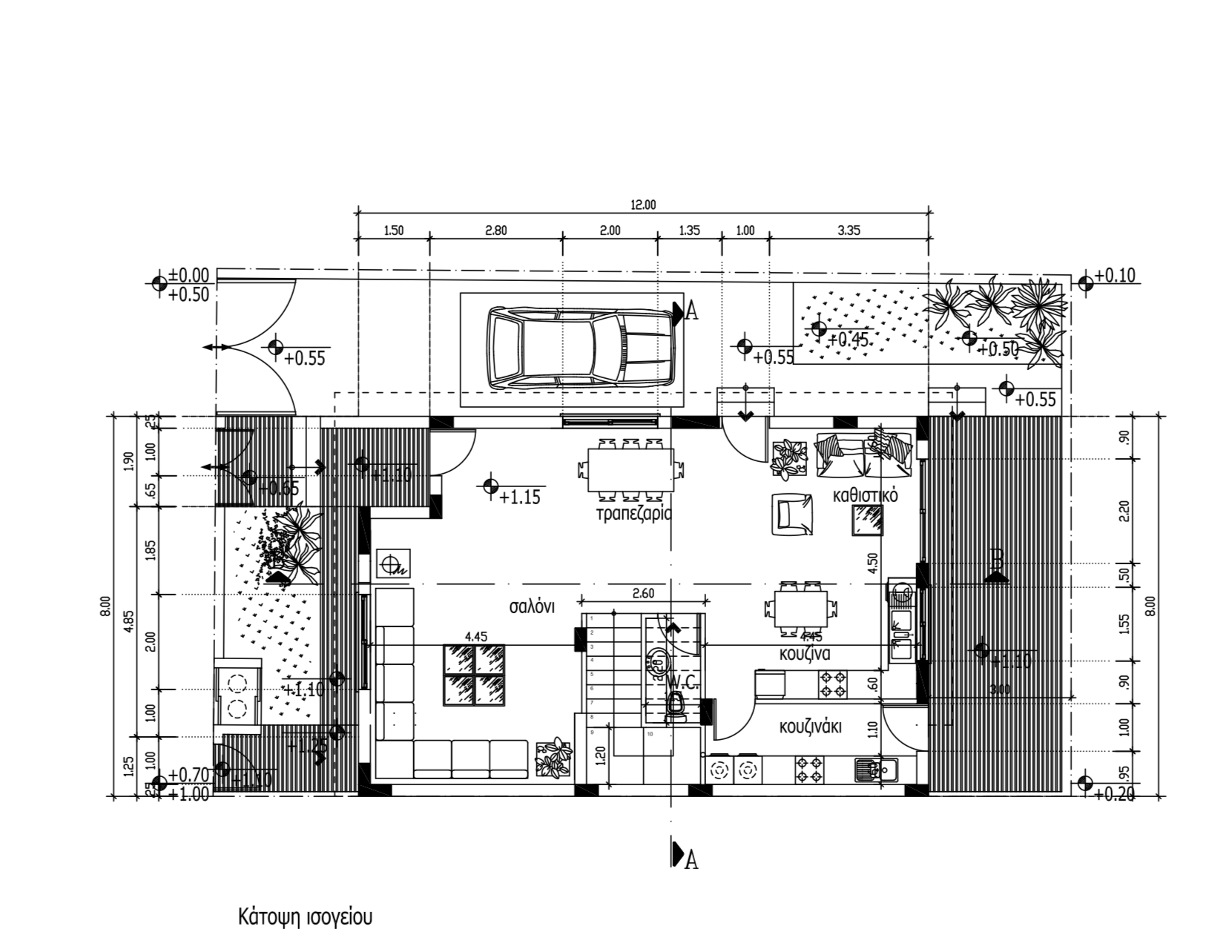
Πωλείται υπό ανέγερση ανεξάρτητη κατοικία τριών υπνοδωματίων στην Αραδίππου- επαρχία Λάρνακας, με 180 τ.μ. εσωτερικούς καλυμμένους χώρους, 27 τ.μ. καλυμμένες βεράντες και 50 τ.μ. κήπο οροφής σε 200 τ.μ. οικόπεδο. Το ισόγειο αποτελείται από ενιαίο χώρο τραπεζαρία με σαλόνι, ξεχωριστή κουζίνα με επιπλέον κουζινάκι και σαλονάκι, και μια τουαλέτα επισκεπτών. Ο όροφος αποτελείται από τρία υπνοδωμάτια και δύο χώρους υγιεινής εκ των οποίων ένα ιδιωτικό μπάνιο (en-suite) στο κυρίως υπνοδωμάτιο μαζί με γκαρνταρόμπα και ένα κοινό μπάνιο. Ακολουθεί εσωτερική σκάλα που οδηγεί στον κήπο οροφής η οποία διαθέτει ψησταριά αποθήκη και καλυμμένη/ακάλυπτη βεράντα. Εξωτερικά αποτελείται με καλυμμένη/ακάλυπτη βεράντα και δύο ακάλυπτους χώρους στάθμευσης. Επιπλέον διαθέτει πρόνοια κλιματισμού και εγκατεστημένο σύστημα φωτοβολταικών με άριστης ποιότητα κατασκευής, αλουμίνια με διπλό γυαλί, ψηλά ποσοστά θερμομόνωσης και ηχομόνωσης που καλύπτει τις προδιαγραφές για Ενεργειακή απόδοση Α’. Βρίσκεται σε πολύ καλή περιοχή κοντά σε υπηρεσίες όπως σχολεία, φαρμακεία, υπεραγορές, 5 λεπτά από τον αυτοκινητόδρομο και 10 λεπτά από το κέντρο της Λάρνακας και την θάλασσα. Αναμενόμενη ημερομηνία παράδοσης Απρίλιος 2026. Τιμή πώλησης 380,000 ευρώ πλέον Φ.Π.Α.
Owning a home is a keystone of wealth… both financial affluence and emotional security.
Suze OrmanTo provide the best experiences, we and our partners use technologies like cookies to store and/or access device information. Consenting to these technologies will allow us and our partners to process personal data such as browsing behavior or unique IDs on this site and show (non-) personalized ads. Not consenting or withdrawing consent, may adversely affect certain features and functions.
Click below to consent to the above or make granular choices. Your choices will be applied to this site only. You can change your settings at any time, including withdrawing your consent, by using the toggles on the Cookie Policy, or by clicking on the manage consent button at the bottom of the screen.