Δάλι, Καλλιθέα, Cyprus
Προς πώληση
€460,000
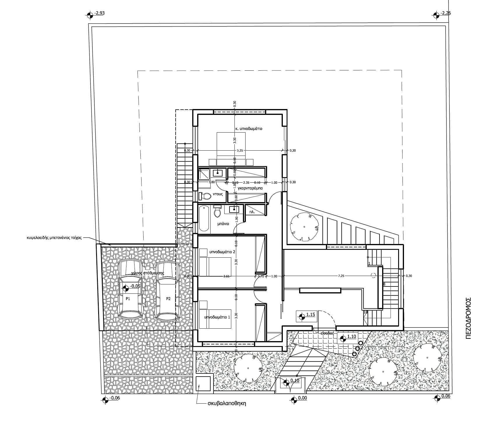
Πωλείται ανεξάρτητη υπό ανέγερση κατοικία τριών υπνοδωματίων στην Καλλιθέα – επαρχία Λευκωσίας, με 186,5 τ.μ. εσωτερικό καλυμμένο χώρο, σε 527 τ.μ. οικόπεδο. Διαθέτει πρόνοιες κεντρικής θέρμανσης και κλιματισμού, εγκατεστημένο φωτοβολταϊκό σύστημα, σύστημα ασφαλείας με κάμερες, θυροτηλεόραση, 3 χώρους υγιεινής, en suite και γκαρνταρόμπα στο κυρίως υπνοδωμάτιο, πιεστικό σύστημα νερού, αυλή με κήπο, 2 καλυμμένους χώρους στάθμευσης τύπου side by side και αποθήκη. Έχει έγκριση για πιστοποιητικό ενεργειακής Απόδοσης κλάσης Α’. Τιμή πώλησης 460,000 ευρώ συν Φ.Π.Α.
Owning a home is a keystone of wealth… both financial affluence and emotional security.
Suze OrmanTo provide the best experiences, we and our partners use technologies like cookies to store and/or access device information. Consenting to these technologies will allow us and our partners to process personal data such as browsing behavior or unique IDs on this site and show (non-) personalized ads. Not consenting or withdrawing consent, may adversely affect certain features and functions.
Click below to consent to the above or make granular choices. Your choices will be applied to this site only. You can change your settings at any time, including withdrawing your consent, by using the toggles on the Cookie Policy, or by clicking on the manage consent button at the bottom of the screen.