Kokkinotrimithia, Cyprus
Προς πώληση
€273,000
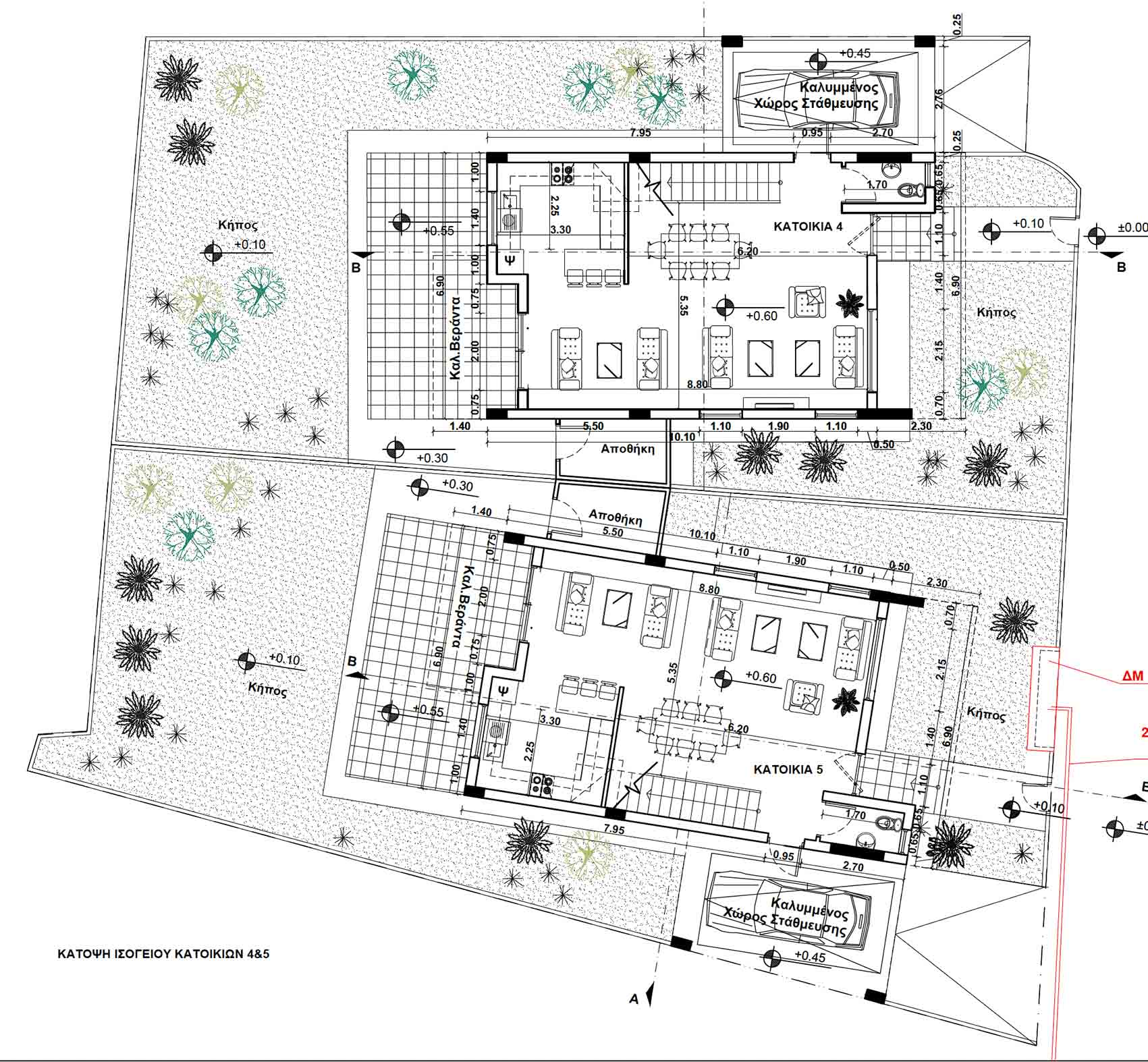
Πωλείται υπό ανέγερση ανεξάρτητη κατοικία τριών υπνοδωματίων στην Κοκκινοτριμιθιά – επαρχία Λευκωσίας, με 144 τ.μ. εσωτερικό χώρο, σε 279 τ.μ. οικόπεδο. Διαθέτει άριστη ποιότητα κατασκευής, με υψηλών προδιαγραφών μονώσεις, en-suite και γκαρνταρόμπα στο κυρίως υπνοδωμάτιο, 1 κυρίως μπάνιο στον όροφο και τουαλέτα ξένων στο ισόγειο, πρόνοια κλιματιστικών τύπου «split», πρόνοια ηλεκτρικής θέρμανσης ή πρόνοια για σώματα θέρμανσης, πρόνοια για σύστημα συναγερμού με κάμερες, εγκατεστημένο φωτοβολταϊκό σύστημα απόδοσης 3KW, καλυμμένο χώρο στάθμευσης, αλουμίνια με διπλό γυαλί και με ψηλά ποσοστά θερμομόνωσης και ηχομόνωσης και αυλή με κήπο. Η κατοικία βρίσκεται σε ήσυχη περιοχή, σε αδιέξοδο, κοντά σε χώρο πρασίνου και διαθέτει πιστοποιητικό Ενεργειακής απόδοσης Α’. Τιμή πώλησης 273,000 ευρώ πλέον Φ.Π.Α.
Owning a home is a keystone of wealth… both financial affluence and emotional security.
Suze OrmanTo provide the best experiences, we and our partners use technologies like cookies to store and/or access device information. Consenting to these technologies will allow us and our partners to process personal data such as browsing behavior or unique IDs on this site and show (non-) personalized ads. Not consenting or withdrawing consent, may adversely affect certain features and functions.
Click below to consent to the above or make granular choices. Your choices will be applied to this site only. You can change your settings at any time, including withdrawing your consent, by using the toggles on the Cookie Policy, or by clicking on the manage consent button at the bottom of the screen.