Γυμναστικός Συλλόγος «Τα Παγκύπρια», Giannou Kranidioti, Strovolos, Strovolos Municipality, Nicosia District, Cyprus, 2033, Cyprus
Προς πώληση
€367,000
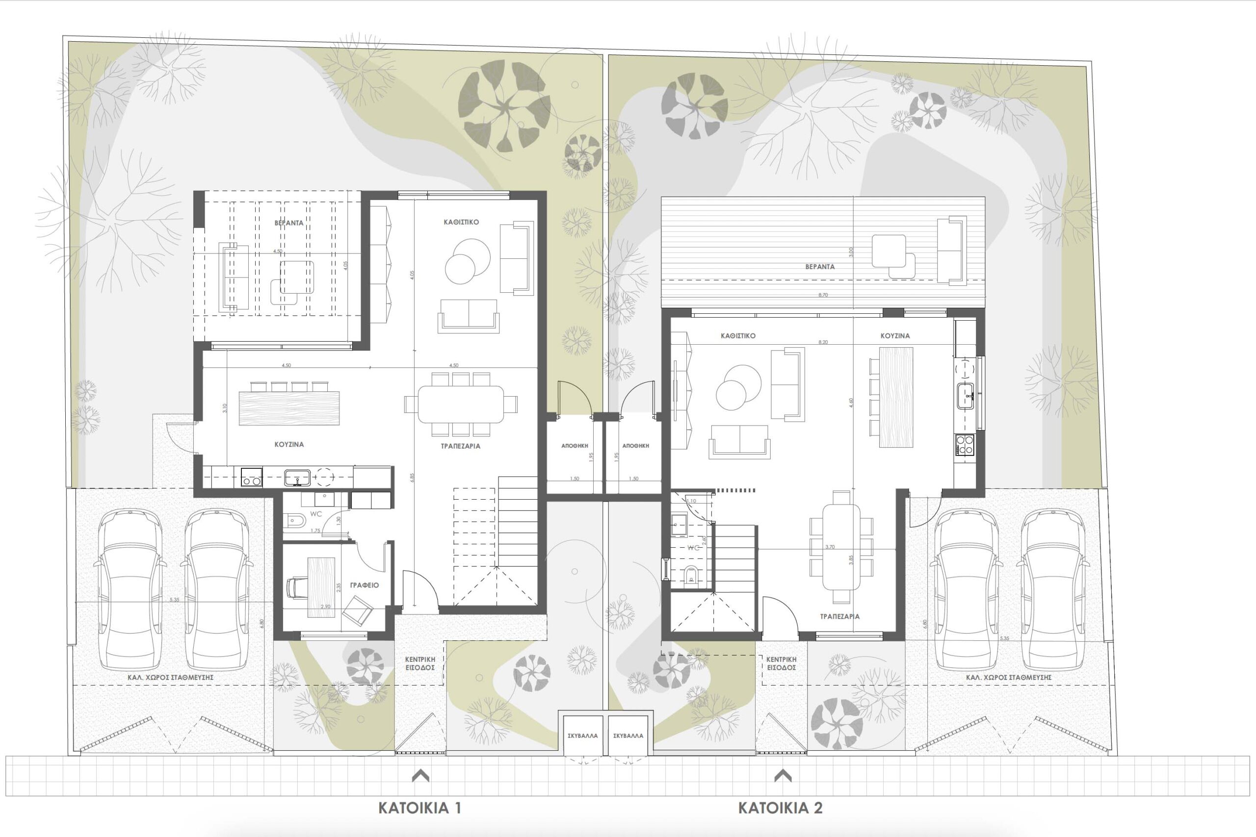
Πωλείται υπό ανέγερση ανεξάρτητη κατοικία τριών υπνοδωματίων στην περιοχή ΓΣΠ – επαρχία Λευκωσίας, με 152 τ.μ. καλυμμένο εσωτερικό χώρο, σε 253 τ.μ. οικόπεδο. Διαθέτει σύστημα θερμοπρόσοψης, κεντρική πόρτα ασφαλείας, τριφασική παροχή ρεύματος, πρόνοιες για ηλεκτρική κεντρική θέρμανση και κλιματισμό, en suite και στο κυρίως υπνοδωμάτιο, σύστημα θυροτηλεόρασης, πιεστικό σύστημα νερού, αυλή με κήπο, πρόνοια για ηλεκτρικό άνοιγμα καγκελόθυρων στον διπλό χώρο στάθμευσης τύπου side by side, πρόνοια για φόρτιση ηλεκτρικού αυτοκινήτου και αποθήκη. Η κατοικία διαθέτει ευρύχωρους εξωτερικούς χώρους κήπου σχεδιασμένους προσεκτικά για να εξισορροπούν το στυλ, τη λειτουργικότητα και την ενεργειακή απόδοση. Είναι Ενεργειακής απόδοσης Α’ με εγκατεστημένο φωτοβολταϊκό σύστημα απόδοσης 5KW. Τιμή πώλησης 367,000 ευρώ πλέον Φ.Π.Α.
Owning a home is a keystone of wealth… both financial affluence and emotional security.
Suze OrmanTo provide the best experiences, we and our partners use technologies like cookies to store and/or access device information. Consenting to these technologies will allow us and our partners to process personal data such as browsing behavior or unique IDs on this site and show (non-) personalized ads. Not consenting or withdrawing consent, may adversely affect certain features and functions.
Click below to consent to the above or make granular choices. Your choices will be applied to this site only. You can change your settings at any time, including withdrawing your consent, by using the toggles on the Cookie Policy, or by clicking on the manage consent button at the bottom of the screen.