Larnaca, Larnaca District, Cyprus
Προς πώληση
€390,000
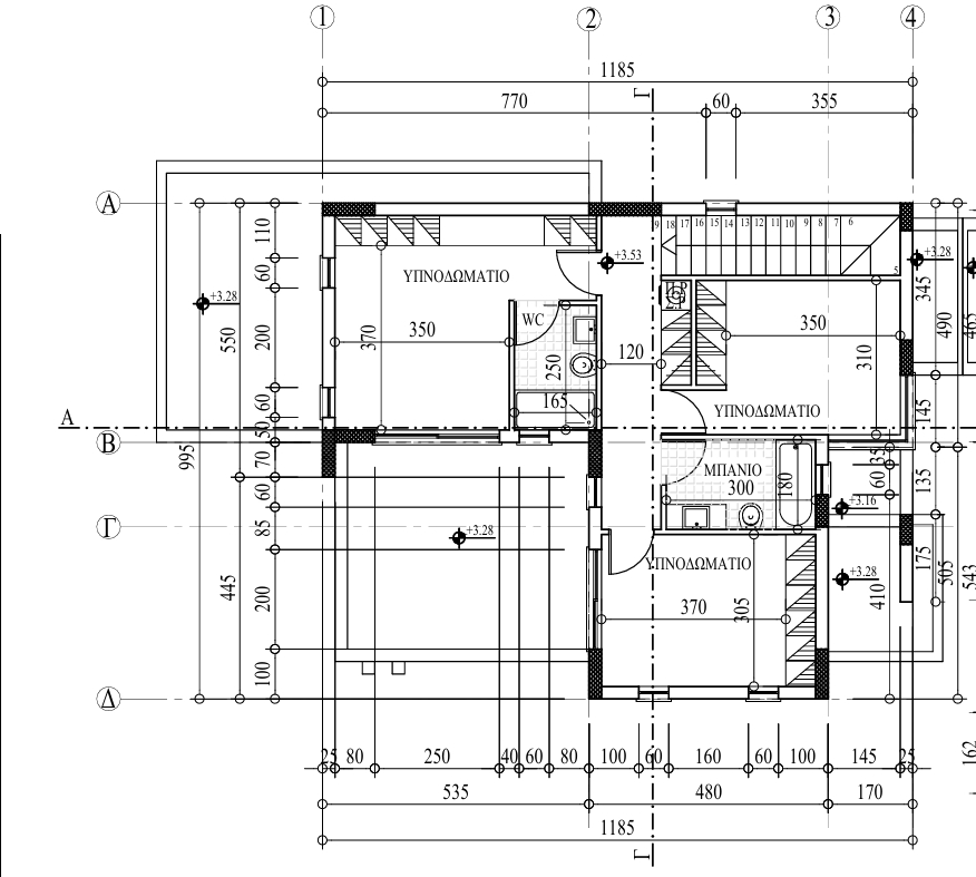
Πωλείται υπό ανέγερση ανεξάρτητη κατοικία τριών υπνοδωματίων στην περιοχή Κρασά – επαρχία Λάρνακας, με 170 τ.μ. καλυμμένο εσωτερικό χώρο σε 265 τ.μ. οικόπεδο. Το ισόγειο αποτελείται από ενιαίο χώρο σαλόνι/κουζίνα/τραπεζαρία και μια τουλέτα επισκεπτών. Ο πρώτος όροφος αποτελείται από τρία υπνοδωμάτια και δύο χώρους υγιεινής εκ των οποίων ένα en-suite στο κυρίως υπνοδωμάτιο. Διαθέτει πρόνοιες για συστήματα κλιματισμού, καλυμμένο χώρο στάθμευσης, αποθήκη και αυλή με κήπο. Επίσης είναι Ενεργειακής Απόδοσης Α’. Βρίσκεται σε ήσυχη γειτονιά κοντά σε πολλές υπηρεσίες. Τιμή πώλησης 390,000 ευρώ πλέον Φ.Π.Α.
Owning a home is a keystone of wealth… both financial affluence and emotional security.
Suze OrmanTo provide the best experiences, we and our partners use technologies like cookies to store and/or access device information. Consenting to these technologies will allow us and our partners to process personal data such as browsing behavior or unique IDs on this site and show (non-) personalized ads. Not consenting or withdrawing consent, may adversely affect certain features and functions.
Click below to consent to the above or make granular choices. Your choices will be applied to this site only. You can change your settings at any time, including withdrawing your consent, by using the toggles on the Cookie Policy, or by clicking on the manage consent button at the bottom of the screen.