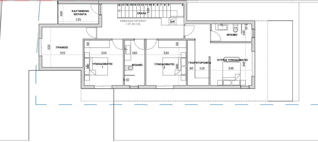
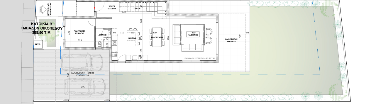
Πωλείται υπό ανέγερση ανεξάρτητη μοντέρνα και πολυτελής οικία πέντε υπνοδωματίων στην περιοχή Αραδίπου της επαρχίας Λάρνακας, μια από τις πιο αναπτυσσόμενες και περιζήτητες τοποθεσίες , που συνδυάζει άνεση, ηρεμία και άμεση πρόσβαση σε όλες τις απαραίτητες υπηρεσίες και ανέσεις. Αποτελείται από 215 τ.μ. καλυμμένο εσωτερικό χώρο και 389 τ.μ. οικόπεδο, προσφέροντας ιδανική ισορροπία μεταξύ λειτουργικότητας και εξωτερικών χώρων για στιγμές χαλάρωσης και φιλοξενίας. Η οικία διαθέτει 3 χώρους υγιεινής εκ των οποίων en suite στο κυρίως υπνοδωμάτιο μαζί με ευρύχωρη γκαρνταρόμπα, πρόνοια για σύστημα κλιματισμού και θέρμανσης για απόλυτη άνεση καθ’ όλη τη διάρκεια του χρόνου, πιεστικό σύστημα νερού, ηλεκτρικά ρολά στα παράθυρα για επιπλέον ασφάλεια και ιδιωτικότητα, ηλιακό θερμοσίφωνα και σύγχρονο φωτοβολταϊκό σύστημα που συμβάλλει σημαντικά στη μείωση του ενεργειακού κόστους. Επιπλέον περιλαμβάνει αποθήκη, όμορφο ιδιωτικό κήπο, καλυμμένη και ακάλυπτη βεράντα ιδανική για στιγμές χαλάρωσης ή κοινωνικές συγκεντρώσεις, καθώς και καλυμμένο χώρο στάθμευσης. Το έργο διαθέτει πιστοποιητικό ενεργειακής απόδοσης Α, διασφαλίζοντας υψηλά επίπεδα ενεργειακής αποδοτικότητας και ποιότητας κατασκευής, και βρίσκεται σε εξαιρετική τοποθεσία κοντά σε σχολεία, καταστήματα και βασικούς οδικούς άξονες. Η αναμενόμενη ημερομηνία παράδοσης είναι τον Μάϊο του 2027.Τιμή πώλησης 445,000 ευρώ, πλέον Φ.Π.Α.