Ypsonas Municipality, Limassol District, Cyprus
Προς πώληση
€545,000
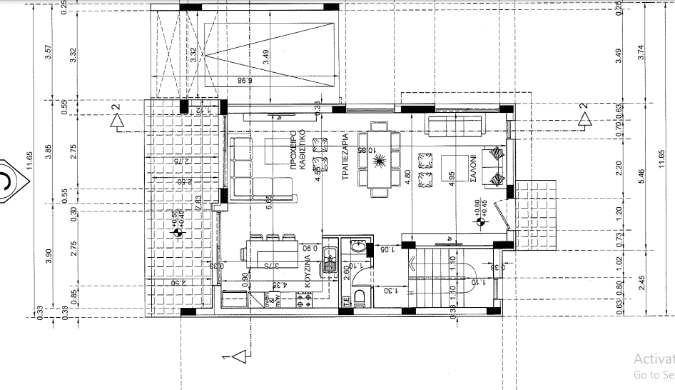
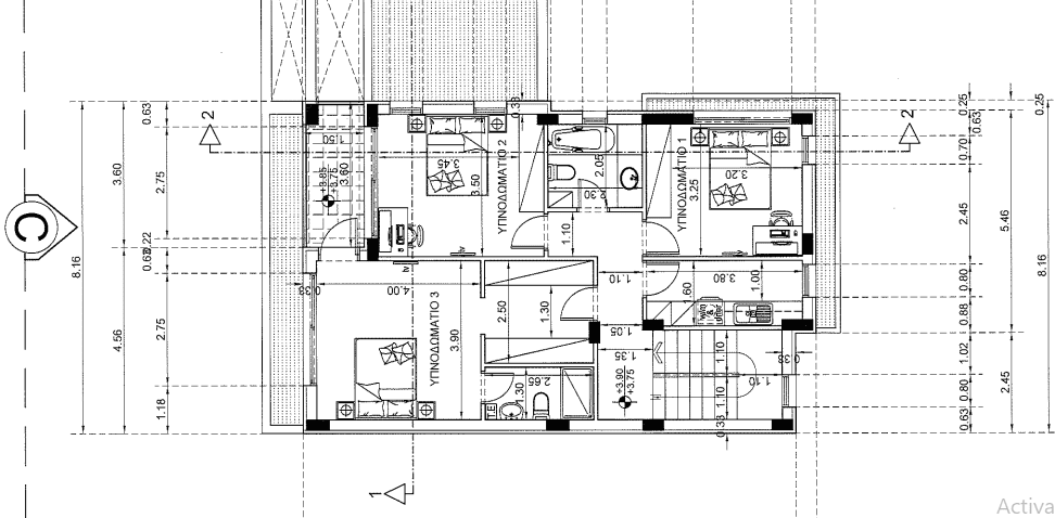
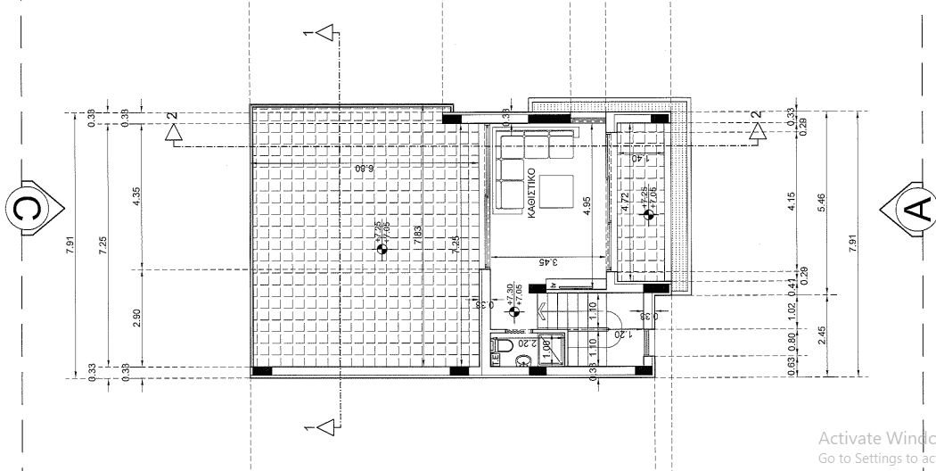
Πωλείται ανεξάρτητη οικία τριών υπνοδωματίων στον Άγιο Συλά στη Λεμεσό. Αποτελείται από 216 τ.μ. καλυμμένους εσωτερικούς χώρους, 26 τ.μ. καλυμμένες βεράντες και 50 τ.μ. ακάλυπτες βεράντες σε 233 τ.μ. οικόπεδο. Διαθέτει 4 χώρους υγιεινής, en suite στο κυρίως υπνοδωμάτιο, καλυμμένο χώρο στάθμευσης, αποθήκη, αυλή, πρόνοιες κλιματισμού και θέρμανσης. Στον δεύτερο όροφο υπάρχει ένα επιπλέον σαλόνι και χώρος υγιεινής. Είναι Ενεργειακής Απόδοσης Α’. Αναμενόμενη ημερομηνία παράδοσης τον Μάϊο του 2025. Βρίσκεται σε πολύ ωραία περιοχή και κονντά σε υπηρεσίες. Τιμή πώλησης 545,000 πλέον Φ.Π.Α..
Owning a home is a keystone of wealth… both financial affluence and emotional security.
Suze OrmanTo provide the best experiences, we and our partners use technologies like cookies to store and/or access device information. Consenting to these technologies will allow us and our partners to process personal data such as browsing behavior or unique IDs on this site and show (non-) personalized ads. Not consenting or withdrawing consent, may adversely affect certain features and functions.
Click below to consent to the above or make granular choices. Your choices will be applied to this site only. You can change your settings at any time, including withdrawing your consent, by using the toggles on the Cookie Policy, or by clicking on the manage consent button at the bottom of the screen.