Protaras, Paralimni, Famagusta District, Cyprus, 5297, Cyprus
Προς πώληση
€465,000
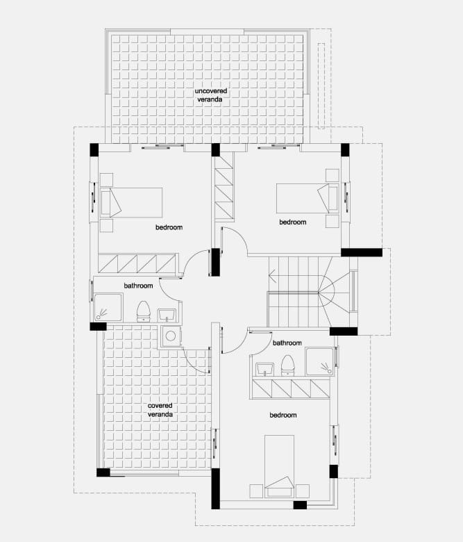
Πωλείται υπό ανέγερση ανεξάρτητη κατοικία τριών υπνοδωματίων στον Πρωταρά – επαρχία Αμμόχωστος, με 127 τ.μ. εσωτερικό καλυμμένο χώρο, 24 τ.μ καλυμμένη βεράντα, 27 τ.μ. ακάλυπτη βεράντα και 32 τ.μ. ιδιωτική πισίνα, σε 420 τ.μ. οικόπεδο. Διαθέτει 3 χώρους υγεινής, en-suite στο κυρίως υπνοδωμάτιο, πρόνοια για συστήματα κλιματισμού, πρόνοια για σύστημα φωτοβολταϊκών, 2 καλυμμένους χώρους στάθμευσης, αυλή με κήπο και αποθήκη. Η οικία βρίσκεται σε ήσυχο περιβάλλον κοντά σε υπηρεσίες, χώρο πρασίνου και σε απόσταση αναπνοής από τις πολυσύχναστες παραλίες του Πρωταρά. Επίσης διαθέτει πιστοποιητικό Ενεργειακής Απόδοσης Α’. Τιμή πώλησης 465.000 ευρώ πλέον Φ.Π.Α.
Owning a home is a keystone of wealth… both financial affluence and emotional security.
Suze OrmanTo provide the best experiences, we and our partners use technologies like cookies to store and/or access device information. Consenting to these technologies will allow us and our partners to process personal data such as browsing behavior or unique IDs on this site and show (non-) personalized ads. Not consenting or withdrawing consent, may adversely affect certain features and functions.
Click below to consent to the above or make granular choices. Your choices will be applied to this site only. You can change your settings at any time, including withdrawing your consent, by using the toggles on the Cookie Policy, or by clicking on the manage consent button at the bottom of the screen.