Δεκέλεια
Προς πώληση
€680,000
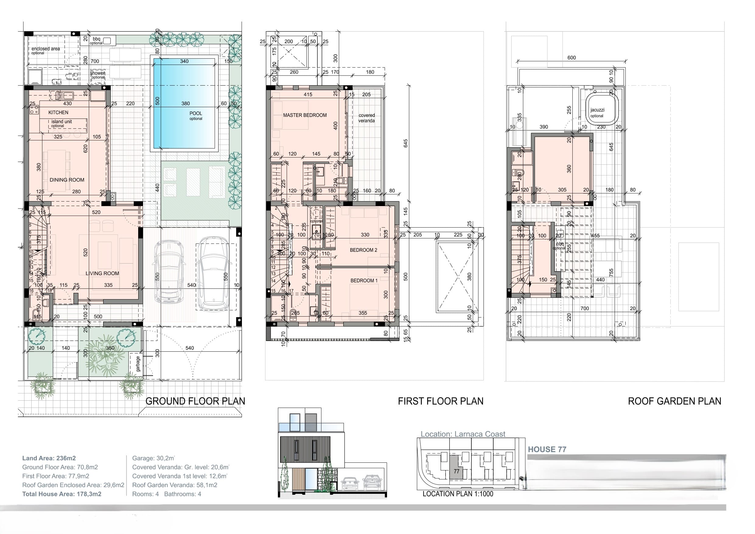
Πωλείται υπό ανέγερση ανεξάρτητη πολυτελής οικία τεσσάρων υπνοδωματίων στην Δεκέλεια, επαρχία Λάρνακας. Αποτελείται από 179 τ.μ. καλυμμένο εσωτερικό χώρο, 34 τ.μ. καλυμμένες βεράντες και 88 τ.μ. κήπο οροφής σε 236 τ.μ. οικόπεδο. Διαθέτει τέσσερις χώρους υγιεινής, en suite σε όλα τα υπνοδωμάτια, μοντέρνα και πολυτελής κουζίνα με ενιαίο χώρο για το καθιστικό, δύο καλυμμένους χώρους στάθμευσης τύπου side by side και μεγάλη αυλή με πρόνοια πισίνας. Επιπλέον διαθέτει και πρόνοια για ανέγερση πέμπτου δωματίου στον κήπο οροφής. Είναι Ενεργειακής Απόδοσης Α’. Βρίσκεται σε εξαιρετική τοποθεσία σε μια ήσυχη περιοχή και μόλις 200 μέτρα από μια από τις πολλές αμμώδεις παραλίες που έχουν βραβευτεί με Γαλάζια Σημαία. Τα δύο πανεπιστήμια του UCLAN και του Αμερικανικού Πανεπιστημίου Κύπρου είναι εύκολα προσβάσιμα. Η περιοχή προσφέρει επίσης όλες τις απαραίτητες ανέσεις όπως σούπερ μάρκετ, τράπεζες, φαρμακεία, καταστήματα καθώς και εύκολη πρόσβαση στον αυτοκινητόδρομο που συνδέει όλες τις μεγάλες πόλεις της Κύπρου, κάνοντας το Διεθνές Αεροδρόμιο Λάρνακας σε απόσταση μόλις 15 λεπτών οδικώς και μόλις 25 λεπτών από τη διάσημη Αγία Νάπα και τον Πρωταρά. Αναμενόμενη ημερομηνία παράδοσης Μάρτιος του 2026. Τιμή πώλησης 680.000 ευρώ πλέον Φ.Π.Α.
Owning a home is a keystone of wealth… both financial affluence and emotional security.
Suze OrmanTo provide the best experiences, we and our partners use technologies like cookies to store and/or access device information. Consenting to these technologies will allow us and our partners to process personal data such as browsing behavior or unique IDs on this site and show (non-) personalized ads. Not consenting or withdrawing consent, may adversely affect certain features and functions.
Click below to consent to the above or make granular choices. Your choices will be applied to this site only. You can change your settings at any time, including withdrawing your consent, by using the toggles on the Cookie Policy, or by clicking on the manage consent button at the bottom of the screen.