Kapparis, Παραλίμνι, Κύπρος
Προς πώληση
€760,000
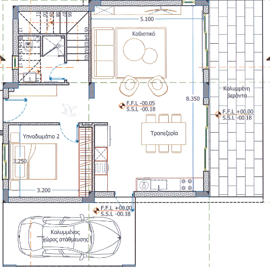
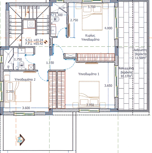
Πωλείται υπό ανέγερση ανεξάρτητη πολυτελής κατοικία τεσσάρων υπνοδωματίων στην περιοχή Κάππαρη – επαρχία Αμμοχώστου. Η οικία αποτελείται από 160 τ.μ καλυμμένους εσωτερικούς χώρους, 22 τ.μ. καλυμμένες βεράντες και 82 τ.μ κήπο οροφής χτισμένη σε 349 τ.μ οικόπεδο. Στο ισόγειο διαθέτει ενιαίο χώρο καθιστικό/τραπεζαρία/κουζίνα, ένα υπνοδωμάτιο και μια τουαλέτα επισκεπτών. Στον επάνω όροφο διαθέτει τρία υπνοδωμάτια, δύο χώρους υγεινής εκ των οποίων en-suite στο κυρίως υπνοδωμάτιο και καλυμμένες και ακάλυπτες βεράντες. Ακολούθως υπάρχουν σκαλιά που οδηγούν στον κήπο οροφής. Εξωτερικά διαθέτει ιδιωτική πισίνα, κήπος, χώρος μπάρμπεκιου, πάγκο με βρύση, εξωτερικό ντουζ και καλυμμένο χώρο στάθμευσης. Επιπρόσθετα διαθέτει πιεστικό νερού, πρόνοιες για σύστημα κλιματισμού, πρόνοιες για εγκατάσταση κάμερες CCTV και συναγερμού και πρόνοια κεντρικής θέρμανσης. Προαιρετικά με επιπλέον χρέωση υπάρχει δυνατότητα για ανέγερση υπογείου. Βρίσκεται κοντά σε όλες τις υπηρεσίες, 5 λεπτά από τις καταγάλανες παραλίες του Κάππαρη και πολύ κοντά από το κέντρο του Πρωταρά. Τιμή πώλησης 760,000 ευρώ πλέον Φ.Π.Α.
Owning a home is a keystone of wealth… both financial affluence and emotional security.
Suze OrmanTo provide the best experiences, we and our partners use technologies like cookies to store and/or access device information. Consenting to these technologies will allow us and our partners to process personal data such as browsing behavior or unique IDs on this site and show (non-) personalized ads. Not consenting or withdrawing consent, may adversely affect certain features and functions.
Click below to consent to the above or make granular choices. Your choices will be applied to this site only. You can change your settings at any time, including withdrawing your consent, by using the toggles on the Cookie Policy, or by clicking on the manage consent button at the bottom of the screen.