Latsia, Greater Nicosia, Nicosia District, Cyprus
Προς πώληση
€235,000
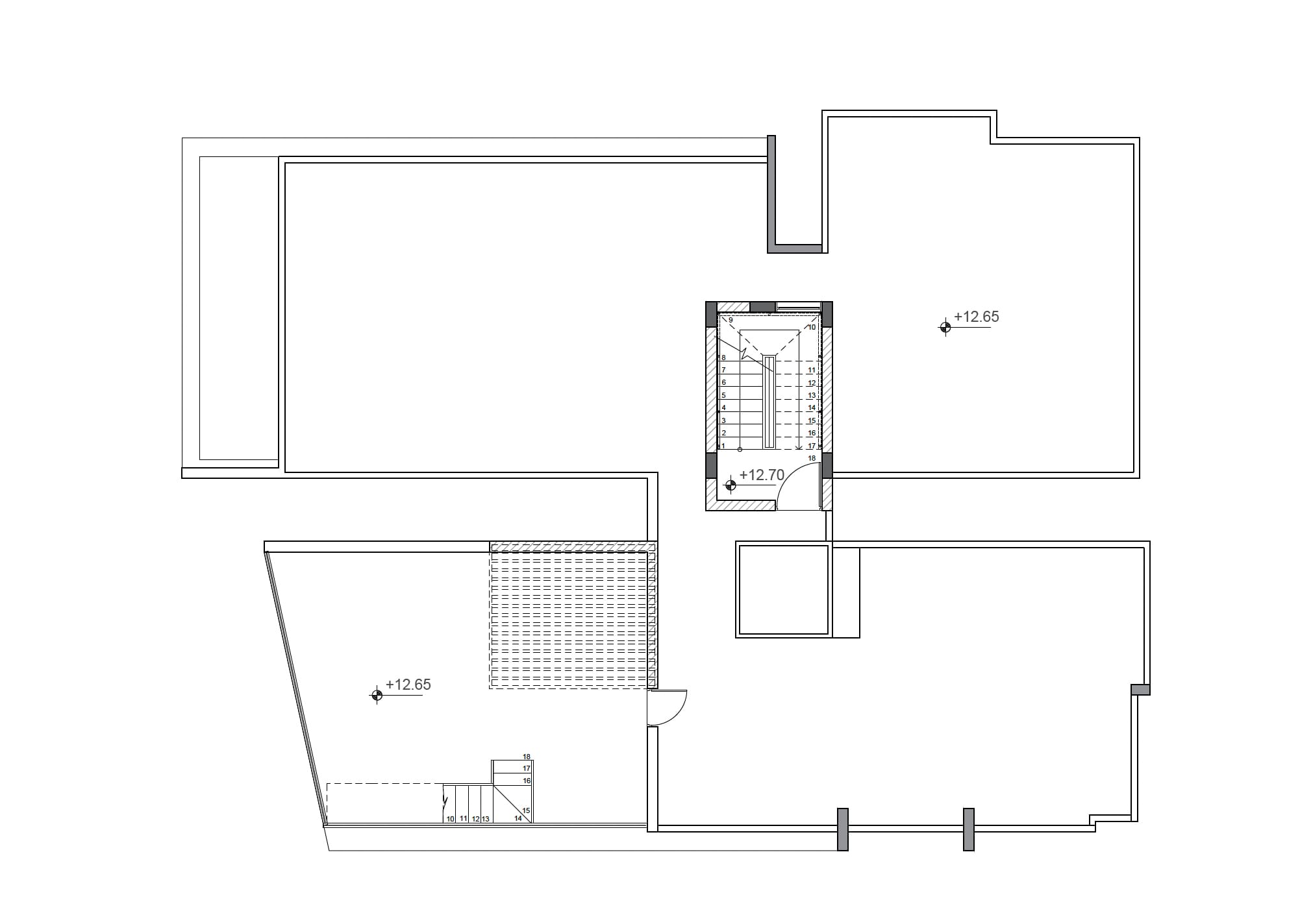
Πωλείται υπό ανέγερση ανεξάρτητο διαμέρισμα τριών υπνοδωματίων στα Λατσιά – επαρχία Λευκωσίας, στον 1ο όροφο τριώροφης πολυκατοικίας με 8 διαμερίσματα στο σύνολο, με 102 τ.μ. εσωτερικούς χώρους και 30,5 τ.μ. καλυμμένη βεράντα, με υψηλές προδιαγραφές κατασκευής. Διαθέτει πλήρη εγκατάσταση κλιματιστικών για ζεστό και κρύο αέρα σε σαλόνι και υπνοδωμάτια, θερμομονωτικά αλουμίνια με διπλό γυαλί, εγκατεστημένο φωτοβολταϊκό σύστημα, en-suite στο κυρίως υπνοδωμάτιο, ηλιακό θερμοσίφωνα, πιεστικό σύστημα νερού, θυροτηλεόραση, καλυμμένο χώρο στάθμευσης και αποθήκη. Διαθέτει πιστοποιητικό Ενεργειακής Απόδοσης Α’. Τιμή πώλησης 235.000 ευρώ συν Φ.Π.Α.
Owning a home is a keystone of wealth… both financial affluence and emotional security.
Suze OrmanTo provide the best experiences, we and our partners use technologies like cookies to store and/or access device information. Consenting to these technologies will allow us and our partners to process personal data such as browsing behavior or unique IDs on this site and show (non-) personalized ads. Not consenting or withdrawing consent, may adversely affect certain features and functions.
Click below to consent to the above or make granular choices. Your choices will be applied to this site only. You can change your settings at any time, including withdrawing your consent, by using the toggles on the Cookie Policy, or by clicking on the manage consent button at the bottom of the screen.