Aglandjia, Aglangia, Nicosia, Nicosia District, Cyprus, 2114, Cyprus
Προς πώληση
€180,000
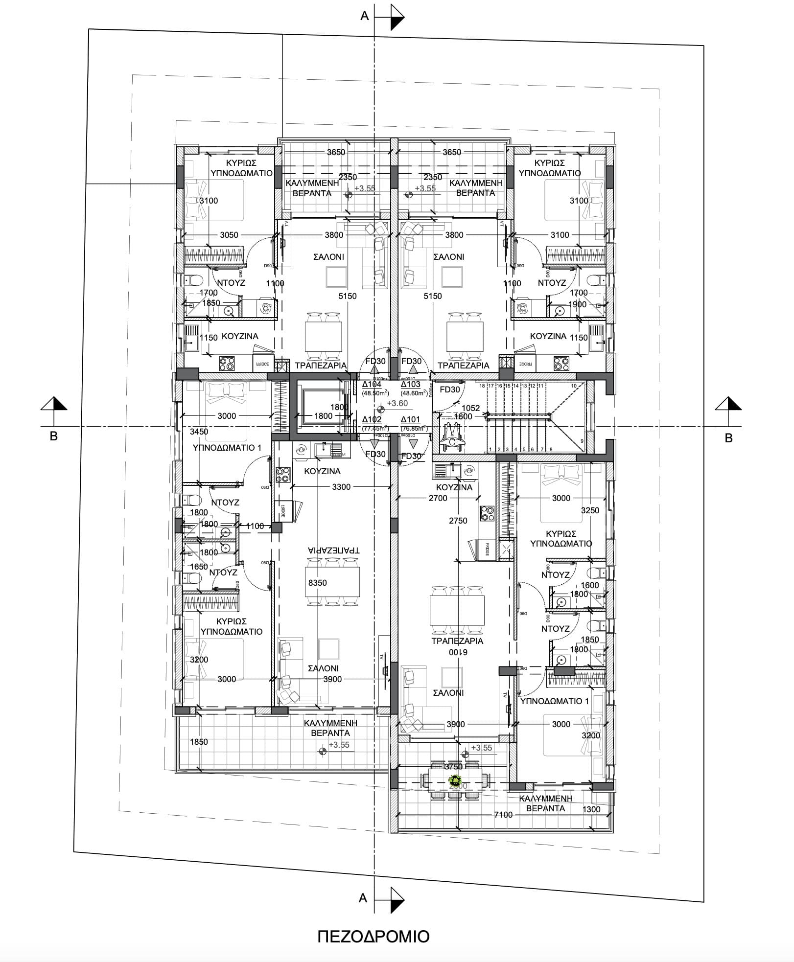
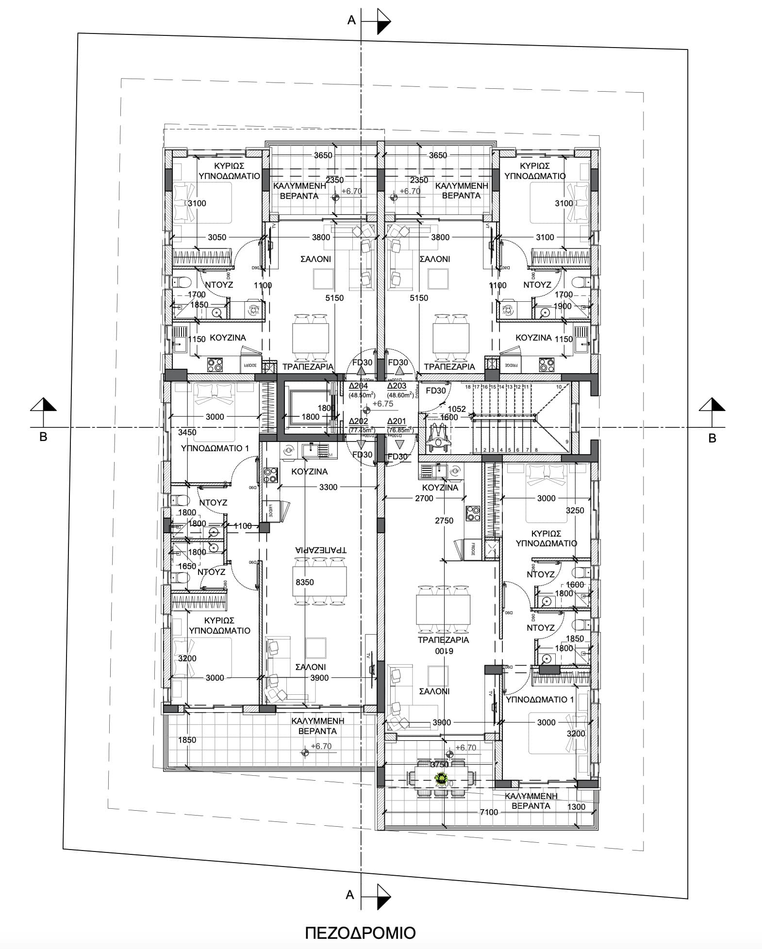
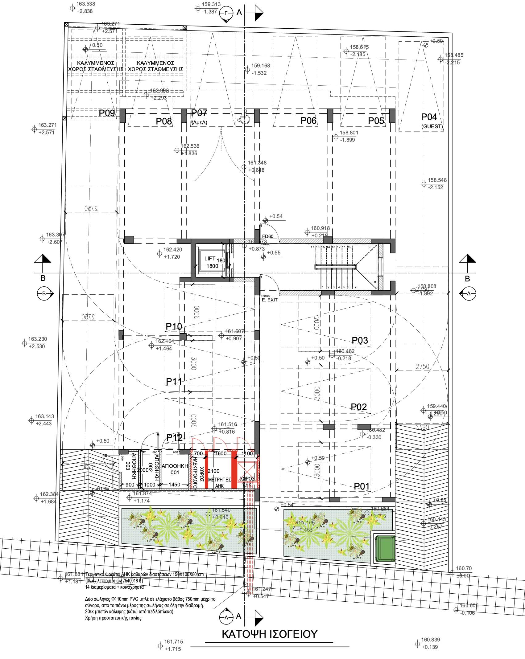
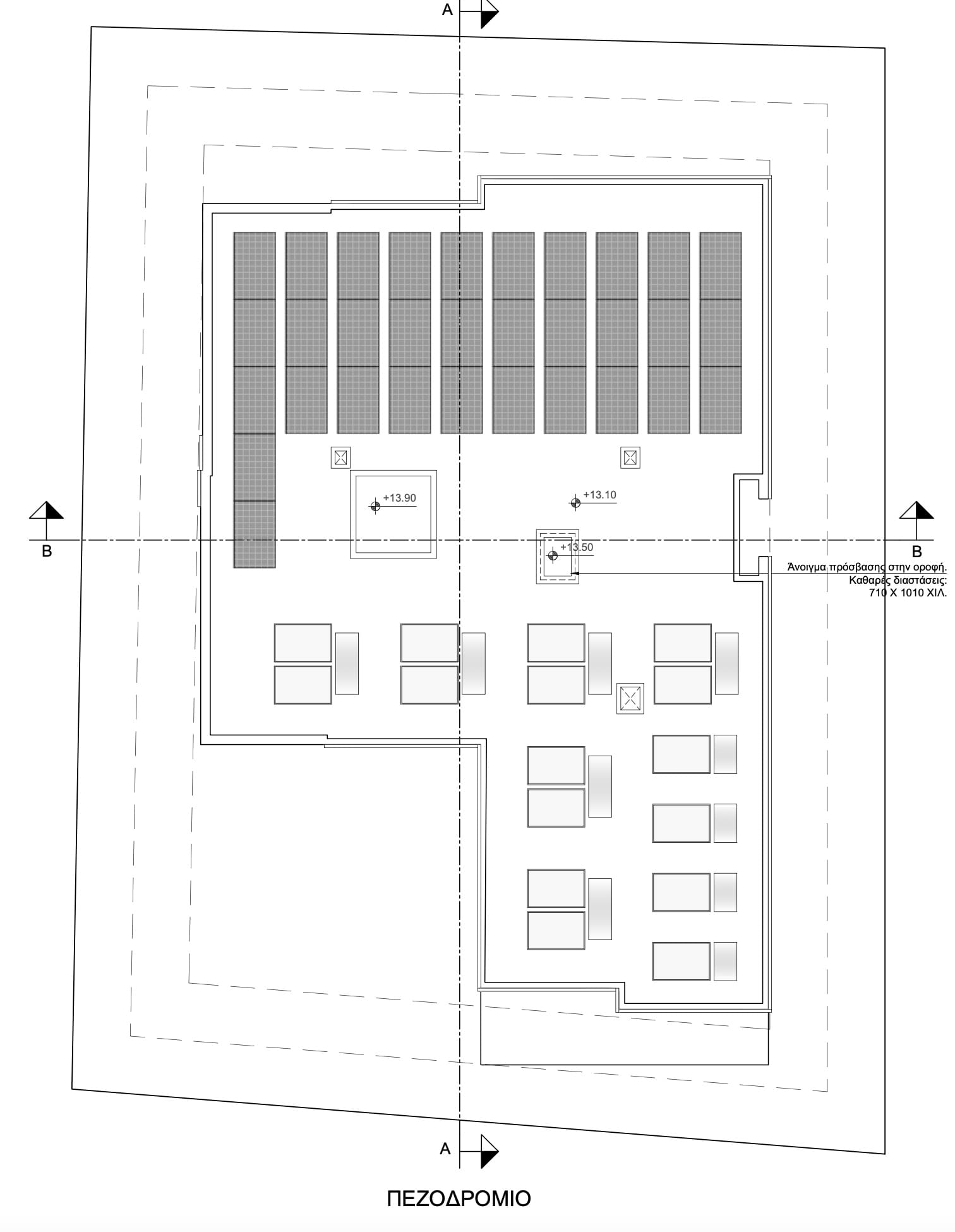
Πωλείται υπό ανέγερση διαμέρισμα δύο υπνοδωματίων στην Αγλαντζιά – επαρχία Λευκωσίας, στον 2ο όροφο τριώροφης πολυκατοικίας με 10 διαμερίσματα στο σύνολο, με 77,5 τ.μ. εσωτερικούς χώρους και 14,5 τ.μ. καλυμμένη βεράντα. Το διαμέρισμα διαθέτει πρόνοιες συστημάτων κλιματισμού, πρόνοιες ηλεκτρικών θερμαντικών σωμάτων, θυροτηλέφωνο, en-suite στο κυρίως υπνοδωμάτιο, πρόνοια για φωτοβολταϊκό σύστημα, πιεστικό σύστημα νερού και καλυμμένο χώρο στάθμευσης. Το έργο ανεγείρεται σε περιοχή του Δήμου Λευκωσίας, με εύκολη πρόσβαση στο κέντρο της πόλης καθώς και στα εμπορικά καταστήματα και τις ανέσεις της γύρω περιοχής. Η πολυκατοικία είναι Ενεργειακής Απόδοσης A. Η τιμή πώλησης του διαμερίσματος είναι 180,000 ευρώ πλέον Φ.Π.Α.
Owning a home is a keystone of wealth… both financial affluence and emotional security.
Suze OrmanTo provide the best experiences, we and our partners use technologies like cookies to store and/or access device information. Consenting to these technologies will allow us and our partners to process personal data such as browsing behavior or unique IDs on this site and show (non-) personalized ads. Not consenting or withdrawing consent, may adversely affect certain features and functions.
Click below to consent to the above or make granular choices. Your choices will be applied to this site only. You can change your settings at any time, including withdrawing your consent, by using the toggles on the Cookie Policy, or by clicking on the manage consent button at the bottom of the screen.