Lakatameia, Nicosia, Nicosia District, Cyprus
Προς πώληση
€180,000
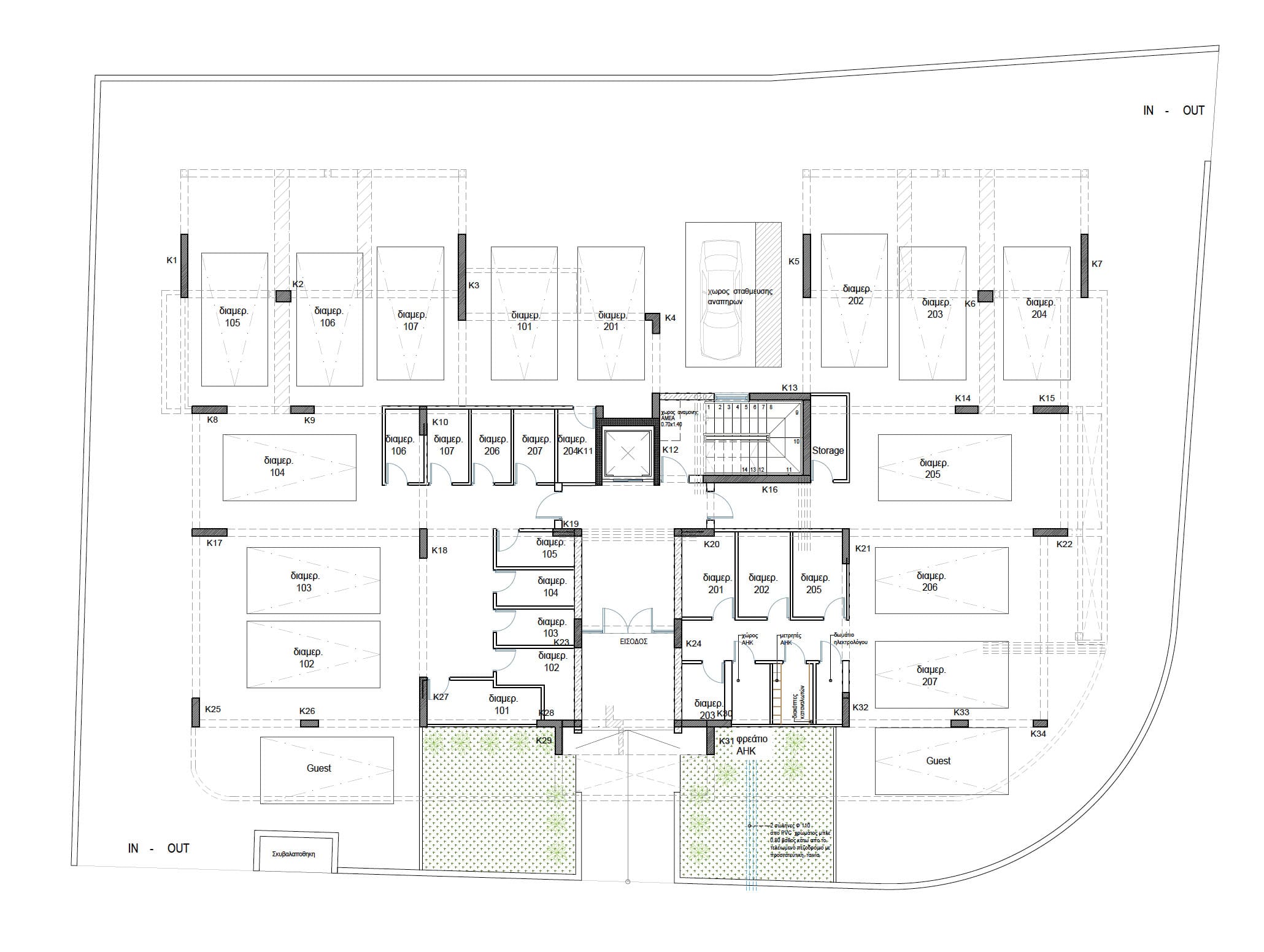
Πωλείται υπό κατασκευή διαμέρισμα δύο υπνοδωματίων στη Λακατάμια, σύνορα Ανθούπολης – επαρχία Λευκωσίας, με 82,5 τ.μ. καλυμμένο εσωτερικό χώρο και 12 τ.μ. καλυμμένη βεράντα, στον 1ο όροφο διώροφης πολυκατοικίας με 14 διαμερίσματα στο σύνολο, σε ήσυχη περιοχή, σε αδιέξοδο. Διαθέτει πρόνοια ηλεκτρικής θέρμανσης και πρόνοια κλιματισμού, en-suite στο κυρίως υπνοδωμάτιο και 1 κυρίως μπάνιο, ηλιακό θερμοσίφωνα, θυροτηλεόραση, καλυμμένο χώρο στάθμευσης και αποθήκη. Το κτίριο θα είναι ενεργειακής απόδοσης κατηγορίας Α. Τιμή πώλησης 180,000 ευρώ πλέον Φ.Π.Α.
Owning a home is a keystone of wealth… both financial affluence and emotional security.
Suze OrmanTo provide the best experiences, we and our partners use technologies like cookies to store and/or access device information. Consenting to these technologies will allow us and our partners to process personal data such as browsing behavior or unique IDs on this site and show (non-) personalized ads. Not consenting or withdrawing consent, may adversely affect certain features and functions.
Click below to consent to the above or make granular choices. Your choices will be applied to this site only. You can change your settings at any time, including withdrawing your consent, by using the toggles on the Cookie Policy, or by clicking on the manage consent button at the bottom of the screen.