Larnaca District, Cyprus
Προς πώληση
€199,000
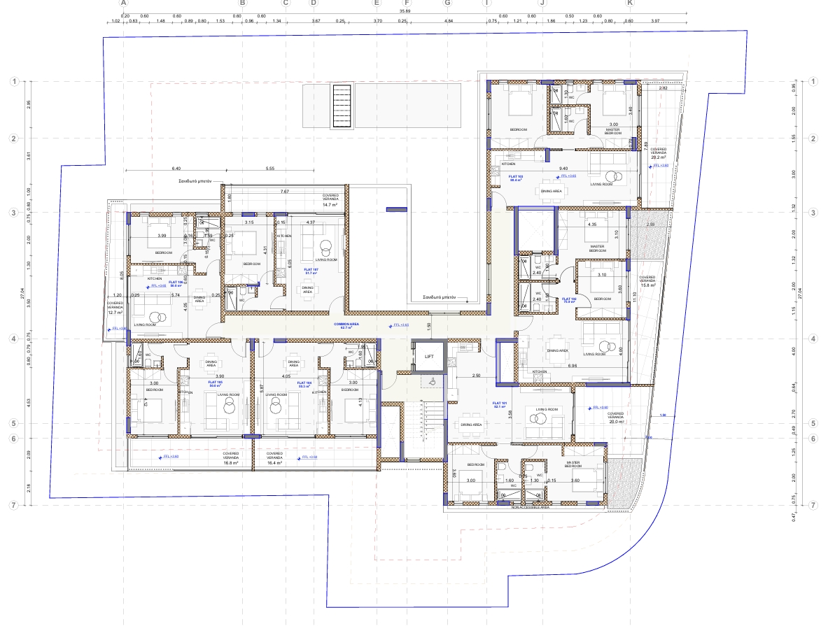
Πωλείται υπο ανέγερση διαμέρισμα δύο υπνοδωματίων στην Βεργίνα – επαρχία Λάρνακας, με 75 τ.μ. καλυμμένους εσωτερικούς χώρους και 22 τ.μ. καλυμμένη βεράντα στον 1ο όροφο διώροφης πολυκατοικίας, με 16 διαμερίσματα στο σύνολο. Αποτελείται από ενιαίο χώρο σαλόνι/τραπεζαρία/κουζίνα και δύο χώρους υγιεινής εκ των οποίων ιδιωτικό μπάνιο (en-suite) στο κυρίως υπνοδωμάτιο. Διαθέτει πρόνοια κλιματισμού, ηλιακό θερμοσίφωνα, κοινόχρηστο γυμναστήριο, κοινόχρηστη πισίνα, καλυμμένο χώρο στάθμευσης και αποθήκη. Βρίσκεται 7 λεπτά από το κέντρο της Λάρνακας, είναι κοντά από Metropolis Mall, σχολείο και σε όλες τις υπηρεσίες με εύκολη πρόσβαση από τον αυτοκινητόδρομο. Τιμή πώλησης 199,000 ευρώ πλέον Φ.Π.Α.
Owning a home is a keystone of wealth… both financial affluence and emotional security.
Suze OrmanTo provide the best experiences, we and our partners use technologies like cookies to store and/or access device information. Consenting to these technologies will allow us and our partners to process personal data such as browsing behavior or unique IDs on this site and show (non-) personalized ads. Not consenting or withdrawing consent, may adversely affect certain features and functions.
Click below to consent to the above or make granular choices. Your choices will be applied to this site only. You can change your settings at any time, including withdrawing your consent, by using the toggles on the Cookie Policy, or by clicking on the manage consent button at the bottom of the screen.