Chlorakas, Chloraka, Cyprus
Προς πώληση
€580,000
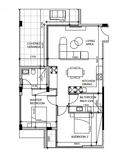
Πωλείται υπό ανέγερση διαμέρισμα δύο υπνοδωματίων στη Χλώρακα. Αποτελείται από 87 τ.μ. καλυμμένο εσωτερικό χώρο και 45 τ.μ. καλυμμένη βεράντα. Διαθέτει δύο χώρους υγιεινής, en suite στο κυρίως υπνοδωμάτιο, καλυμμένο χώρο στάθμευσης, σύστημα κλιματισμού, κοινόχρηστη πισίνα, γυμναστήριο και ψησταριά. Βρίσκεται σε καλή περιοχή κοντά σε διάφορες ανέσεις και κοντά στη θάλασσα. Τιμή πώλησης 580,000 ευρώ πλέον ΦΠΑ.
*Υπάρχει η επιλογή προσθήκης αποθήκης με επιπλέον χρέωση 5,000 ευρώ πλέον ΦΠΑ.
Owning a home is a keystone of wealth… both financial affluence and emotional security.
Suze OrmanTo provide the best experiences, we and our partners use technologies like cookies to store and/or access device information. Consenting to these technologies will allow us and our partners to process personal data such as browsing behavior or unique IDs on this site and show (non-) personalized ads. Not consenting or withdrawing consent, may adversely affect certain features and functions.
Click below to consent to the above or make granular choices. Your choices will be applied to this site only. You can change your settings at any time, including withdrawing your consent, by using the toggles on the Cookie Policy, or by clicking on the manage consent button at the bottom of the screen.