Larnaca District, Cyprus
Προς πώληση
€215,000
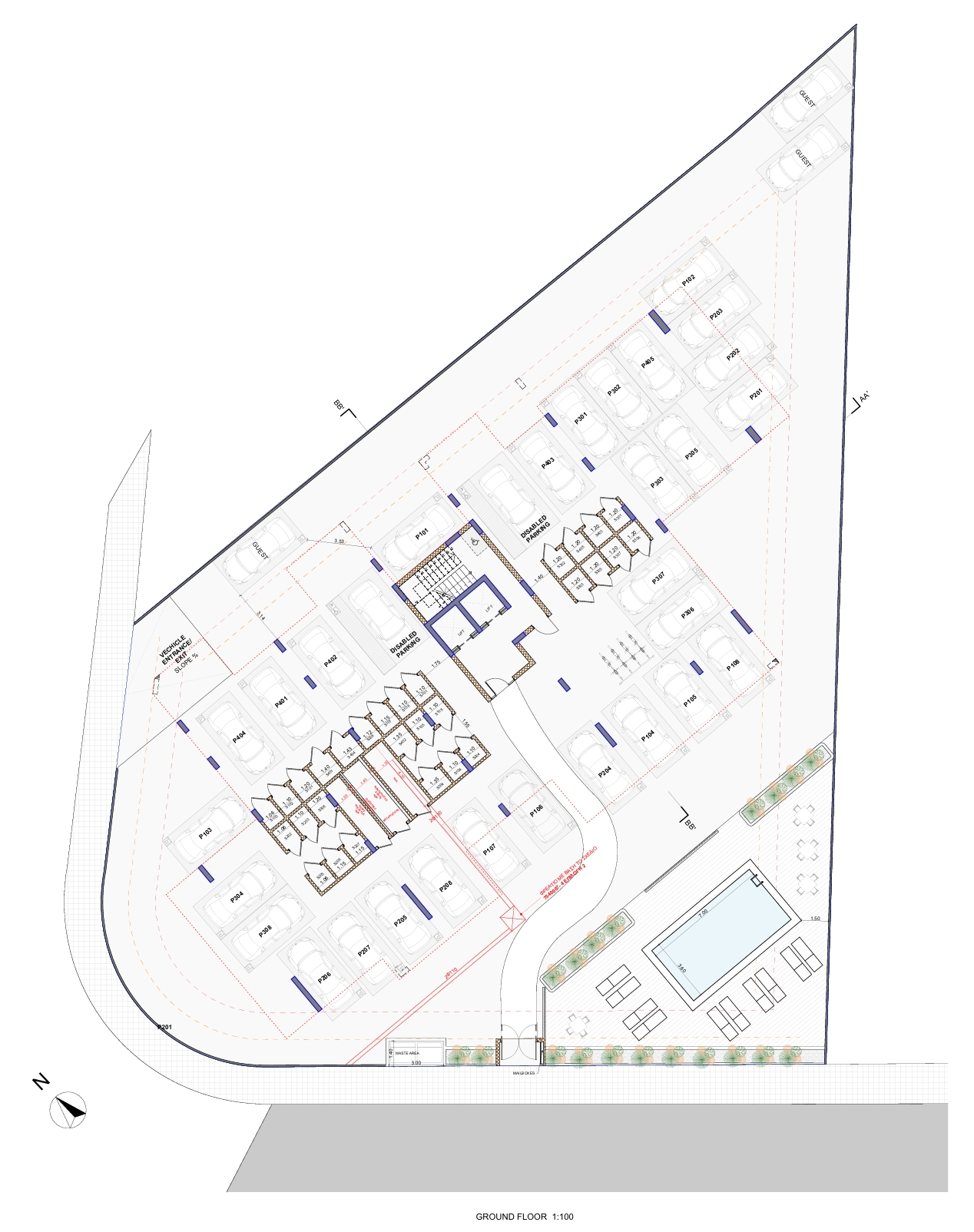
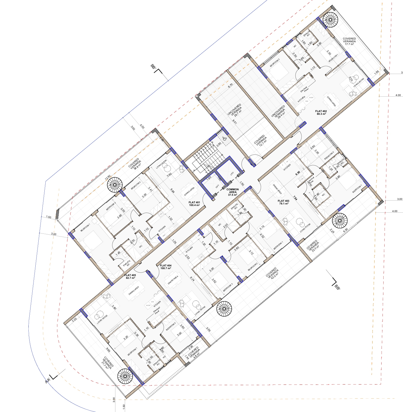
Πωλείται υπο ανέγερση διαμέρισμα δύο υπνοδωματίων στο κέντρο της πόλης – επαρχία Λάρνακας με 79 τ.μ. καλυμμένο εσωτερικό χώρο και 18 τ.μ. καλυμμένη βεράντα στον 1ο όροφο τετραώροφης πολυκατοικίας με 29 διαμερίσματα στο σύνολο. Το διαμέρισμα αποτελείται από ενιαίο χώρο κουζίνα/τραπεζαρία/σαλόνι και δύο χώρους υγιεινής εκ των οποίων ιδιωτικό μπάνιο (en-suite) στο κυρίως υπνοδωμάτιο. Διαθέτει σύστημα πιεστικό νερού, θυροτηλεόραση στην είσοδο της πολυκατοικίας για κάθε διαμέρισμα, πρόνοια συστήματος κλιματισμού, αποθήκη, ένα καλυμμένο χώρο στάθμευσης και κοινόχρηστη πισίνα. Βρίσκεται στο κέντρο της πόλης, 700 μέτρα από τις Φοινικούδες, 5 λεπτά από την Ερμού, κοντά σε σχολείο, υπεραγορές και άλλες υπηρεσίες. Τιμή πώλησης 215,000 ευρώ πλέον Φ.Π.Α.
Owning a home is a keystone of wealth… both financial affluence and emotional security.
Suze OrmanTo provide the best experiences, we and our partners use technologies like cookies to store and/or access device information. Consenting to these technologies will allow us and our partners to process personal data such as browsing behavior or unique IDs on this site and show (non-) personalized ads. Not consenting or withdrawing consent, may adversely affect certain features and functions.
Click below to consent to the above or make granular choices. Your choices will be applied to this site only. You can change your settings at any time, including withdrawing your consent, by using the toggles on the Cookie Policy, or by clicking on the manage consent button at the bottom of the screen.