Paralimni, Κύπρος
Προς πώληση
€207,000
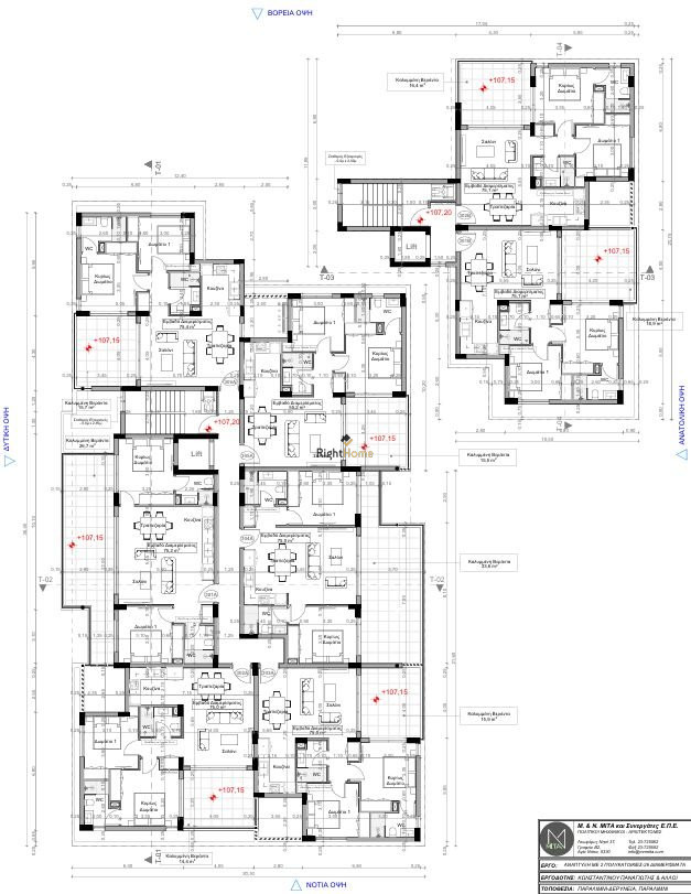
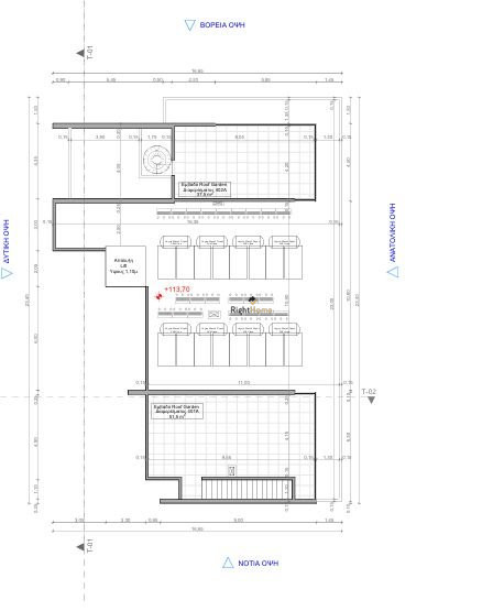
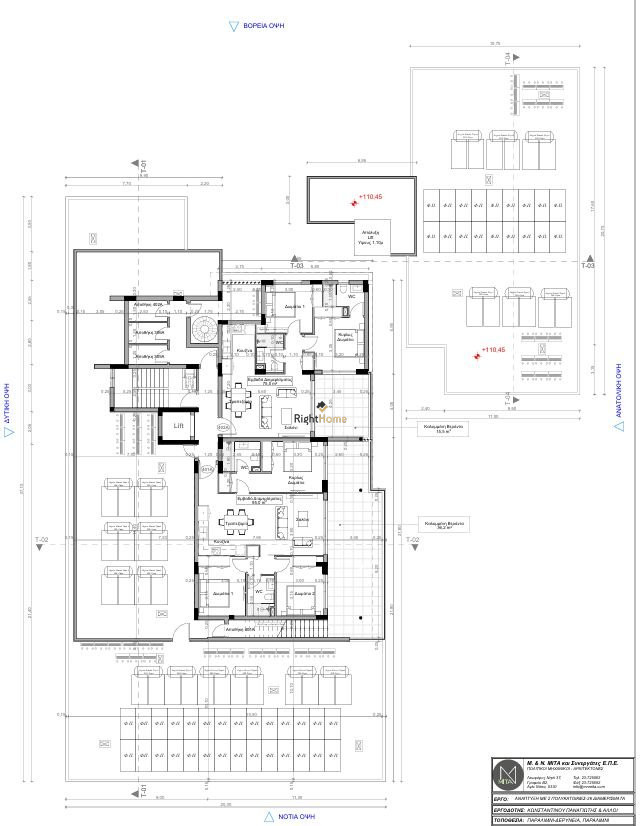
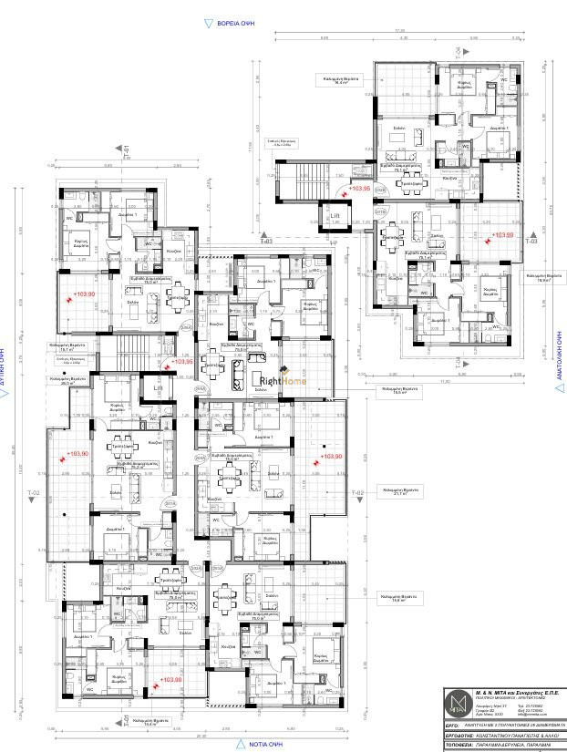
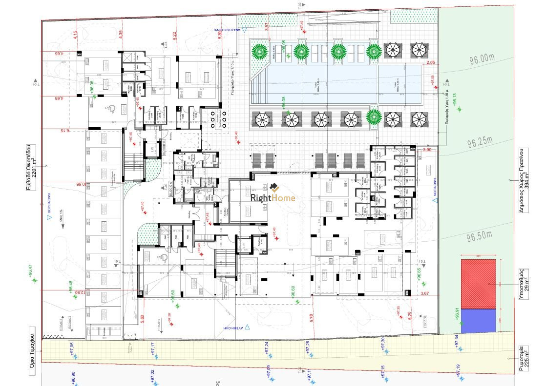
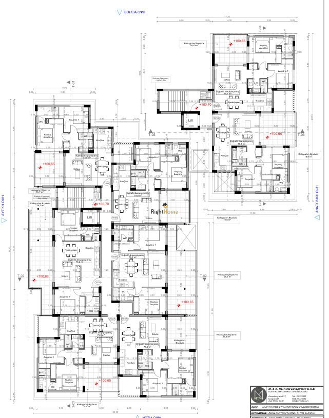
Πωλείται υπό ανέγερση διαμέρισμα δύο υπνοδωματίων στο Παραλίμνι – επαρχία Αμμοχώστου, με 75 τ.μ καλυμένους εσωτερικούς χώρους και 16 τ.μ καλυμμένη βεράντα στον 2ο όροφο τετραώροφης πολυκατοικίας με 20 διαμερίσματα στο σύνολο. Το διαμέρισμα αποτελείται από ενιαίο χώρο σαλόνι/κουζίνα/τραπεζαρία και δύο χώρους υγιεινής εκ των οποίων en-suite στο κυρίως υπνοδωμάτιο. Επιπλέον διαθέτει πρόνοιες κλιματισμού, πρόνοιες φωτοβολταικών, πρόνοιες συστήματος ασφαλείας CCTV, κοινόχρηστη πισίνα, αποθήκη και καλυμμένος χώρος στάθμευσης. Βρίσκεται σε ήσυχη περιοχή και κοντά σε όλες τις υπηρεσίες με εύκολη πρόσβαση στον αυτοκινητόδρομο Λάρνακας-Λευκωσίας. Αναμενόμενη ημερομηνία παράδοσης Μάιος 2027. Τιμή πώλησης 207,000 ευρώ πλέον Φ.Π.Α.
Owning a home is a keystone of wealth… both financial affluence and emotional security.
Suze OrmanTo provide the best experiences, we and our partners use technologies like cookies to store and/or access device information. Consenting to these technologies will allow us and our partners to process personal data such as browsing behavior or unique IDs on this site and show (non-) personalized ads. Not consenting or withdrawing consent, may adversely affect certain features and functions.
Click below to consent to the above or make granular choices. Your choices will be applied to this site only. You can change your settings at any time, including withdrawing your consent, by using the toggles on the Cookie Policy, or by clicking on the manage consent button at the bottom of the screen.