Strovolos, Nicosia, Nicosia District, South Cyprus, Cyprus
Προς πώληση
€225,000
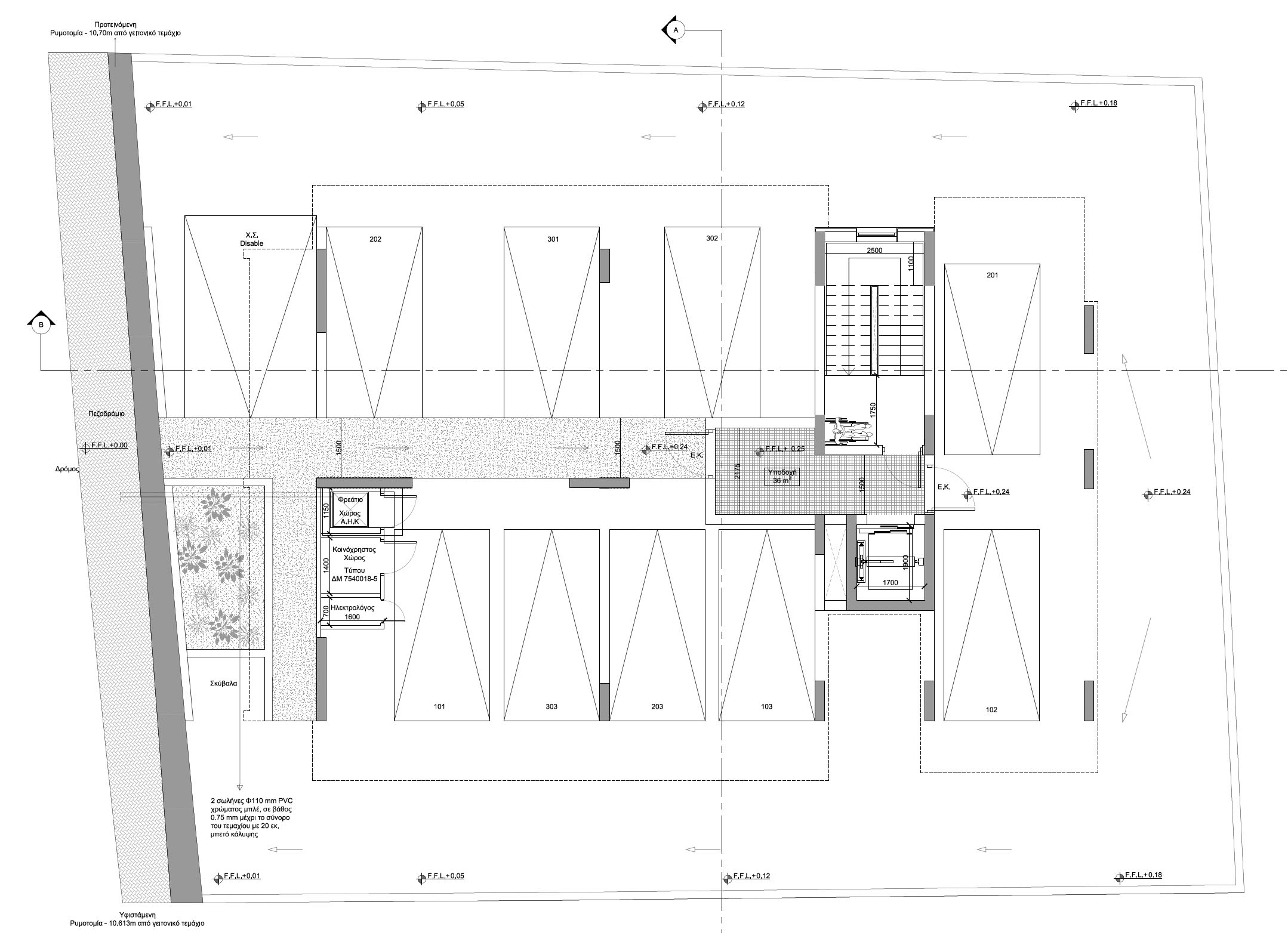
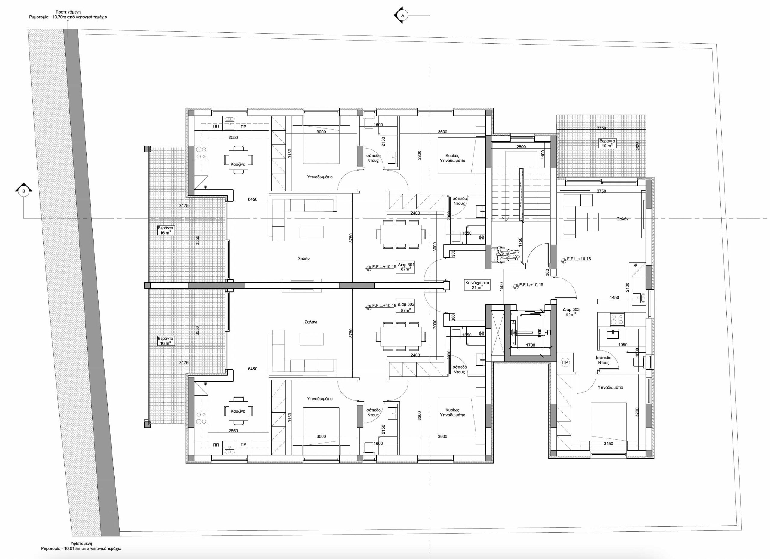
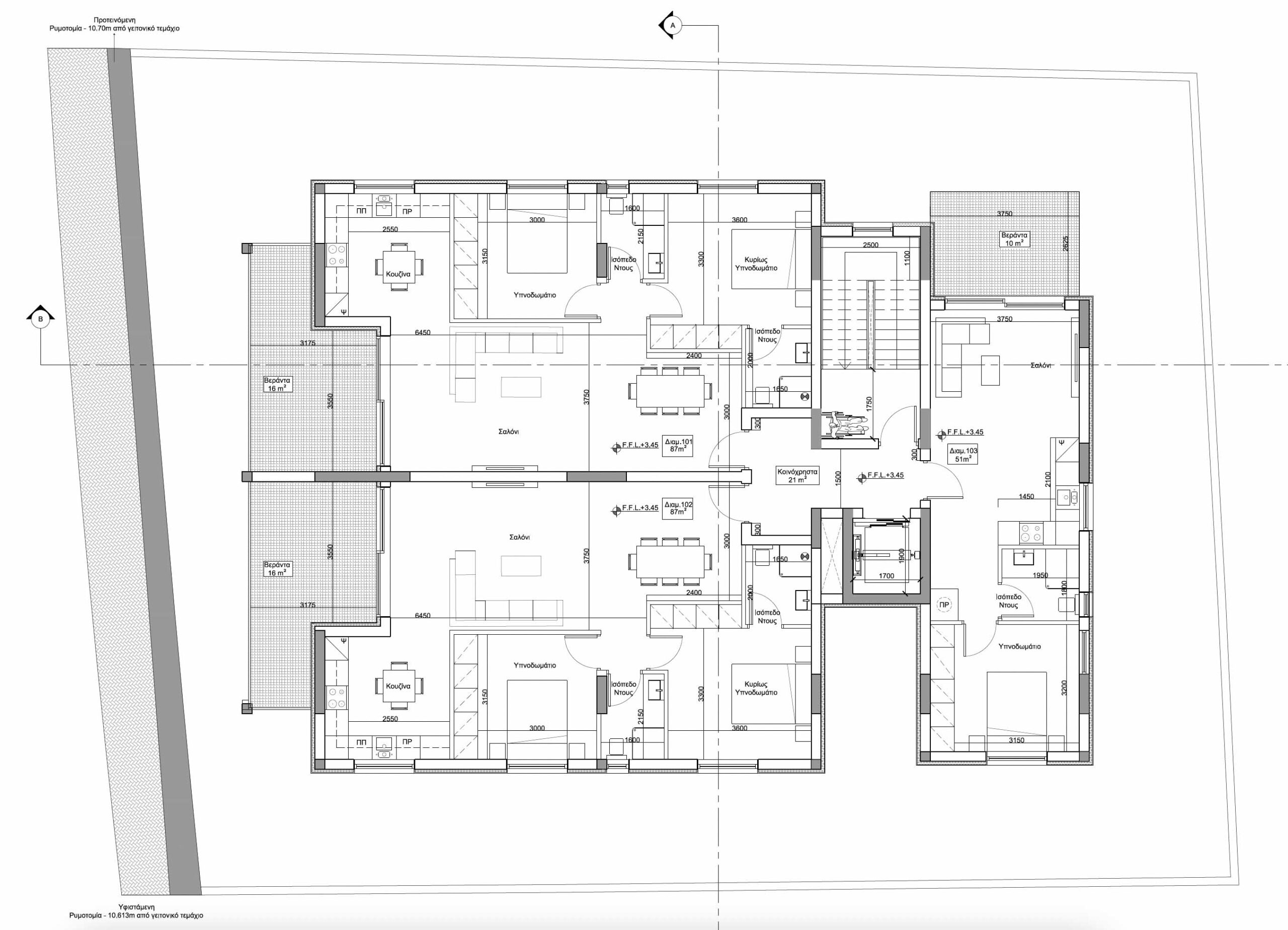
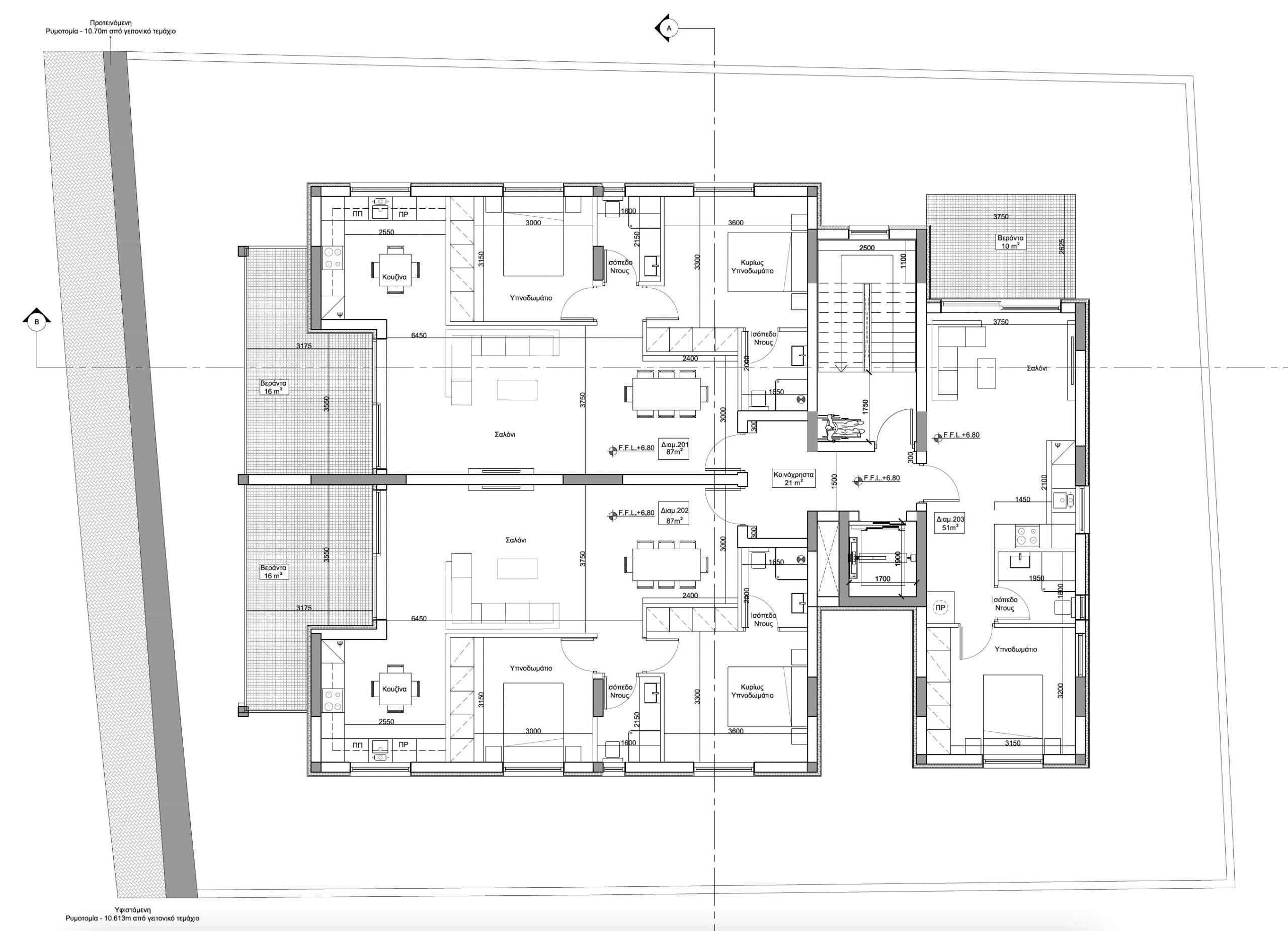
Πωλείται υπό ανέγερση διαμέρισμα δύο υπνοδωματίων στον Στρόβολο – επαρχία Λευκωσίας, στον 1ο όροφο τριώροφης πολυκατοικίας με 9 διαμερίσματα συνολικά, με 87 τ.μ. εσωτερικό χώρο και 16 τ.μ. καλυμμένη βεράντα. Διαθέτει άριστη ποιότητα κατασκευής, με υψηλών προδιαγραφών μονώσεις, 2 χώρους υγιεινής, en -suite στο κυρίως υπνοδωμάτιο, πρόνοια εγκατάστασης κλιματισμού τύπου Split Unit, αλουμίνια με διπλό γυαλί, καλυμμένο χώρο στάθμευσης και αποθήκη, καθώς επίσης και πρόνοια για εγκατάσταση φωτοβολταϊκού συστήματος. Τιμή πώλησης 225,000 ευρώ συν Φ.Π.Α.
Owning a home is a keystone of wealth… both financial affluence and emotional security.
Suze OrmanTo provide the best experiences, we and our partners use technologies like cookies to store and/or access device information. Consenting to these technologies will allow us and our partners to process personal data such as browsing behavior or unique IDs on this site and show (non-) personalized ads. Not consenting or withdrawing consent, may adversely affect certain features and functions.
Click below to consent to the above or make granular choices. Your choices will be applied to this site only. You can change your settings at any time, including withdrawing your consent, by using the toggles on the Cookie Policy, or by clicking on the manage consent button at the bottom of the screen.