Kleima stores, Eleftherias Avenue, Agios Nikolaos, Larnaca, Larnaca District, Cyprus, 6043, Cyprus
Προς πώληση
€163,000
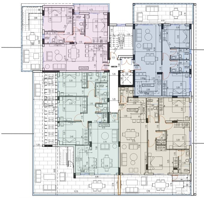
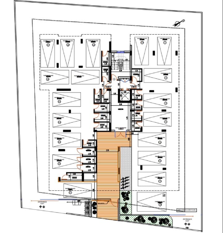
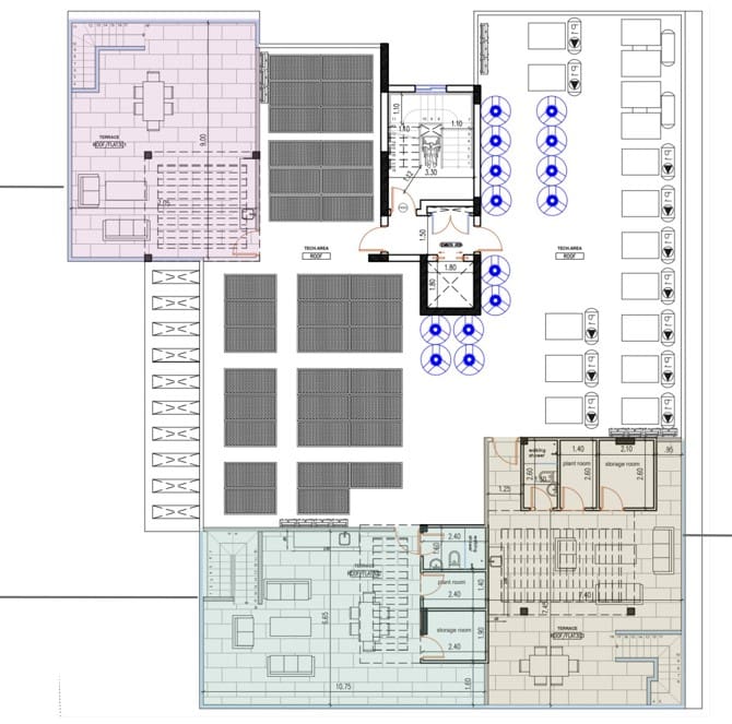
Πωλείται υπο ανέγερση διαμέρισμα ενός υπνοδωματίου στη Λάρνακα, σε πολύ κοντινή απόσταση από το Metropolis Mall. Βρίσκεται στον 1ο όροφο τριώροφης πολυκατοικίας 14 διαμερίσματα στο σύνολο. Διαθέτει 50.5 τ.μ. καλυμμένο εσωτερικό χώρο και 17 τ.μ. καλυμμένη βεράντα Το διαμέρισμα διαθέτει ένα μπάνιο, στεγασμένο χώρο στάθμευσης, θυροτηλεόραση, πρόνοιες κλιματισμού και θέρμανσης, πρόνοια για φόρτιση ηλεκτρικού αυτοκινήτου, ηλιακό θερμοσίφωνα, πιεστικό σύστημα νερού και αποθήκη. Το κτήριο διαθέτει μεγάλο χώρο υποδοχής, είσοδο ασφαλείας και σύστημα ενδοεπικοινωνίας καθώς επίσης και κοινόχρηστους χώρους για να επωφεληθούν από το φωτοβολταϊκό σύστημα. Βρίσκεται σε εξαιρετική τοποθεσία, κοντά σε όλες τις υπηρεσίες και με εύκολη πρόσβαση στον αυτοκινητόδρομο. Επιπλέον διαθέτει πιστοποιητικό Ενεργειακής Απόδοσης Α. Αναμενόμενη ημερομηνία παράδοσης Δεκέμβριο 2026. Τιμή πώλησης 163,000 ευρώ πλέον Φ.Π.Α.
Owning a home is a keystone of wealth… both financial affluence and emotional security.
Suze OrmanTo provide the best experiences, we and our partners use technologies like cookies to store and/or access device information. Consenting to these technologies will allow us and our partners to process personal data such as browsing behavior or unique IDs on this site and show (non-) personalized ads. Not consenting or withdrawing consent, may adversely affect certain features and functions.
Click below to consent to the above or make granular choices. Your choices will be applied to this site only. You can change your settings at any time, including withdrawing your consent, by using the toggles on the Cookie Policy, or by clicking on the manage consent button at the bottom of the screen.