Yeroskipou, Paphos District, Cyprus
Προς πώληση
€215,000
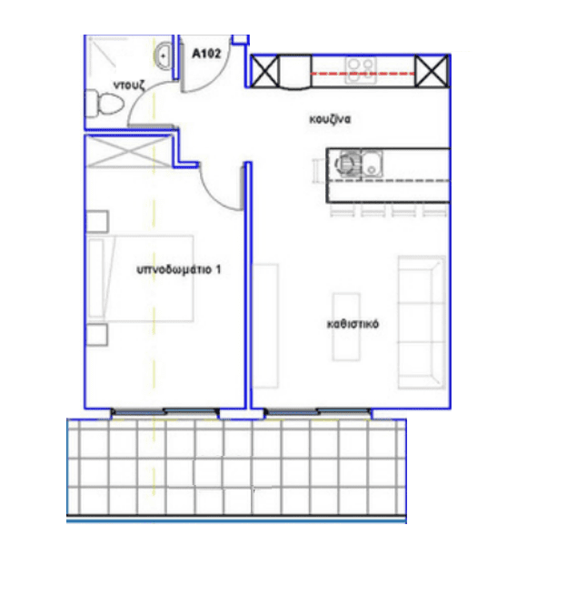
Πωλείται υπο – ανέγερση διαμέρισμα ενός υπνοδωματίου στη Γεροσκήπου της επαρχίας Πάφου. Αποτελείται από 50 τ.μ. καλυμμένους εσωτερικούς χώρους και 13 τ.μ. καλυμμένες βεράντες, ενεργειακής απόδοσης Α. Διαθέτει ένα χώρο υγιεινής και καλυμμένο χώρο στάθμευσης. Επίσης διαθέτει πρόνοιες για κεντρική θέρμανση και σύστημα κλιματισμού. Τέλος το κτίριο διαθέτει κοινόχρηστο κήπο οροφής, πισινά, παιδική χαρά και καφετερία. Βρίσκεται σε πολύ καλή περιοχή κοντά σε όλες τις ανέσεις και υπηρεσίες , με θέα την θάλασσα. Τιμή πώλησης 215000 πλέον Φ.Π.Α.
Owning a home is a keystone of wealth… both financial affluence and emotional security.
Suze OrmanTo provide the best experiences, we and our partners use technologies like cookies to store and/or access device information. Consenting to these technologies will allow us and our partners to process personal data such as browsing behavior or unique IDs on this site and show (non-) personalized ads. Not consenting or withdrawing consent, may adversely affect certain features and functions.
Click below to consent to the above or make granular choices. Your choices will be applied to this site only. You can change your settings at any time, including withdrawing your consent, by using the toggles on the Cookie Policy, or by clicking on the manage consent button at the bottom of the screen.