Archaggelos - Anthoupoli, Lakatameia, Lakatameia Municipality, Nicosia District, Cyprus
Προς πώληση
€155,000
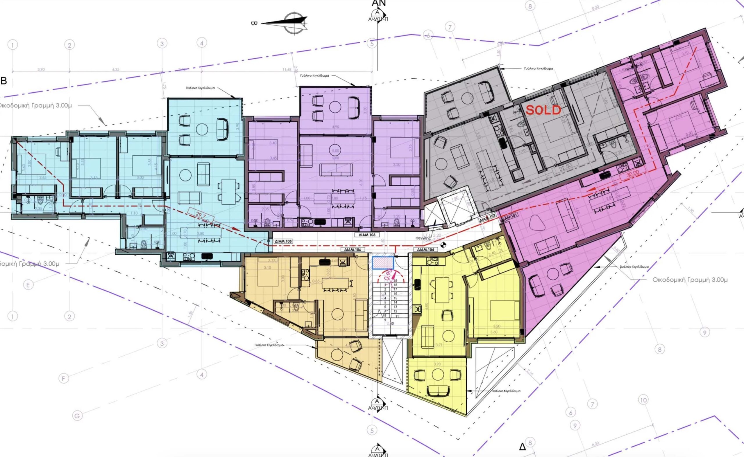
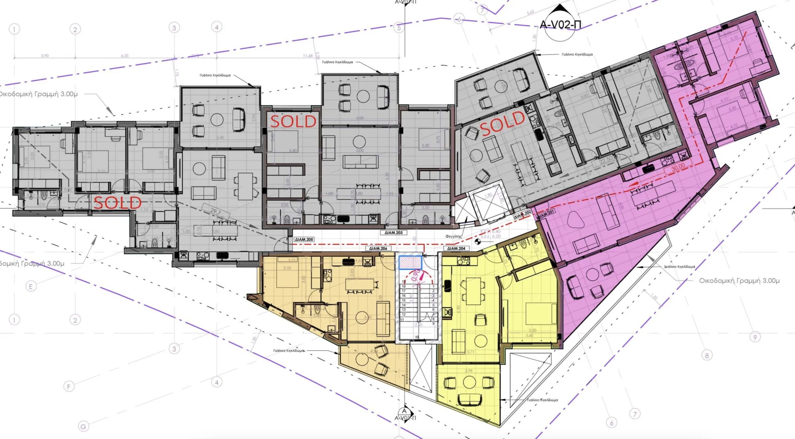
Πωλείται υπό ανέγερση διαμέρισμα ενός υπνοδωματίου στη Λακατάμια – επαρχία Λευκωσίας, στον 1ο όροφο διώροφης πολυκατοικίας με 12 διαμερίσματα, με 45 τ.μ. εσωτερικό χώρο και 10 τ.μ. καλυμμένη βεράντα. Το διαμέρισμα διαθέτει πρόνοιες για συσκευές κλιματισμού, εγκατεστημένα φωτοβολταϊκά εγκατεστημένα επιτοίχια ηλεκτρικά σώματα και ηλεκτρικά tower rail στα μπάνια, ηλιακό θερμοσίφωνα, έγχρωμη θυροτηλεόραση, πιεστικό σύστημα νερού, πρόνοια για φορτιστή ηλεκτρικού αυτοκινήτου, καλυμμένο χώρο στάθμευσης και αποθήκη. Η πολυκατοικία βρίσκεται στην αριστοκρατική περιοχή του Αρχαγγέλου, με καταπληκτική θέα, μέσα στο πράσινο, κοντά σε σχολείο, με εύκολη πρόσβαση στον αυτοκινητόδρομο. Το έργο έχει έγκριση Ενεργειακής Απόδοσης Α’. Τιμή πώλησης του διαμερίσματος 155,000 ευρώ πλέον Φ.Π.Α.
Owning a home is a keystone of wealth… both financial affluence and emotional security.
Suze OrmanTo provide the best experiences, we and our partners use technologies like cookies to store and/or access device information. Consenting to these technologies will allow us and our partners to process personal data such as browsing behavior or unique IDs on this site and show (non-) personalized ads. Not consenting or withdrawing consent, may adversely affect certain features and functions.
Click below to consent to the above or make granular choices. Your choices will be applied to this site only. You can change your settings at any time, including withdrawing your consent, by using the toggles on the Cookie Policy, or by clicking on the manage consent button at the bottom of the screen.