Makedonitissa, Engomi, Nicosia, Nicosia Muncipality, Nicosia District, Cyprus, 2415, Cyprus
Προς πώληση
€155,000
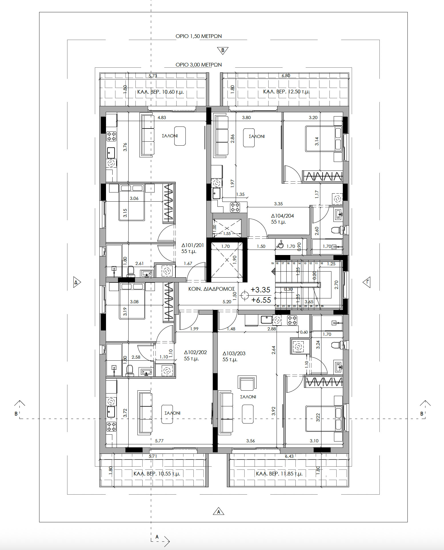
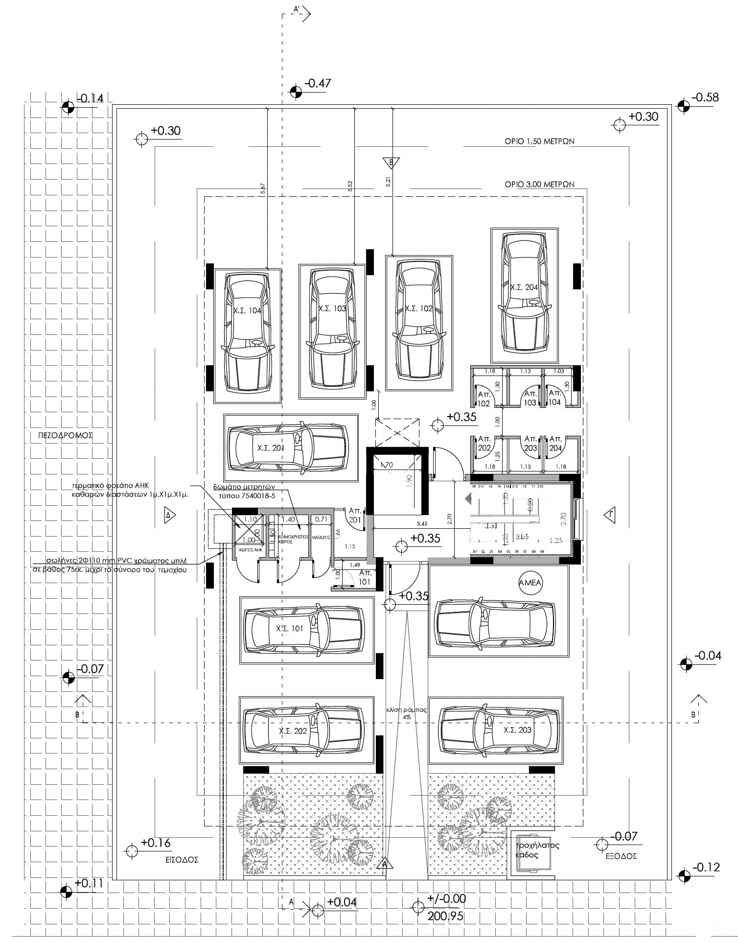
Πωλείται υπό ανέγερση διαμέρισμα ενός υπνοδωματίου στη Μακεδονίτισσα Έγκωμης – επαρχία Λευκωσίας, στον 1ο όροφο μικρής διώροφης πολυκατοικίας με 8 μόνο διαμερίσματα στο σύνολο, με 55 τ.μ. εσωτερικό καλυμμένο χώρο και 10,5 τ.μ. καλυμμένη βεράντα. Το διαμέρισμα διαθέτει εγκατεστημένα συστήματα κλιματισμού και πλήρη εγκατάσταση ηλεκτρικής θέρμανσης, πιεστικό σύστημα νερού, καλυμμένο χώρο στάθμευσης και αποθήκη, καθώς και εγκατεστημένο φωτοβολταϊκό σύστημα απόδοσης 1,5KW. Τιμή πώλησης του διαμερίσματος 155,000 ευρώ πλέον Φ.Π.Α.
Owning a home is a keystone of wealth… both financial affluence and emotional security.
Suze OrmanTo provide the best experiences, we and our partners use technologies like cookies to store and/or access device information. Consenting to these technologies will allow us and our partners to process personal data such as browsing behavior or unique IDs on this site and show (non-) personalized ads. Not consenting or withdrawing consent, may adversely affect certain features and functions.
Click below to consent to the above or make granular choices. Your choices will be applied to this site only. You can change your settings at any time, including withdrawing your consent, by using the toggles on the Cookie Policy, or by clicking on the manage consent button at the bottom of the screen.