Latsia, Nicosia, Nicosia District, Cyprus
Προς πώληση
€270,000
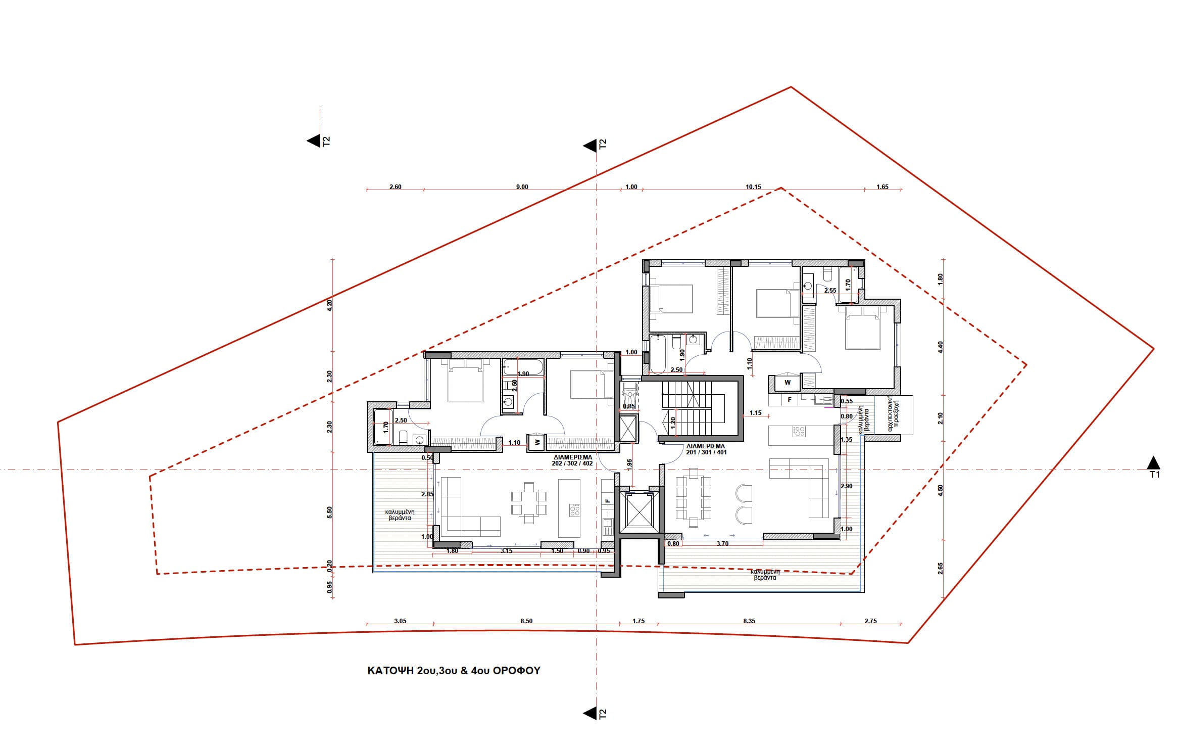
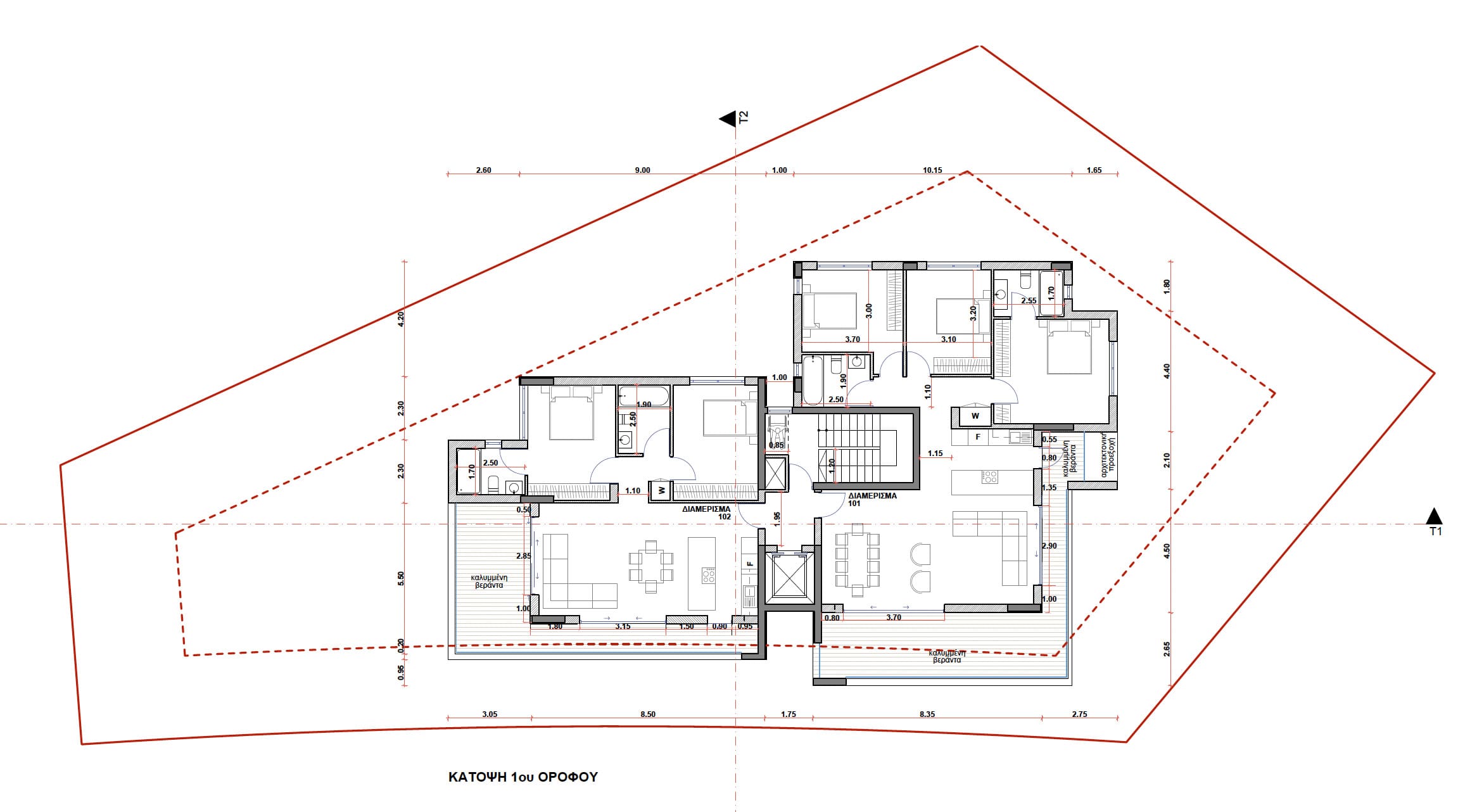
Πωλείται υπό ανέγερση ανεξάρτητο διαμέρισμα τριών υπνοδωματίων στα Λατσιά – επαρχία Λευκωσίας, στον 1ο όροφο τετραώροφης πολυκατοικίας με 8 διαμερίσματα συνολικά, με 112 τ.μ. εσωτερικό χώρο και 34 τ.μ. καλυμμένη βεράντα, με υψηλές προδιαγραφές κατασκευής. Διαθέτει εγκατεστημένο σύστημα ενδοδαπέδιας θέρμανσης σε όλους τους εσωτερικούς χώρους με τη χρήση αντλίας θερμότητας αέρα – νερού, πρόνοια για συστήματα κλιματισμού, en-suite στο κυρίως υπνοδωμάτιο και 1 κυρίως μπάνιο, έγχρωμη θυροτηλεόραση, καλυμμένο χώρο στάθμευσης και αποθήκη. Υπάρχει διπλή τοιχοποιία εξωτερικά της πολυκατοικίας και είναι Ενεργειακής Απόδοσης Α’. Τιμή πώλησης 270.000 ευρώ συν Φ.Π.Α.
Owning a home is a keystone of wealth… both financial affluence and emotional security.
Suze OrmanTo provide the best experiences, we and our partners use technologies like cookies to store and/or access device information. Consenting to these technologies will allow us and our partners to process personal data such as browsing behavior or unique IDs on this site and show (non-) personalized ads. Not consenting or withdrawing consent, may adversely affect certain features and functions.
Click below to consent to the above or make granular choices. Your choices will be applied to this site only. You can change your settings at any time, including withdrawing your consent, by using the toggles on the Cookie Policy, or by clicking on the manage consent button at the bottom of the screen.