Lakatameia, Nicosia Metropolitan Area, Lakatameia Municipality, Nicosia District, Cyprus
Προς πώληση
€245,000
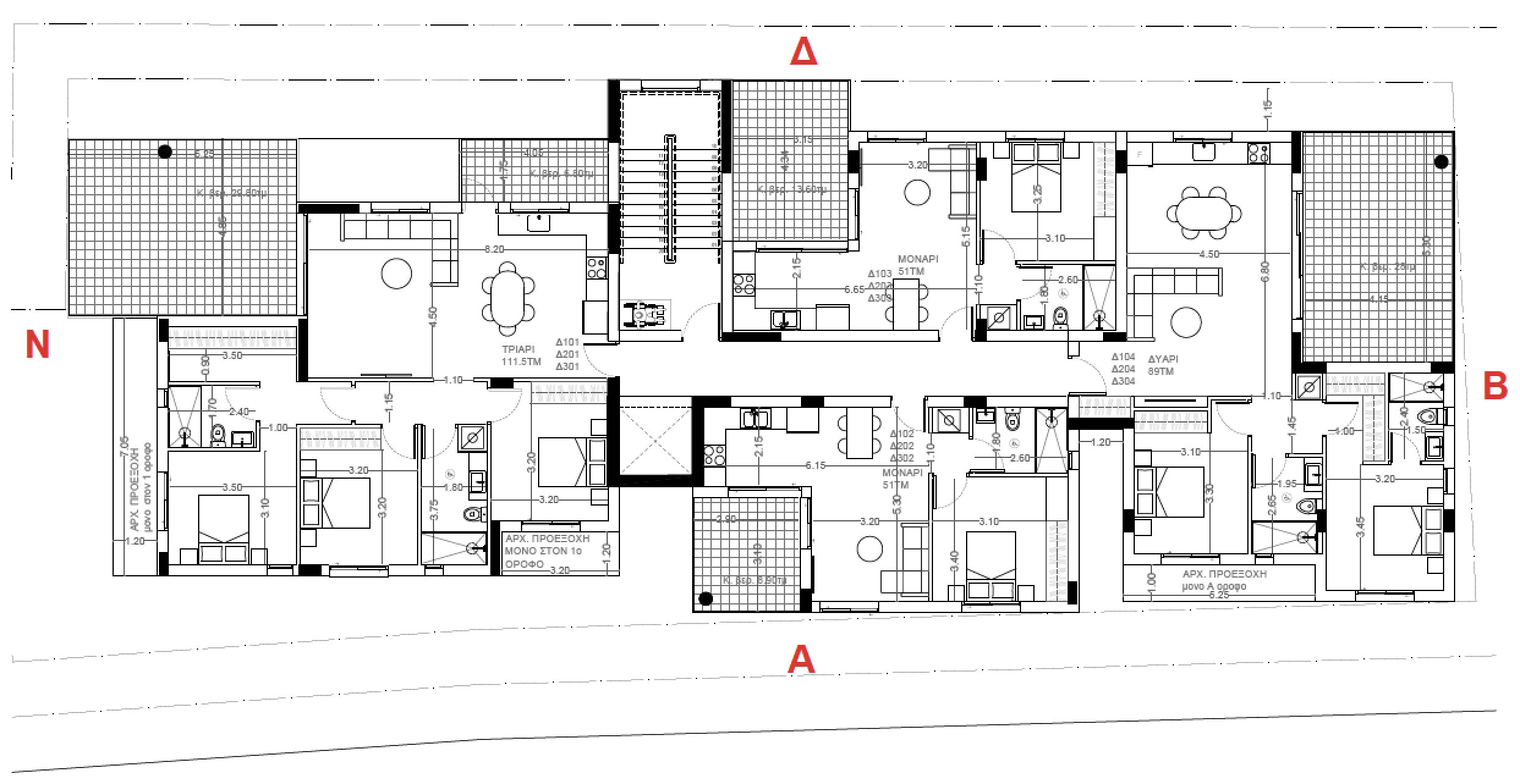
Πωλείται υπό ανέγερση διαμέρισμα τριών υπνοδωματίων στη Λακατάμια – επαρχία Λευκωσίας, με 111,5 τ.μ. καλυμμένο εσωτερικό χώρο και 36,5 τ.μ. καλυμμένες βεράντες, στον 2ο όροφο τριώροφης πολυκατοικίας με 12 διαμερίσματα στο σύνολο. Διαθέτει άνετους και φωτεινούς χώρους, πλήρη εγκατάσταση συστημάτων κλιματισμού, πρόνοια ηλεκτρικών σωμάτων σε υπνοδωμάτια και σαλόνι, ηλιακό θερμοσίφωνα, πρόνοια για towel rails σε χώρους υγιεινής, εγκατάσταση ηλεκτρικών shutter υπνοδωματίων, πλήρη εγκατάσταση φωτοβολταϊκού συστήματος, έγχρωμη θυροτηλεόραση, en-suite στο κυρίως υπνοδωμάτιο, πιεστικό σύστημα νερού, επίπεδο δάπεδο εσωτερικά και εξωτερικά του διαμερίσματος, καλυμμένο χώρο στάθμευσης και αποθήκη. Το κτίριο βρίσκεται σε προνομιούχα περιοχή, με εύκολη πρόσβαση σε διάφορες υπηρεσίες, εύκολη πρόσβαση στον αυτοκινητόδρομο και διαθέτει πιστοποιητικό Ενεργειακής Απόδοσης Α΄. Τιμή πώλησης 245,000 ευρώ πλέον Φ.Π.Α.
Owning a home is a keystone of wealth… both financial affluence and emotional security.
Suze OrmanTo provide the best experiences, we and our partners use technologies like cookies to store and/or access device information. Consenting to these technologies will allow us and our partners to process personal data such as browsing behavior or unique IDs on this site and show (non-) personalized ads. Not consenting or withdrawing consent, may adversely affect certain features and functions.
Click below to consent to the above or make granular choices. Your choices will be applied to this site only. You can change your settings at any time, including withdrawing your consent, by using the toggles on the Cookie Policy, or by clicking on the manage consent button at the bottom of the screen.