Faneromeni Park, Agios Nikolaos, Larnaca Municipality, Larnaca District, Cyprus
Προς πώληση
€430,000
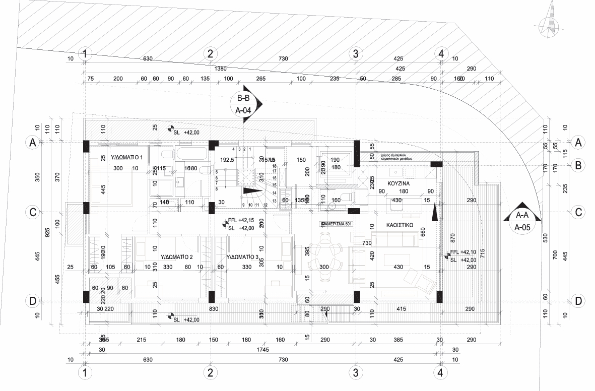
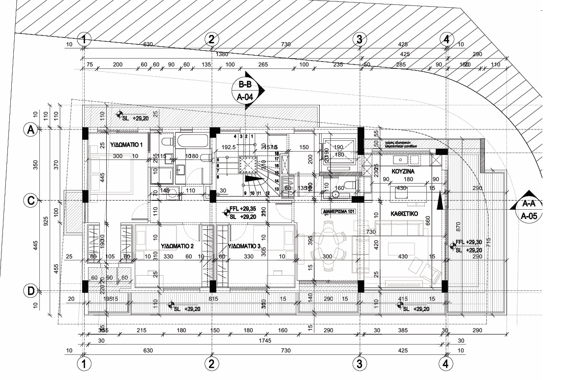
Πωλείται υπό ανέγερση διαμέρισμα τριών υπνοδωματίων στην περιοχή Φανερωμένης – επαρχία Λάρνακας, με 118,5 τ.μ. καλυμμένο εσωτερικό χώρο και 33 τ.μ. καλυμμένη βεράντα στον 4ο όροφο, πενταώροφης πολυκατοικίας με 5 διαμερίσματα στο σύνολο. Το διαμέρισμα αποτελείται από ενιαίο χώρο σαλόνι/κουζίνα και τρεις χώρους υγιεινής εκ των οποίων en suite στο κυρίως υπνοδωμάτιο με γκαρνταρόμπα. Επιπλέον διαθέτει πρόνοια για συστήματα κλιματισμού, καλυμμένο χώρο στάθμευσης και αποθήκη. Το κτίριο θα κατασκευαστεί με πρώτης τάξεως υλικά και είναι ενεργειακής κλάσης Α’. Βρίσκεται σε εξαιρετική περιοχή και πολύ κοντά από σχολεία, πάρκο και από την Αλυκή της Λάρνακας. Αναμενόμενη ημερομηνία παράδοσης Δεκέμβριος 2025. Τιμή πώλησης 430,000 ευρώ πλέον Φ.Π.Α.
Owning a home is a keystone of wealth… both financial affluence and emotional security.
Suze OrmanTo provide the best experiences, we and our partners use technologies like cookies to store and/or access device information. Consenting to these technologies will allow us and our partners to process personal data such as browsing behavior or unique IDs on this site and show (non-) personalized ads. Not consenting or withdrawing consent, may adversely affect certain features and functions.
Click below to consent to the above or make granular choices. Your choices will be applied to this site only. You can change your settings at any time, including withdrawing your consent, by using the toggles on the Cookie Policy, or by clicking on the manage consent button at the bottom of the screen.