Larnaca District, Cyprus
Προς πώληση
€330,000
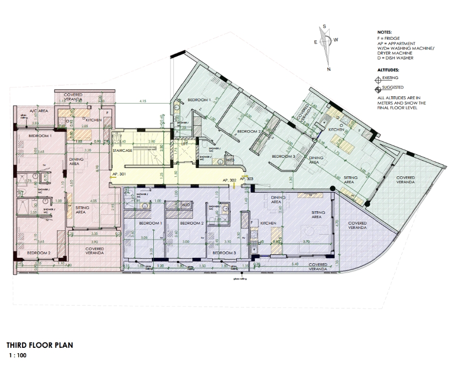
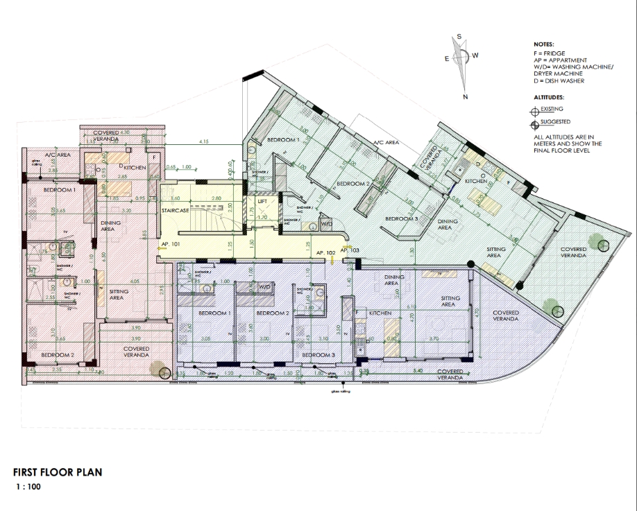
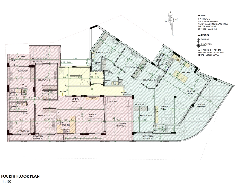
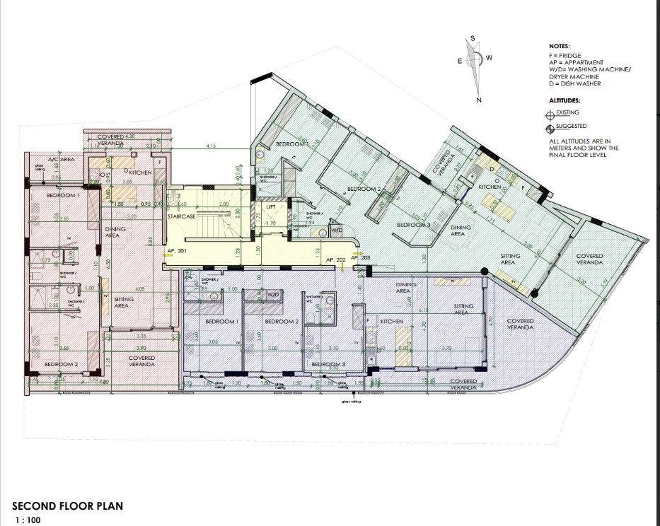
Πωλείται υπο ανέγερση διαμέρισμα τριών υπνοδωματίων στο κέντρο της πόλης – επαρχία Λάρνακας με 105 τ.μ. καλυμμένο εσωτερικό χώρο και 25 τ.μ. καλυμμένη βεράντα στον 1ο όροφο τετραώροφης πολυκατοικίας με 11 διαμερίσματα στο σύνολο. Το διαμέρισμα αποτελείται από ενιαίο χώρο κουζίνα/τραπεζαρία/σαλόνι και δύο χώρους υγιεινής εκ των οποίων en-suite μπάνιο στο κυρίως υπνοδωμάτιο. Διαθέτει πρόνοια συστήματος κλιματισμού, θυροτηλεόραση, κοινόχρηστο σύστημα φωτοβολταικών και ένα καλυμμένο χώρο στάθμευσης. Βρίσκεται στο κέντρο της πόλης, 5 λεπτά από τις Φοινικούδες, 5 λεπτά από την Ερμού, κοντά σε σχολείο, υπεραγορές και άλλες τις υπηρεσίες. Τιμή πώλησης 330,000 ευρώ πλέον Φ.Π.Α.
Owning a home is a keystone of wealth… both financial affluence and emotional security.
Suze OrmanTo provide the best experiences, we and our partners use technologies like cookies to store and/or access device information. Consenting to these technologies will allow us and our partners to process personal data such as browsing behavior or unique IDs on this site and show (non-) personalized ads. Not consenting or withdrawing consent, may adversely affect certain features and functions.
Click below to consent to the above or make granular choices. Your choices will be applied to this site only. You can change your settings at any time, including withdrawing your consent, by using the toggles on the Cookie Policy, or by clicking on the manage consent button at the bottom of the screen.