Κίτι, Λάρνακα, Κύπρος, 7550, Κύπρος
Προς πώληση
€225,000
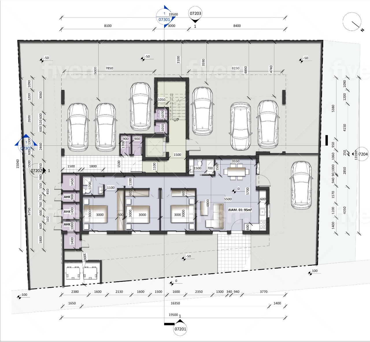
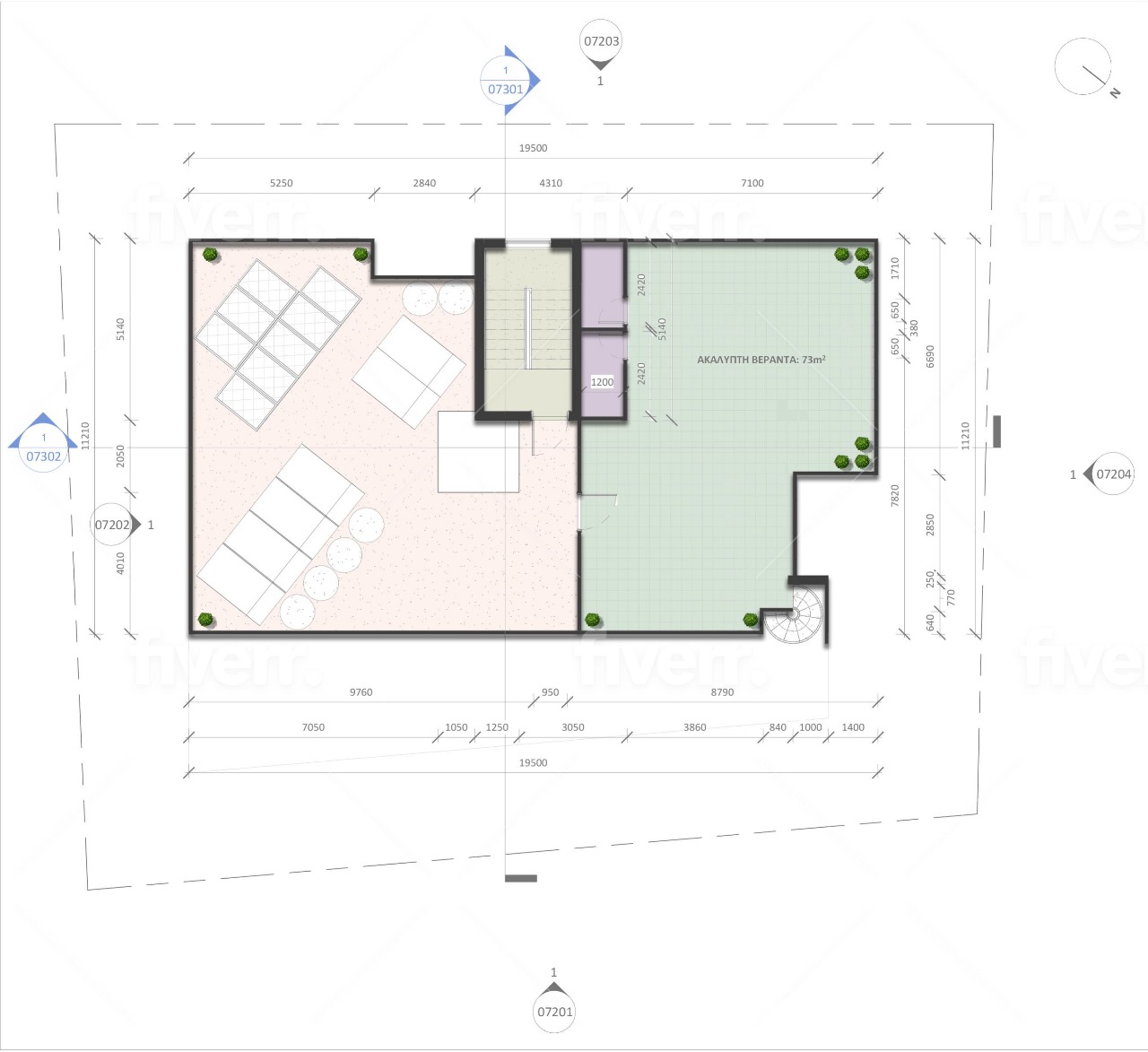
Πωλείται υπό ανέγερση διαμέρισμα τριών υπνοδωματίων στην περιοχή Κίτι – επαρχία Λάρνακας, στον 1ο όροφο διώροφης πολυκατοικίας με 6 διαμερίσματα συνολικά, με 95 τ.μ. καλυμμένο εσωτερικό χώρο, 7,50 τ.μ. καλυμμένη βεράντα και 6 τ.μ. ακάλυπτη. Το διαμέρισμα διαθέτει ενιαίο χώρο κουζίνα/σαλόνι/τραπεζαρία, δύο χώρους υγιεινής εκ των οποίων en-suite στο κυρίως υπνοδωμάτιο, ηλιακό θερμοσίφωνα, διπλά τζάμια, στεγασμένο χώρο στάθμευσης και αποθήκη. Η πολυκατοικία βρίσκεται κοντά σε όλες τις υπηρεσίες όπως σχολεία, καταστήματα και υπεραγορές. Επίσης είναι υψηλών προδιαγραφών και υψηλής ποιότητας κατασκευής με πιστοποιητικό Ενεργειακής Απόδοσης Α’. Αναμενόμενη ημερομηνία παράδοσης Δεκέμβριο 2026. Τιμή πώλησης 225,000 ευρώ πλέον Φ.Π.Α.
Owning a home is a keystone of wealth… both financial affluence and emotional security.
Suze OrmanTo provide the best experiences, we and our partners use technologies like cookies to store and/or access device information. Consenting to these technologies will allow us and our partners to process personal data such as browsing behavior or unique IDs on this site and show (non-) personalized ads. Not consenting or withdrawing consent, may adversely affect certain features and functions.
Click below to consent to the above or make granular choices. Your choices will be applied to this site only. You can change your settings at any time, including withdrawing your consent, by using the toggles on the Cookie Policy, or by clicking on the manage consent button at the bottom of the screen.