Paralimni, Κύπρος
Προς πώληση
€235,000
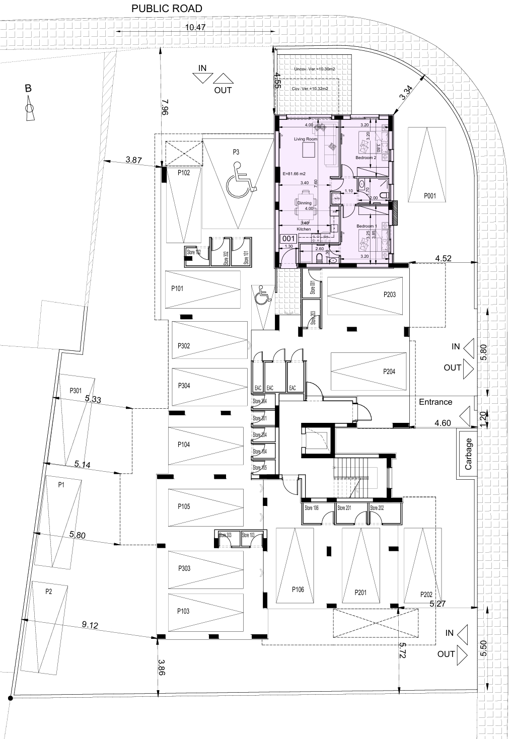
Πωλείται υπό ανέγερση διαμέρισμα τριών υπνοδωματίων στο Παραλίμνι – επαρχία Αμμοχώστου, με 108 τ.μ καλυμένους εσωτερικούς χώρους, 28 τ.μ καλυμμένη βεράντα και 36 τ.μ. ακάλυπτη βεράντα στον 2ο όροφο τριώροφης πολυκατοικίας με 15 διαμερίσματα στο σύνολο. Το διαμέρισμα αποτελείται από ενιαίο χώρο σαλόνι/τραπεζαρία, ξεχωριστή κουζίνα και δύο χώρους υγιεινής εκ των οποίων ιδιωτικό μπάνιο (en-suite) στο κυρίως υπνοδωμάτιο. Επιπλέον διαθέτει πρόνοιες κλιματισμού, αποθήκη και καλυμμένος χώρος στάθμευσης. Βρίσκεται σε ήσυχη περιοχή και κοντά σε όλες τις υπηρεσίες, 3 λεπτά από τις παραλίες του Πρωταρά, με εύκολη πρόσβαση στον αυτοκινητόδρομο Λάρνακας-Λευκωσίας. Τιμή πώλησης 235,000 ευρώ πλέον Φ.Π.Α.
Owning a home is a keystone of wealth… both financial affluence and emotional security.
Suze OrmanTo provide the best experiences, we and our partners use technologies like cookies to store and/or access device information. Consenting to these technologies will allow us and our partners to process personal data such as browsing behavior or unique IDs on this site and show (non-) personalized ads. Not consenting or withdrawing consent, may adversely affect certain features and functions.
Click below to consent to the above or make granular choices. Your choices will be applied to this site only. You can change your settings at any time, including withdrawing your consent, by using the toggles on the Cookie Policy, or by clicking on the manage consent button at the bottom of the screen.