Kato Polemidion Municipality, Limassol District, Cyprus
Προς πώληση
€4,200,000
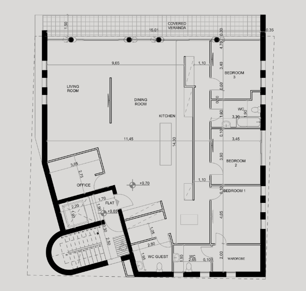
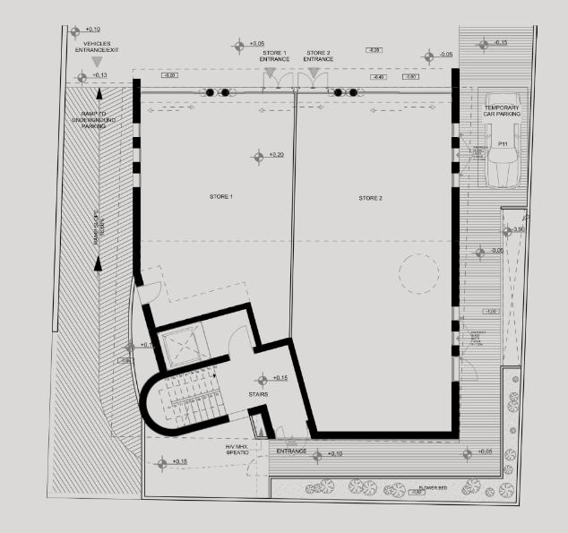
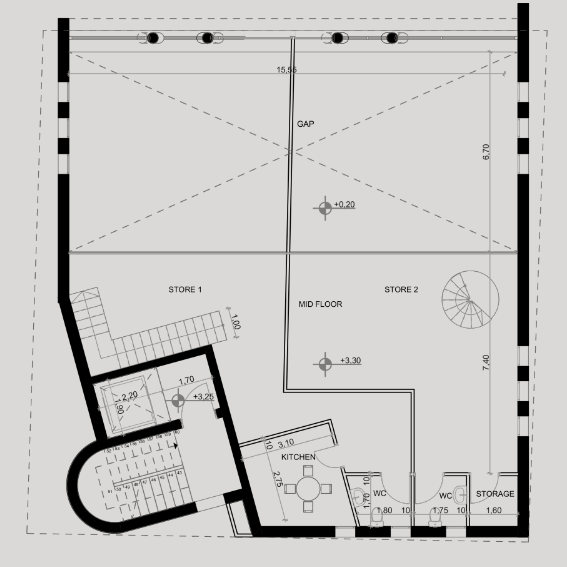
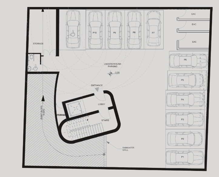
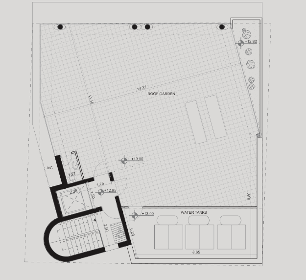
Πωλείται υπό ανέγερση εμπορικό κτίριο στην περιοχή Κάτω Πολεμίδια της επαρχίας Λεμεσού. Το υπόγειο αποτελείται από 429 τ.μ. με 11 θέσεις στάθμευσης, αποθήκη και τουαλέτα. Το ισόγειο αποτελείται από 258 τ.μ. καλυμμένο εσωτερικό χώρο χωρισμένο σε 2 καταστήματα, ο εκθεσιακός χώρος από 139 τ.μ., ο πρώτος όροφος αποτελείται από 197 τ.μ. καλυμμένο εσωτερικό χώρο, 61 τ.μ. καλυμμένη βεράντα, , ο δεύτερος όροφος αποτελείται από 258 τ.μ. καλυμμένο εσωτερικό χώρο, 23 τ.μ. καλυμμένη βεράντα, και ο κήπος οροφής αποτελείται από 88 τ.μ. καλυμμένο εσωτερικό χώρο και 21 τ.μ. καλυμμένες βεράντες. Το κτίριο είναι κτισμένο σε 1000 τ.μ. οικόπεδο ,είναι κατάλληλο για γραφεία και κέντρα λιανικής. Το έργο διαθέτει πιστοποιητικό ενεργειακής απόδοσης Α. Τέλος βρίσκεται σε καλή περιοχή, κοντά σε υπηρεσίες και ανέσεις. Τιμή πώλησης 4,200,000 ευρώ, πλέον Φ.Π.Α.
Owning a home is a keystone of wealth… both financial affluence and emotional security.
Suze OrmanTo provide the best experiences, we and our partners use technologies like cookies to store and/or access device information. Consenting to these technologies will allow us and our partners to process personal data such as browsing behavior or unique IDs on this site and show (non-) personalized ads. Not consenting or withdrawing consent, may adversely affect certain features and functions.
Click below to consent to the above or make granular choices. Your choices will be applied to this site only. You can change your settings at any time, including withdrawing your consent, by using the toggles on the Cookie Policy, or by clicking on the manage consent button at the bottom of the screen.