Yeroskipou, Δήμος Ανατολικής Πάφου, Paphos District, Cyprus
Προς πώληση
€1,125,000
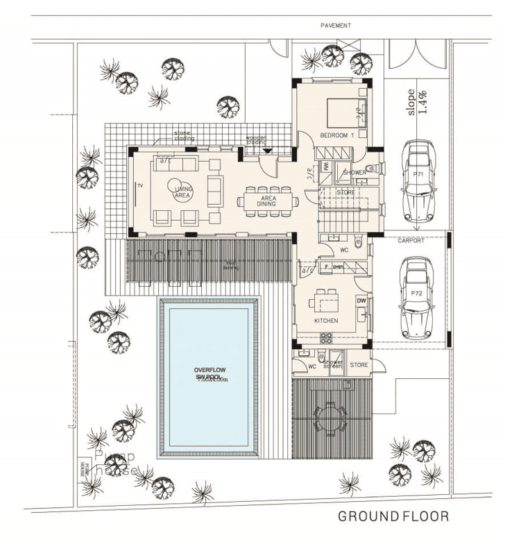
Πωλείται υπο ανέγερση έπαυλη τεσσάρων υπνοδωματίων στη Γεροσκήπου. Αποτελείται από 183 τ.μ. καλυμμένο εσωτερικό χώρο, 1 τ.μ. καλυμμένη βεράντα, 22 τ.μ. καλυμμένο χώρο στάθμευσης, 21 τ.μ. καλυμμένο κήπο οροφής, 103 τ.μ. ακάλυπτη βεράντα και 49 τ.μ. ακάλυπτη βεράντα στον κήπο οροφής, χτισμένη σε 552 τ.μ. οικόπεδο, ενεργειακής απόδοσης Α. Διαθέτει επτά χώρους υγιεινής, en suite τέσσερα εξ αυτών και πισίνα υπερχείλισης. Βρίσκεται σε ήσυχη περιοχή κοντά στη θάλασσα. Τιμή πώλησης 1,125,000 ευρώ πλέον ΦΠΑ.
Owning a home is a keystone of wealth… both financial affluence and emotional security.
Suze OrmanTo provide the best experiences, we and our partners use technologies like cookies to store and/or access device information. Consenting to these technologies will allow us and our partners to process personal data such as browsing behavior or unique IDs on this site and show (non-) personalized ads. Not consenting or withdrawing consent, may adversely affect certain features and functions.
Click below to consent to the above or make granular choices. Your choices will be applied to this site only. You can change your settings at any time, including withdrawing your consent, by using the toggles on the Cookie Policy, or by clicking on the manage consent button at the bottom of the screen.