Tombs of the Kings Avenue, Kato Paphos, Paphos Municipality, Paphos District, Cyprus, 8040, Cyprus
Προς πώληση
€1,270,000
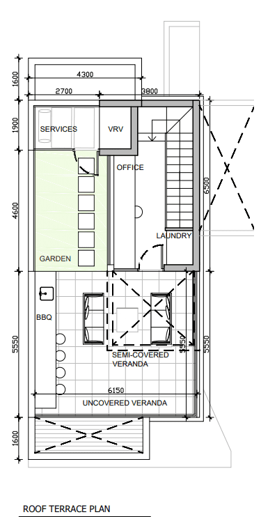
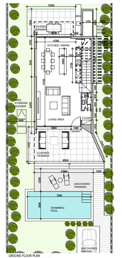
Πωλείται υπό ανέγερση έπαυλη τριών υπνοδωματίων με πισινα στη περιοχή Τάφοι των Βασιλέων στη Πάφο Αποτελείται από 168 τ.μ. καλυμμένους εσωτερικούς χώρους, 38 τ.μ. καλυμμένη βεράντα, 18 τ.μ. ημικαλυμμένες βεράντες, 14 τ.μ. ακάλυπτο χώρο στάθμευσης, 4 τ.μ. αποθήκη, 7×3 m πισίνα σε 410 τ.μ. οικόπεδο. Διαθέτει τρεις χώρους υγιεινής, ensuite στο κυρίως υπνοδωμάτιο, γκαρνταρόμπα υποδοχής, γραφείο, εξωτερικό ντουζ ,πλυσταριό, ψησταριά, κλιματιστικό σύστημα τύπου VRV, υποδαπέδια θέρμανση, ηλεκτρικές συσκευές, και ηλιακό/ηλεκτρικό θερμοσίφωνα. Βρίσκεται σε πολύ ωραία και καλή περιοχή κοντά σε όλες τις ανέσεις. Τιμή πώλησης 1,270.000 πλέον Φ.Π.Α.
Owning a home is a keystone of wealth… both financial affluence and emotional security.
Suze OrmanTo provide the best experiences, we and our partners use technologies like cookies to store and/or access device information. Consenting to these technologies will allow us and our partners to process personal data such as browsing behavior or unique IDs on this site and show (non-) personalized ads. Not consenting or withdrawing consent, may adversely affect certain features and functions.
Click below to consent to the above or make granular choices. Your choices will be applied to this site only. You can change your settings at any time, including withdrawing your consent, by using the toggles on the Cookie Policy, or by clicking on the manage consent button at the bottom of the screen.