Palodeia, Σύμπλεγμα Κοινοτήτων Ημιορεινής Λεμεσού, Limassol District, Cyprus, 4549, Cyprus
Προς πώληση
€530,000
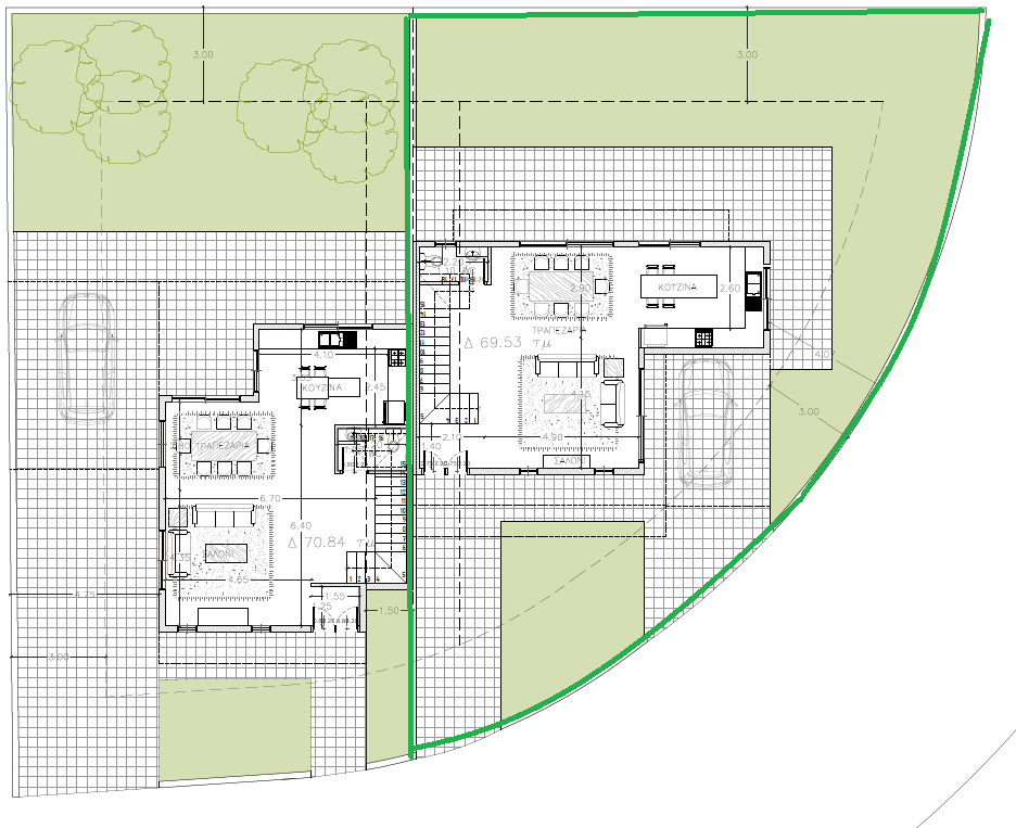
Πωλείται υπό ανέγερση γωνιακή ημι-ανεξάρτητη οικία τριών υπνοδωματίων στην ιδιαίτερα δημοφιλή και συνεχώς αναπτυσσόμενη περιοχή Παλόδεια της επαρχίας Λεμεσού, σε προνομιακή τοποθεσία που συνδυάζει ηρεμία και άμεση πρόσβαση σε βασικές υπηρεσίες και ανέσεις. Η κατοικία ανεγείρεται σε οικόπεδο 315 τ.μ. και προσφέρει 140 τ.μ. καλυμμένο εσωτερικό χώρο, καθώς και 25 τ.μ.καλυμμένη βεράντα και 30 τ.μ. ακάλυπτη βεράντα, σχεδιασμένα με έμφαση στη λειτουργικότητα, την άνεση και την ποιότητα κατασκευής. Στο ισόγειο υπάρχει 1 τουαλέτα ξένων, καθιστικό, κουζίνα , τραπεζαρία, αυλή ,αποθήκη και καλυμμένος χώρος στάθμευσης. Στον πρώτο όροφο βρίσκονται τρία άνετα υπνοδωμάτια, 2 χώρου υιγιεινής εκ των οποίων το κυρίως διαθέτει ιδιωτικό μπάνιο (en suite). Η οικία διαθέτει πρόνοια για σύστημα κλιματισμού και θέρμανσης, πιεστικό σύστημα νερού, ηλεκτρικά ρολά στα παράθυρα, πρόνοια για σύστημα ασφαλείας, καθώς και φωτοβολταϊκό σύστημα ισχύος 5kW, εξασφαλίζοντας ενεργειακή απόδοση και χαμηλό κόστος λειτουργίας. Το έργο συνοδεύεται από Πιστοποιητικό Ενεργειακής Απόδοσης κατηγορίας Α, καθιστώντας το ιδανική επιλογή. Τιμή πώλησης 530,000 ευρώ πλέον Φ.Π.Α.
Owning a home is a keystone of wealth… both financial affluence and emotional security.
Suze OrmanTo provide the best experiences, we and our partners use technologies like cookies to store and/or access device information. Consenting to these technologies will allow us and our partners to process personal data such as browsing behavior or unique IDs on this site and show (non-) personalized ads. Not consenting or withdrawing consent, may adversely affect certain features and functions.
Click below to consent to the above or make granular choices. Your choices will be applied to this site only. You can change your settings at any time, including withdrawing your consent, by using the toggles on the Cookie Policy, or by clicking on the manage consent button at the bottom of the screen.