Κίτι, Δήμος Δρομολαξιάς - Μενεού, Επαρχία Λάρνακας, Κύπρος, 7550, Κύπρος
Προς πώληση
€379,000
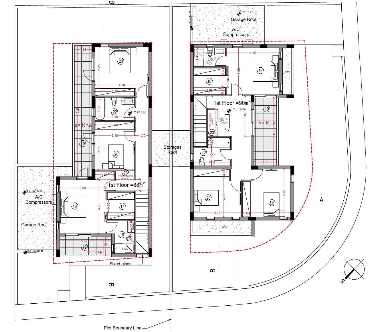
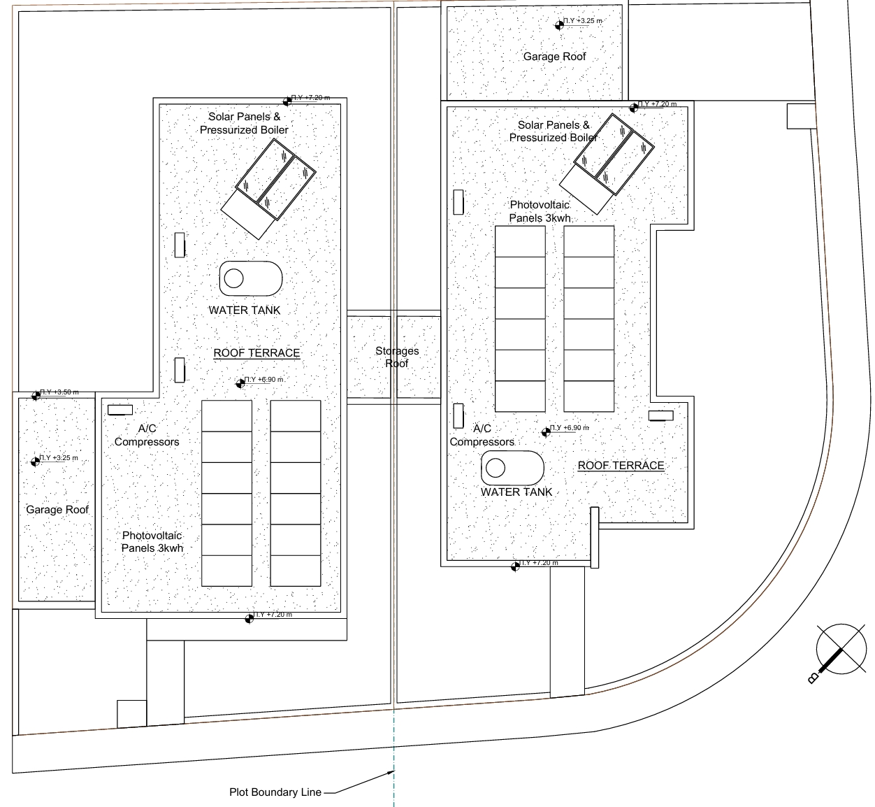
Πωλείται υπό ανέγερση γωνιακή κατοικία τριών υπνοδωματίων στο Κίτι, επαρχία Λάρνακας με 180 τ.μ. καλυμμένο εσωτερικό χώρο, 31 τ.μ. καλυμμένες βεράντες, 22 τ.μ. ακάλυπτες βεράντες και 101 τ.μ. αυλή σε 291 τ.μ. οικόπεδο. Το ισόγειο αποτελείται από ενιαίο χώρο κουζίνα/τραπεζαρία/καθιστικό και μια τουαλέτα ξένων. Ο επάνω όροφος αποτελείται από τρία μεγάλα υπνοδωμάτια εκ των οποίων en-suite στο κυρίως υπνοδωμάτιο και ένα κοινόχρηστο μπάνιο. Το εξωτερικό αποτελείται από καλυμμένες και ακάλυπτες βεράντες, κήπο, αυλή, αποθήκη και ένα καλυμμένο χώρο στάθμευσης 19 τ.μ. Η κατοικία διαθέτει φωτοβολταικό σύστημα 3kw, ηλιακό θερμοσίφωνα με πιεστικό νερού, πρόνοιες κλιματιστικού συστήματος, πρόνοιες ηλεκτρικής θέρμανσης, πρόνοια συστήματος συναγερμού και CCTV κάμερα ασφαλείας. Είναι ενεργειακής απόδοσης Α και βρίσκεται κοντά σε όλες τις υπηρεσίες και ανέσεις, 3 χιλιόμετρα από το αεροδρόμιο και την εθνική οδό και 3,5 χιλιόμετρα από την παραλία. Τιμή πώλησης 379,000 ευρώ πλέον ΦΠΑ.
Owning a home is a keystone of wealth… both financial affluence and emotional security.
Suze OrmanTo provide the best experiences, we and our partners use technologies like cookies to store and/or access device information. Consenting to these technologies will allow us and our partners to process personal data such as browsing behavior or unique IDs on this site and show (non-) personalized ads. Not consenting or withdrawing consent, may adversely affect certain features and functions.
Click below to consent to the above or make granular choices. Your choices will be applied to this site only. You can change your settings at any time, including withdrawing your consent, by using the toggles on the Cookie Policy, or by clicking on the manage consent button at the bottom of the screen.