Kalavasos, Σύμπλεγμα Κοινοτήτων Βασιλικού-Πεντάσχοινου, Larnaca District, Cyprus, 7044, Cyprus
Προς πώληση
€265,000
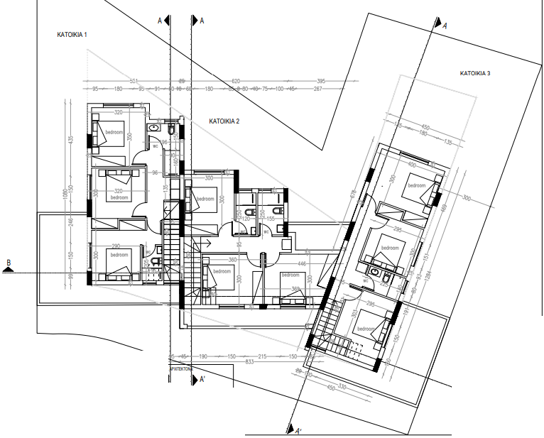
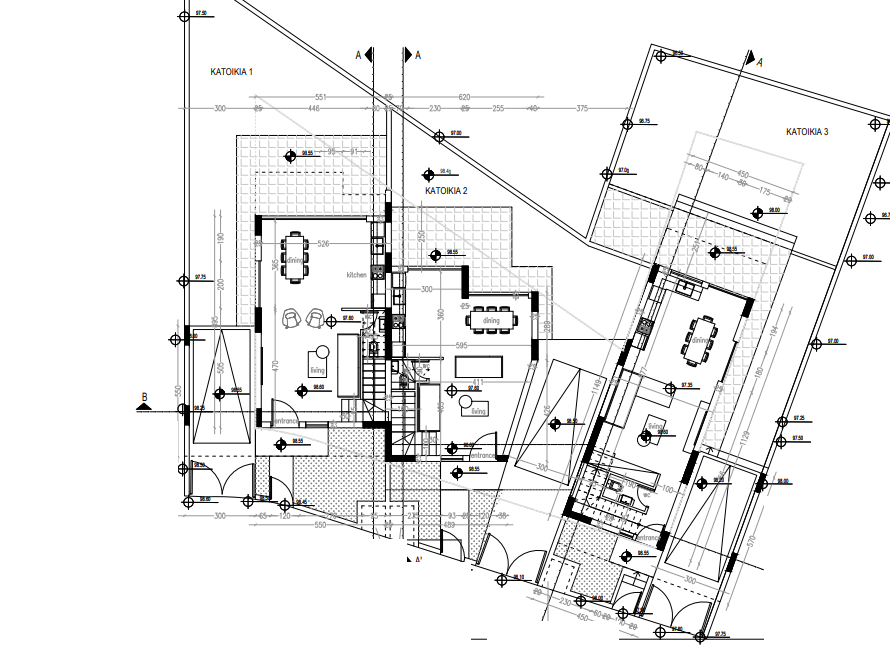
Πωλείται υπό ανέγερση ημι-ανεξάρτητη κατοικία τριών υπνοδωματίων στην όμορφη και αναπτυσσόμενη περιοχή της Καλαβασός, στην επαρχία Λάρνακα. Η κατοικία ξεχωρίζει για τον σύγχρονο αρχιτεκτονικό της σχεδιασμό, την εξαιρετική διαρρύθμιση και την προσεγμένη κατασκευή υψηλών προδιαγραφών, αποτελώντας ιδανική επιλογή τόσο για ιδιοκατοίκηση όσο και για επένδυση. Αποτελείται από 105,15 τ.μ. καλυμμένο εσωτερικό χώρο με άνετους και λειτουργικούς χώρους, 3 τ.μ. καλυμμένη βεράντα και 18 τ.μ. ακάλυπτη βεράντα, τοποθετημένα σε οικόπεδο 149 τ.μ., προσφέροντας ιδιωτικότητα και άνεση. Διαθέτει τρεις χώρους υγιεινής, εκ των οποίων το ένα en suite στο κυρίως υπνοδωμάτιο, πρόνοια για σύστημα κλιματισμού και θέρμανσης, πιεστικό σύστημα νερού, ηλιακό θερμοσίφωνα, ευρύχωρη αυλή ιδανική για στιγμές χαλάρωσης ή διαμόρφωση κήπου, αποθήκη και καλυμμένο χώρο στάθμευσης. Το έργο διαθέτει πιστοποιητικό ενεργειακής απόδοσης Α, εξασφαλίζοντας χαμηλό ενεργειακό κόστος και υψηλή ποιότητα διαβίωσης, και βρίσκεται σε προνομιακή τοποθεσία με εύκολη πρόσβαση σε υπηρεσίες και ανέσεις, σε κομβικό σημείο μεταξύ Λεμεσού και Λάρνακας. Τιμή πώλησης 265,000, πλέον Φ.Π.Α.
Owning a home is a keystone of wealth… both financial affluence and emotional security.
Suze OrmanTo provide the best experiences, we and our partners use technologies like cookies to store and/or access device information. Consenting to these technologies will allow us and our partners to process personal data such as browsing behavior or unique IDs on this site and show (non-) personalized ads. Not consenting or withdrawing consent, may adversely affect certain features and functions.
Click below to consent to the above or make granular choices. Your choices will be applied to this site only. You can change your settings at any time, including withdrawing your consent, by using the toggles on the Cookie Policy, or by clicking on the manage consent button at the bottom of the screen.