Mesogi, Paphos District, Cyprus, 8290, Cyprus
Προς πώληση
€480,000
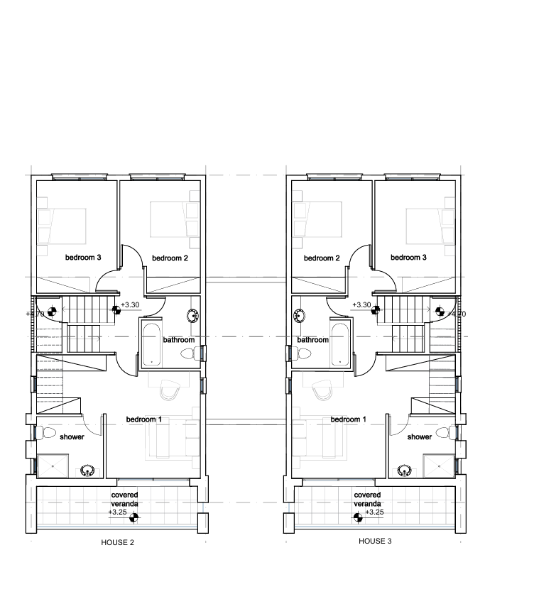
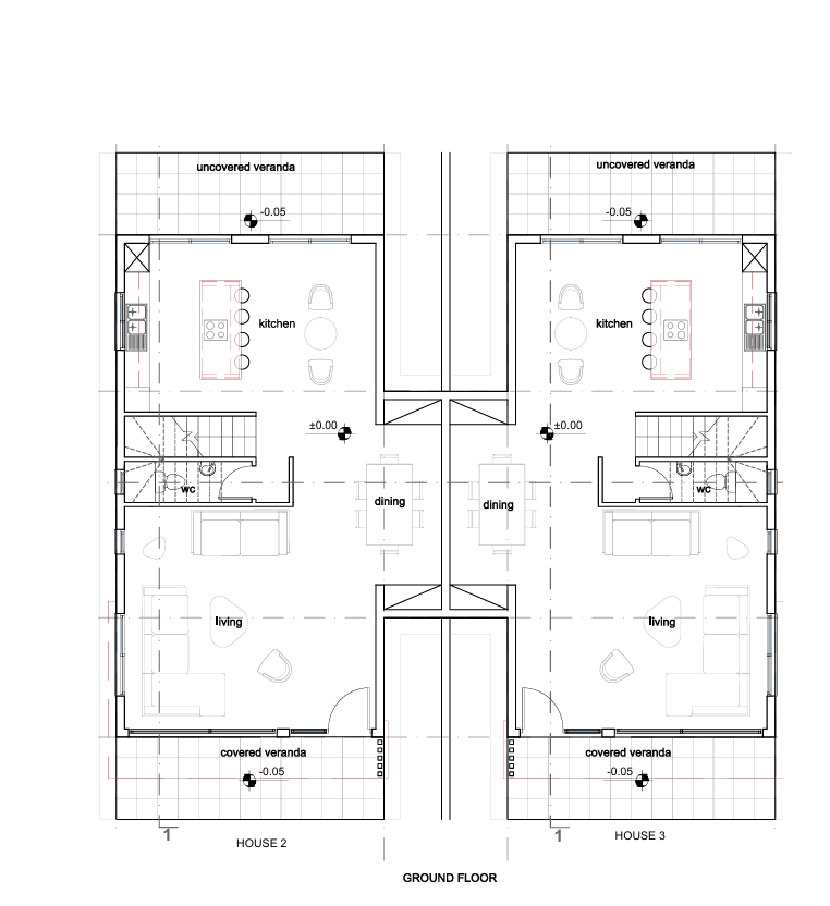
Πωλείται υπό ανέγερση ημί ανεξάρτητη οικία τριών υπνοδωματίων στη Μεσόγη της επαρχίας Πάφου. Αποτελείται από 180 τ.μ. καλυμμένο χώρο, χτισμένη σε 320 τ.μ. οικόπεδο. Διαθέτει τρεις χώρους υγιεινής, en suite στο κυρίως υπνοδωμάτιο, θυροτηλέφωνο, 5kw φωτοβολταϊκά, χώρο για ψησταριά και ακάλυπτο χώρο στάθμευσης. Επιπλέον διαθέτει πρόνοια για σύστημα κλιματισμού, πρόνοια για κεντρική θέρμανση και πρόνοια για φορτιστή ηλεκτρικών οχημάτων. Το ακίνητο διαθέτει πιστοποιητικό ενεργειακής απόδοσης Α. Βρίσκεται σε καλή περιοχή κοντα στο κέντρο της πόλης, κοντα στη θάλασσα, κοντα σε σχολεία, κοντα στον αυτοκινητόδρομο και κοντά σε διάφορες ανέσεις και υπηρεσίες. Υπάρχει δυνατότητα προσθήκης πισίνας 8×4 μέτρα με επιπλέον χρέωση 30,000 ευρώ πλέον ΦΠΑ και κήπου οροφής 42 τ.μ. μέτρα με επιπλέον χρέωση 35,000 ευρώ πλέον ΦΠΑ. Τιμή πώλησης 480,000 πλέον ΦΠΑ.
Owning a home is a keystone of wealth… both financial affluence and emotional security.
Suze OrmanTo provide the best experiences, we and our partners use technologies like cookies to store and/or access device information. Consenting to these technologies will allow us and our partners to process personal data such as browsing behavior or unique IDs on this site and show (non-) personalized ads. Not consenting or withdrawing consent, may adversely affect certain features and functions.
Click below to consent to the above or make granular choices. Your choices will be applied to this site only. You can change your settings at any time, including withdrawing your consent, by using the toggles on the Cookie Policy, or by clicking on the manage consent button at the bottom of the screen.