Kiti, Larnaca District, Cyprus, 7550, Cyprus
Προς πώληση
€275,000
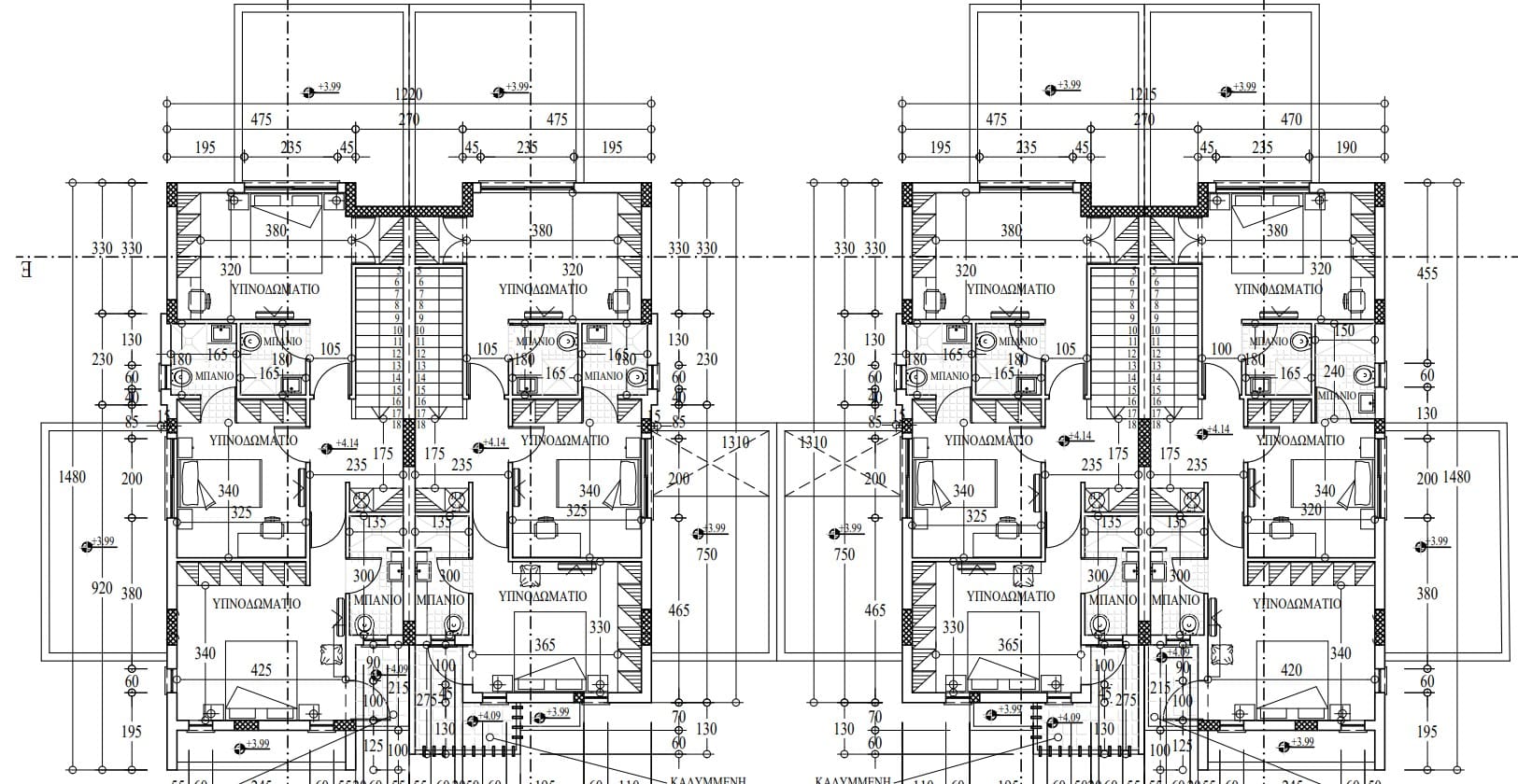
Πωλείται υπό ανέγερση ημιανεξάρτητη κατοικία τριών υπνοδωματίων στην περιοχή Κιτίου – επαρχία Λάρνακας, με 149 τ.μ. καλυμμένο εσωτερικό χώρο και 22 τ.μ. καλυμμένη βεράντα σε 227 τ.μ. οικόπεδο. Διαθέτει en-suite σε όλα τα υπνοδωμάτια, 1 τουαλέτα ξένων, πρόνοιες κλιματισμού και κεντρικής θέρμανσης, ηλιακό θερμοσίφωνα, θυροτηλεόραση, πλήρη εγκατάσταση φωτοβολταϊκού συστήματος απόδοσης 3KW, καλυμμένο χώρο στάθμευσης και αποθήκη. Επιπλέον διαθέτει πιστοποιητικό Ενεργειακής Απόδοσης Α’. Βρίσκεται σε πολύ καλή περιοχή, κοντά σε όλες τις υπηρεσίες. Τιμή πώλησης 275.000 ευρώ πλέον Φ.Π.Α.
Owning a home is a keystone of wealth… both financial affluence and emotional security.
Suze OrmanTo provide the best experiences, we and our partners use technologies like cookies to store and/or access device information. Consenting to these technologies will allow us and our partners to process personal data such as browsing behavior or unique IDs on this site and show (non-) personalized ads. Not consenting or withdrawing consent, may adversely affect certain features and functions.
Click below to consent to the above or make granular choices. Your choices will be applied to this site only. You can change your settings at any time, including withdrawing your consent, by using the toggles on the Cookie Policy, or by clicking on the manage consent button at the bottom of the screen.