Dhekelia
Προς πώληση
€475,000
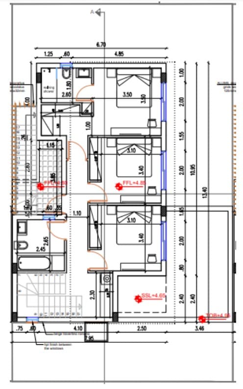
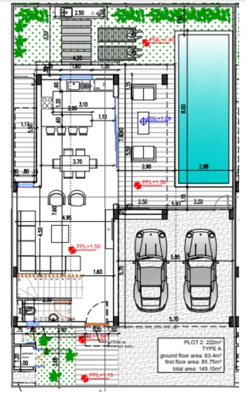
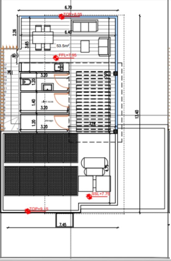
Πωλείται υπο ανέγερση ημιανεξάρτητη κατοικία τριών υπνοδωματίων στην Δεκέλεια – επαρχία Λάρνακας, με 149 τ.μ. καλυμμένο εσωτερικό χώρο, 28 τ.μ. καλυμμένη βεράντα και 9 τ.μ. ακάλυπτη βεράντα σε 222 τ.μ. οικόπεδο. Διαθέτει en-suite στο κυρίως υπνοδωμάτιο, μία τουαλέτα ξένων, δύο μπάνια, διπλό καλυμμένο χώρο στάθμευσης, θυροτηλεόραση, πρόνοιες κλιματισμού, πρόνοια για φόρτιση ηλεκτρικού αυτοκινήτου, φωτοβολταϊκό σύστημα αποδοσης 3KW, ηλιακό θερμοσίφωνα, πιεστικό σύστημα νερού και ιδιωτική πισίνα. Βρίσκεται σε πολύ καλή περιοχή, κοντά σε όλες τις υπηρεσίες. Επιπλέον διαθέτει πιστοποιητικό Ενεργειακής Απόδοσης Α. Τιμή πώλησης 475,000 ευρώ πλέον Φ.Π.Α.
Owning a home is a keystone of wealth… both financial affluence and emotional security.
Suze OrmanTo provide the best experiences, we and our partners use technologies like cookies to store and/or access device information. Consenting to these technologies will allow us and our partners to process personal data such as browsing behavior or unique IDs on this site and show (non-) personalized ads. Not consenting or withdrawing consent, may adversely affect certain features and functions.
Click below to consent to the above or make granular choices. Your choices will be applied to this site only. You can change your settings at any time, including withdrawing your consent, by using the toggles on the Cookie Policy, or by clicking on the manage consent button at the bottom of the screen.