Erimi Municipality, Limassol District, Cyprus, 4630, Cyprus
Προς πώληση
€480,000
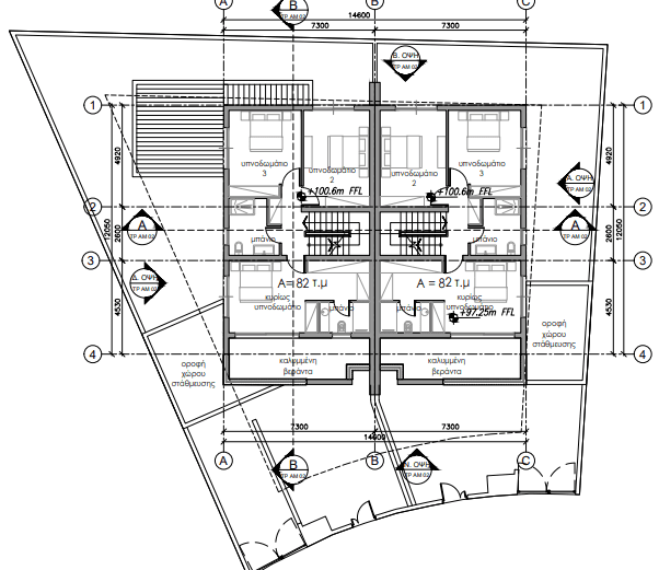
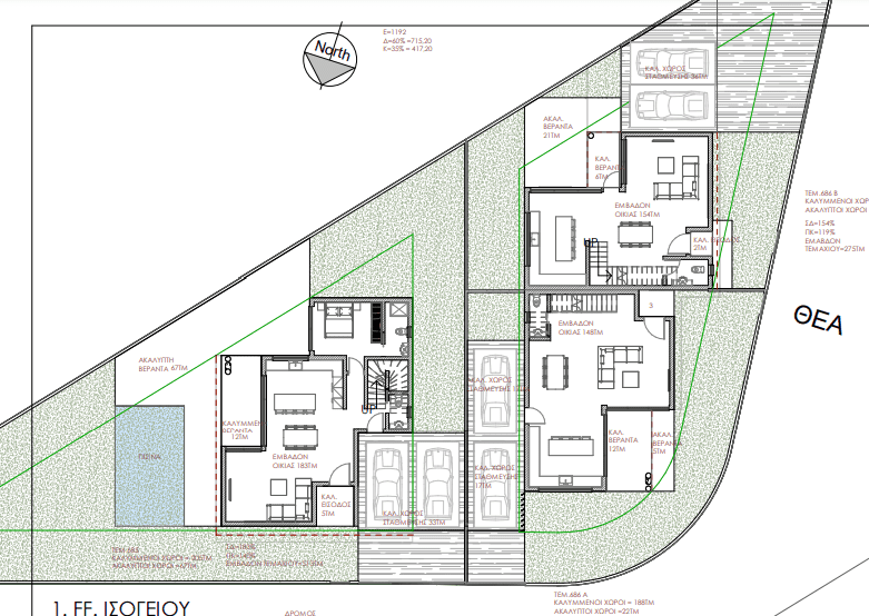
Πωλείται υπό ανέγερση ημιανεξάρτητη οικία τριών υπνοδωματίων στην Ερήμη στη Λεμεσό. Η οικία θα κατασκευαστεί με μεταλλικό σκελετό. Αποτελείται από 172 τ.μ. καλυμμένο εσωτερικό χώρο, 24 τ.μ. καλυμμένη βεράντα και 14 τ.μ. ακάλυπτη βεράντα σε 230 τ.μ. οικόπεδο. Διαθέτει 3 χώρους υγιεινής, en suite στο κυρίως υπνοδωμάτιο, αυλή με κήπο, καλυμμένο χώρο στάθμευσης, φωτοβολταϊκό σύστημα, πρόνοιες κλιματισμού και θέρμανσης. Είναι Ενεργειακής Απόδοσης Α’. Αναμενόμενη ημερομηνία παράδοσης στο τέλος του 2024. Βρίσκεται σε πολύ ωραία και ήσυχη περιοχή και κοντά σε όλες τις υπηρεσίες. Τιμή πώλησης 480,000 ευρώ πλέον Φ.Π.Α.
Owning a home is a keystone of wealth… both financial affluence and emotional security.
Suze OrmanTo provide the best experiences, we and our partners use technologies like cookies to store and/or access device information. Consenting to these technologies will allow us and our partners to process personal data such as browsing behavior or unique IDs on this site and show (non-) personalized ads. Not consenting or withdrawing consent, may adversely affect certain features and functions.
Click below to consent to the above or make granular choices. Your choices will be applied to this site only. You can change your settings at any time, including withdrawing your consent, by using the toggles on the Cookie Policy, or by clicking on the manage consent button at the bottom of the screen.