Latsia, Greater Nicosia, Nicosia District, Cyprus
Προς πώληση
€360,000
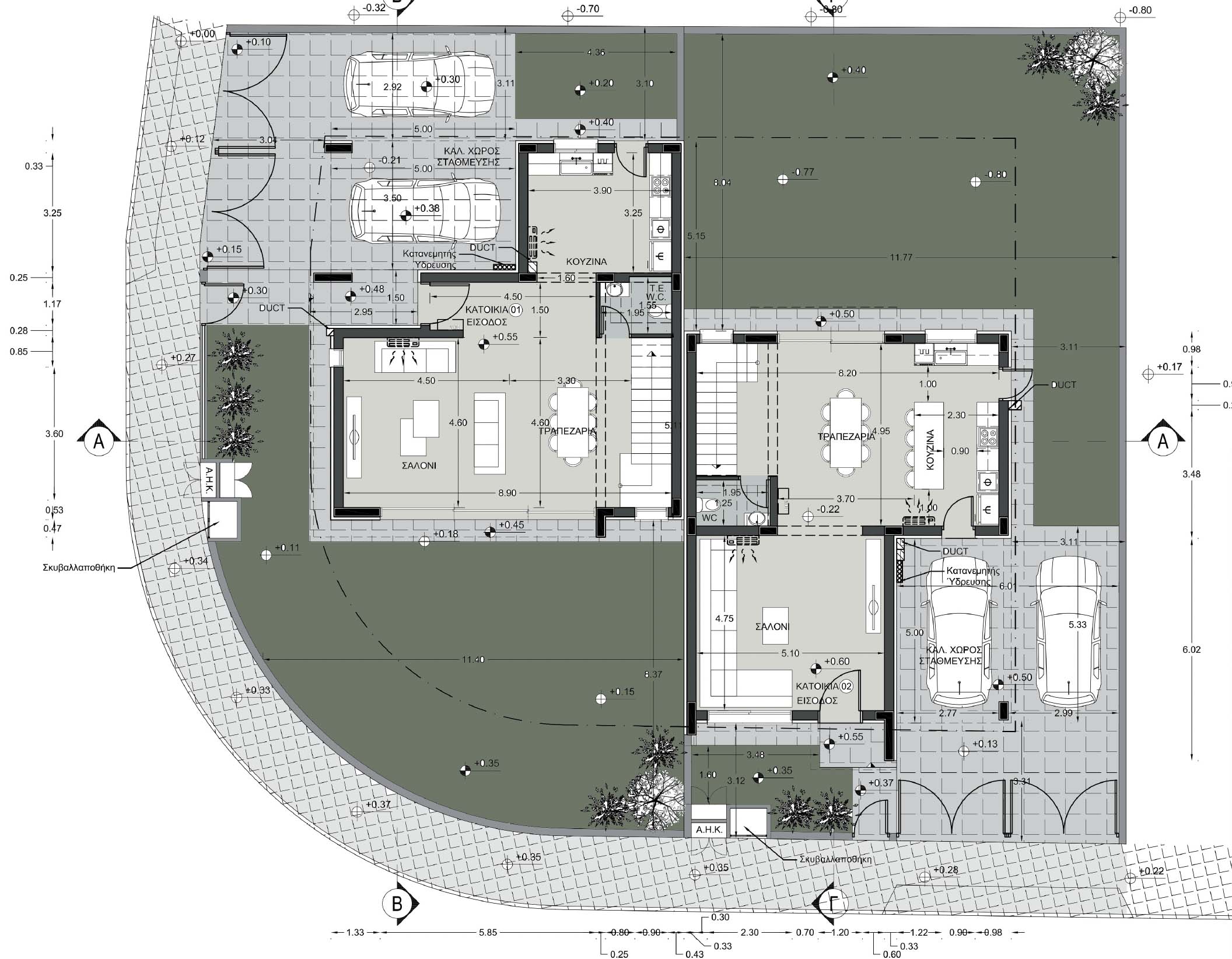
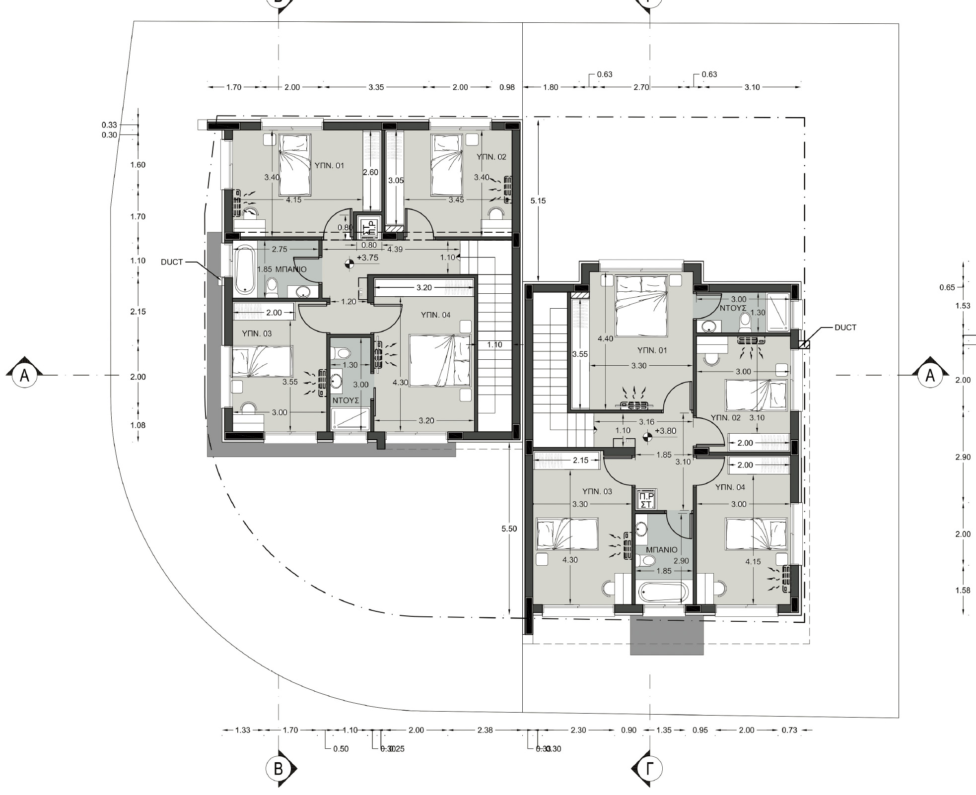
Πωλείται υπό ανέγερση ημιανεξάρτητη γωνιακή κατοικία τεσσάρων υπνοδωματίων στα Λατσιά – επαρχία Λευκωσίας, με 175 τ.μ. εσωτερικό καλυμμένο χώρο, σε 264,5 τ.μ. οικόπεδο. Διαθέτει εγκατεστημένη υποδαπέδια ηλεκτρική θέρμανση 8 σημείων, πρόνοια κλιματισμού, πλήρη εγκατάσταση φωτοβολταϊκού συστήματος απόδοσης 3KW με σύστημα net metering μέχρι λειτουργίας, εγκατεστημένες κάμερες ασφαλείας, 3 χώρους υγιεινής, en suite στο κυρίως υπνοδωμάτιο, πιεστικό σύστημα νερού, αυλή με κήπο, 1 καλυμμένο και 1 ακάλυπτο χώρο στάθμευσης τύπου side by side, πρόνοια για φορτιστή ηλεκτρικού αυτοκινήτου και αποθήκη. Έχει έγκριση για πιστοποιητικό ενεργειακής Απόδοσης κλάσης Α’. Τιμή πώλησης 360,000 ευρώ συν Φ.Π.Α.
Owning a home is a keystone of wealth… both financial affluence and emotional security.
Suze OrmanTo provide the best experiences, we and our partners use technologies like cookies to store and/or access device information. Consenting to these technologies will allow us and our partners to process personal data such as browsing behavior or unique IDs on this site and show (non-) personalized ads. Not consenting or withdrawing consent, may adversely affect certain features and functions.
Click below to consent to the above or make granular choices. Your choices will be applied to this site only. You can change your settings at any time, including withdrawing your consent, by using the toggles on the Cookie Policy, or by clicking on the manage consent button at the bottom of the screen.