Fasoula, Cyprus
Προς πώληση
€577,500
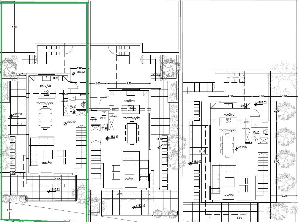
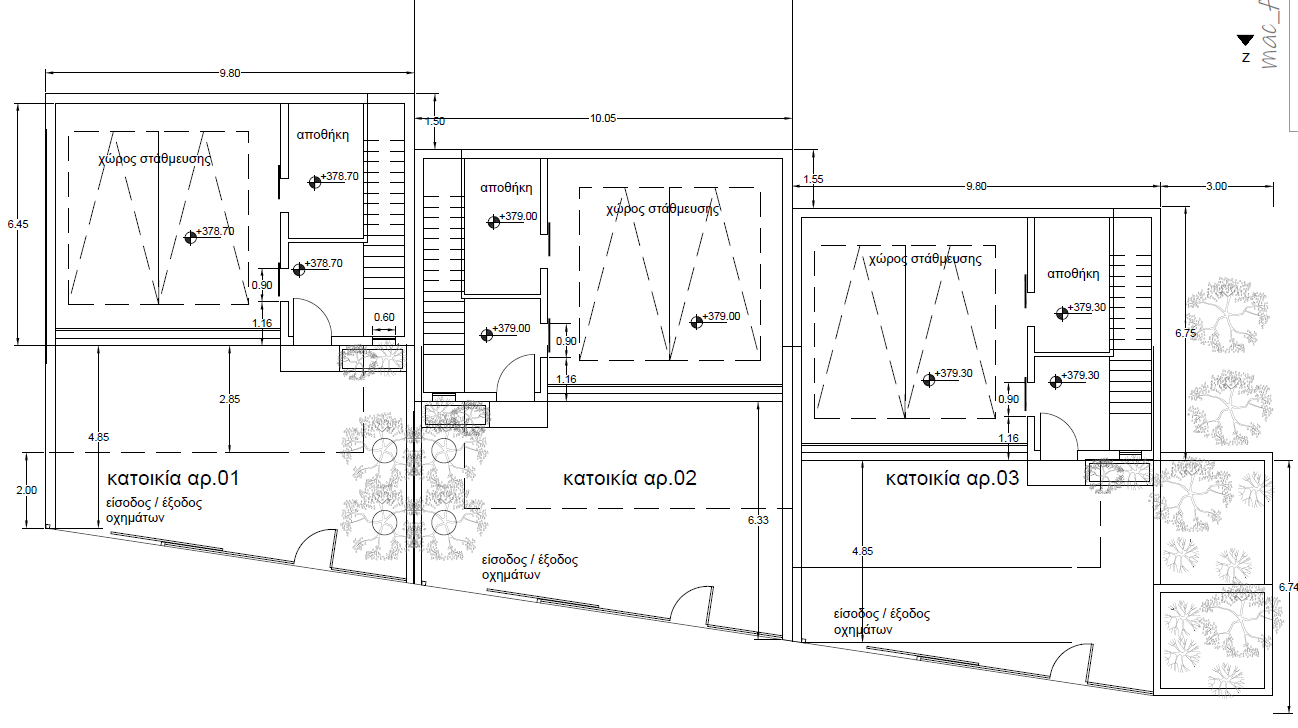
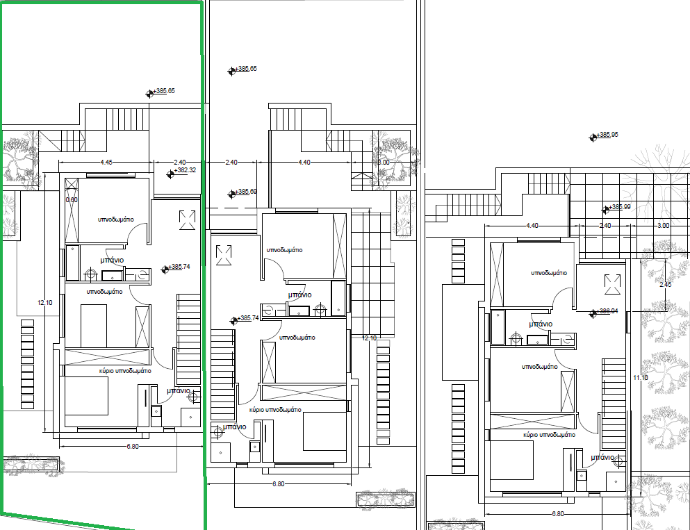
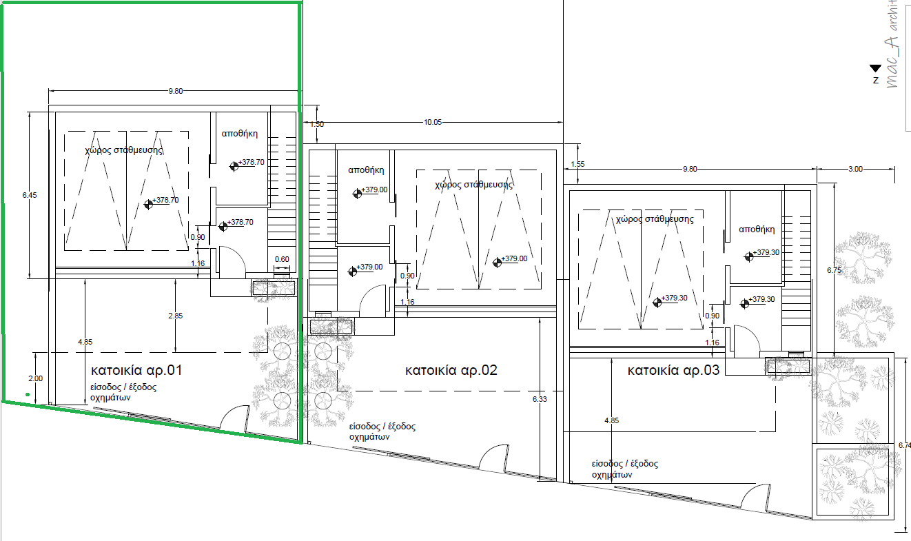
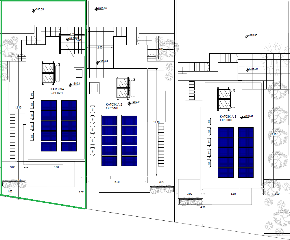
Πωλείται υπό ανέγερση ημιανεξάρτητη οικία τριών υπνοδωματίων στην περιοχή Φασούλα της επαρχίας Λεμεσού. Αποτελείται από 170 τ.μ. καλυμμένο εσωτερικό χώρο και 70 τ.μ. καλυμμένο χώρο στάθμευσης. Διαθέτει στο ισόγειο 1 χώρο υγιεινής, καθιστικό τραπεζαρία, μεγάλη κουζίνα και κήπο, στον 1ο όροφο διαθέτει 2 χώρους υγιεινής εκ των οποίων en suite στο κυρίως υπνοδωμάτιο και στο υπόγειο υπάρχει αποθήκη και οι 2 χώροι στάθμευσης. Επίσης η οικία διαθέτει πρόνοια για σύστημα κλιματισμού και θέρμανσης, πρόνοια για ηλεκτρικά ρολά, πιεστικό σύστημα νερού, ηλιακό θερμοσίφωνα και διπλά τζάμια στα παράθυρα. Το έργο διαθέτει πιστοποιητικό ενεργειακής απόδοσης Α και βρίσκεται σε καλή και ήσυχη περιοχή. Τιμή πώλησης 577,500 ευρώ, πλέον Φ.Π.Α.
Owning a home is a keystone of wealth… both financial affluence and emotional security.
Suze OrmanTo provide the best experiences, we and our partners use technologies like cookies to store and/or access device information. Consenting to these technologies will allow us and our partners to process personal data such as browsing behavior or unique IDs on this site and show (non-) personalized ads. Not consenting or withdrawing consent, may adversely affect certain features and functions.
Click below to consent to the above or make granular choices. Your choices will be applied to this site only. You can change your settings at any time, including withdrawing your consent, by using the toggles on the Cookie Policy, or by clicking on the manage consent button at the bottom of the screen.