Tσέρι, Λευκωσία, Κύπρος, 2480, Κύπρος
Προς πώληση
€184,000
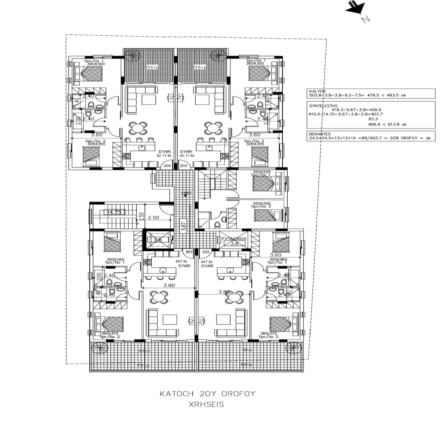
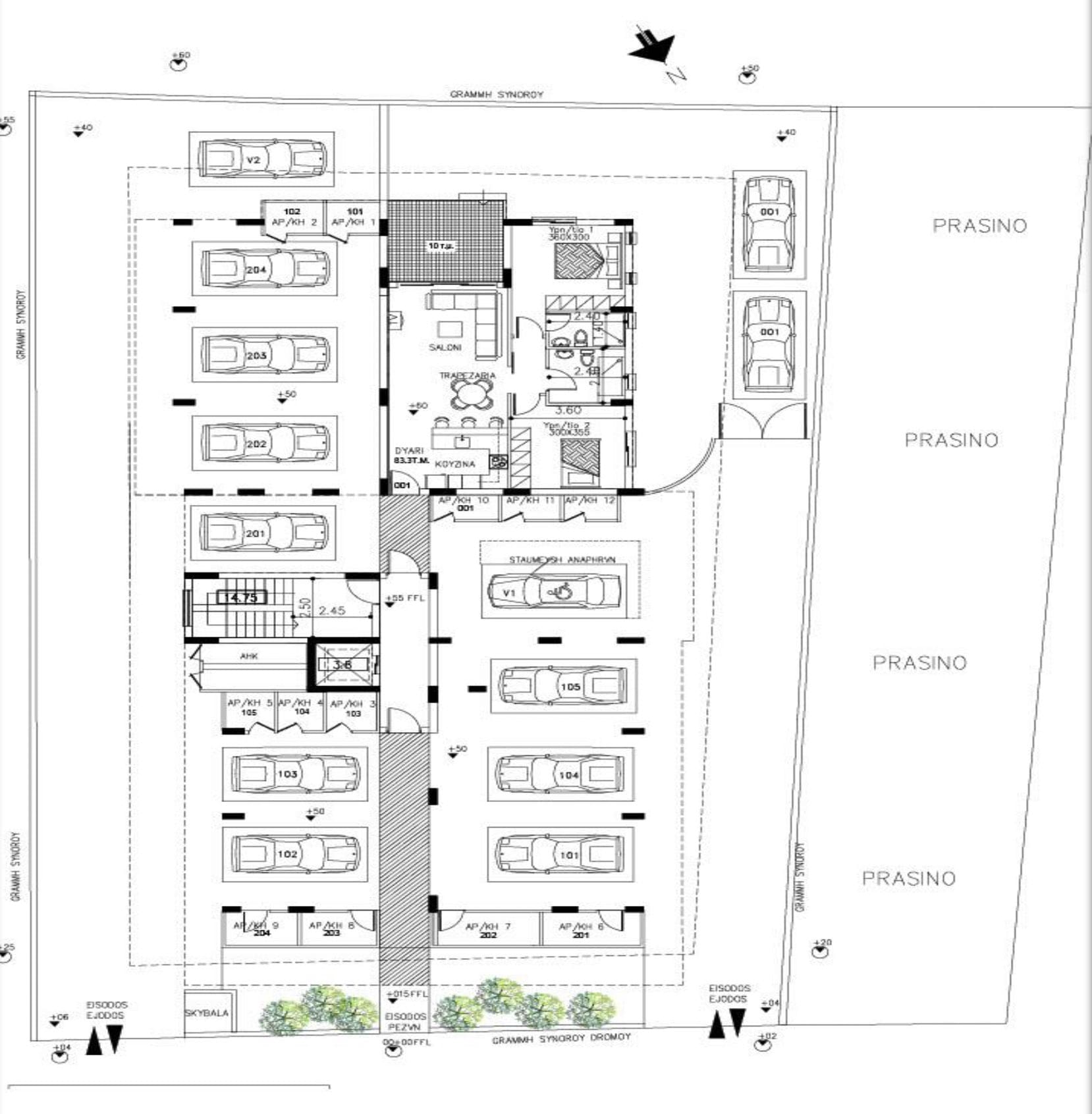
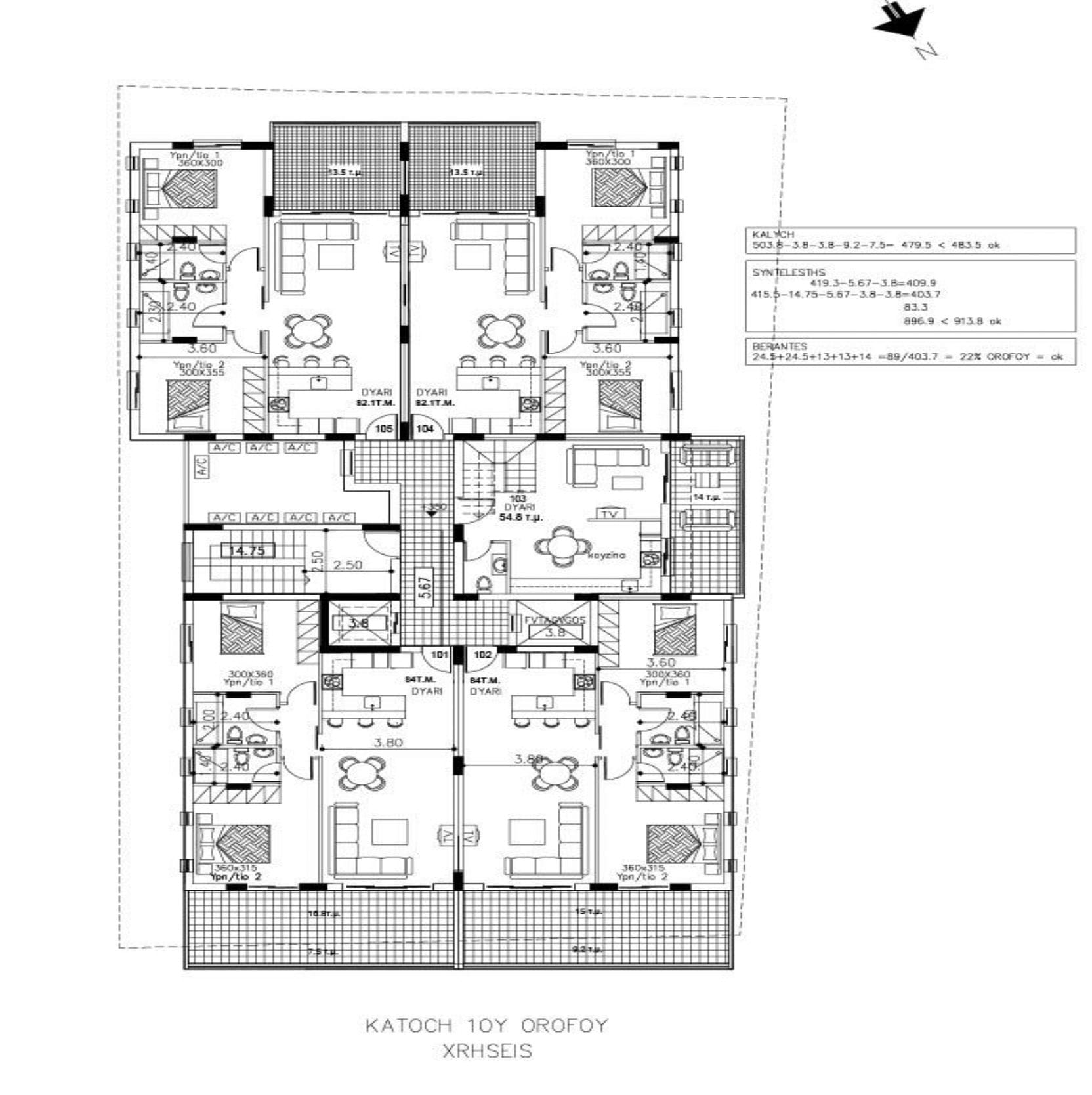
Πωλείται υπό ανέγερση ισόγειο διαμέρισμα δύο υπνοδωματίων στο Τσέρι – επαρχία Λευκωσίας, με 83 τ.μ. εσωτερικό χώρο, 13 τ.μ. καλυμμένη βεράντα και 101 τ.μ. αυλή, στο ισόγειο διώροφης πολυκατοικίας με 10 διαμερίσματα στο σύνολο. Διαθέτει ανεξάρτητη είσοδο, πρόνοιες κλιματισμού, πρόνοια για κεντρική θέρμανση, εγκατεστημένο σύστημα συναγερμού, εγκατεστημένο φωτοβολταϊκό σύστημα απόδοσης 3KW, en-suite στο κυρίως υπνοδωμάτιο, 2 χώρους στάθμευσης και αποθήκη. Το διαμέρισμα κατέχει Πιστοποιητικό Ενεργειακής Απόδοσης Α’. Τιμή πώλησης 184.000 ευρώ συν Φ.Π.Α.
Owning a home is a keystone of wealth… both financial affluence and emotional security.
Suze OrmanTo provide the best experiences, we and our partners use technologies like cookies to store and/or access device information. Consenting to these technologies will allow us and our partners to process personal data such as browsing behavior or unique IDs on this site and show (non-) personalized ads. Not consenting or withdrawing consent, may adversely affect certain features and functions.
Click below to consent to the above or make granular choices. Your choices will be applied to this site only. You can change your settings at any time, including withdrawing your consent, by using the toggles on the Cookie Policy, or by clicking on the manage consent button at the bottom of the screen.