Kapparis, Paralimni, Famagusta District, Cyprus, 5315, Cyprus
Προς πώληση
€275,000
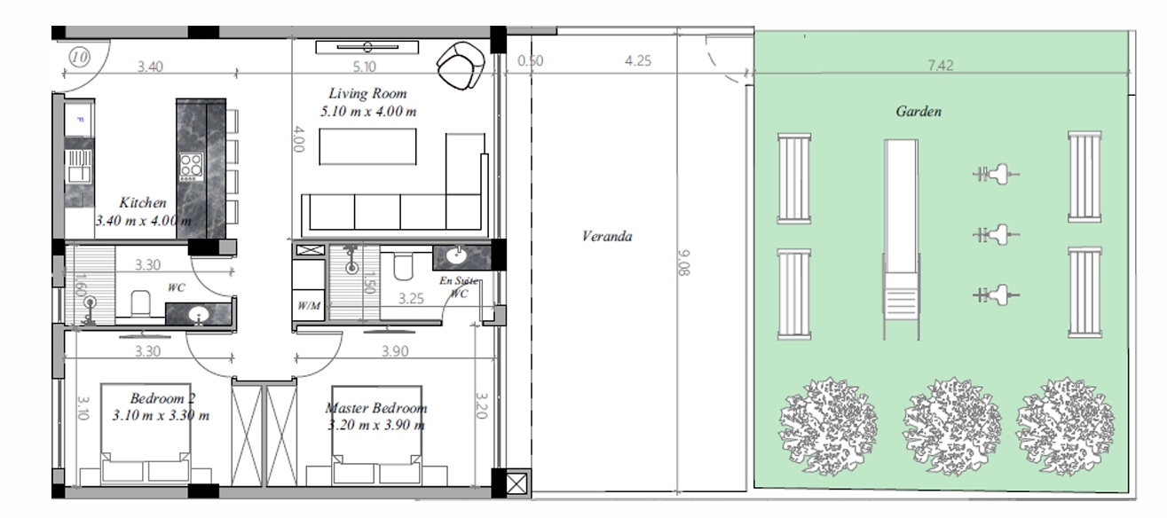
Πωλείται υπό ανέγερση ισόγειο διαμέρισμα δύο υπνοδωματίων στον Κάππαρη στην επαρχία Αμμοχώστου. Το διαμέρισμα βρίσκεται στο ισόγειο, διώροφης πολυκατοικίας. Αποτελείται από 78 τ.μ. εσωτερικούς καλυμμένους χώρους, 5 τ.μ. καλυμμένη βεράντα και 33 τ.μ. κήπο. Διαθέτει 2 χώρους υγεινής, en suite στο κυρίως υπνοδωμάτιο, ενιαία κουζίνα μαζί με το καθιστικό, πρόνοια για κλιματιστικά σε όλα τα δωμάτια, διπλά τζάμια, εξασφαλίζοντας βέλτιστη μόνωση και μειωμένη κατανάλωση ενέργειας, 3 κοινές πισίνες, καλυμμένο χώρο στάθμευσης και αποθήκη. Το διαμέρισμα βρίσκεται σε ήσυχη περιοχή και προσβάσιμη σε πολλές υπηρεσίες, όπως σχολεία, φαρμακεία και σούπερμαρκετ. Επίσης σε απόσταση 600 μέτρων θα βρείτε τις περίφημες παραλίες του Κάππαρη και του Πρωταρά. Όλα τα υλικά που θα χρησιμοποιηθούν είναι αριστης ποιότητας με πιστοποιητικό Ενεργειακής Απόδοσης Α. Τιμή πώλησης 275,000 ευρώ πλέον Φ.Π.Α.
Owning a home is a keystone of wealth… both financial affluence and emotional security.
Suze OrmanTo provide the best experiences, we and our partners use technologies like cookies to store and/or access device information. Consenting to these technologies will allow us and our partners to process personal data such as browsing behavior or unique IDs on this site and show (non-) personalized ads. Not consenting or withdrawing consent, may adversely affect certain features and functions.
Click below to consent to the above or make granular choices. Your choices will be applied to this site only. You can change your settings at any time, including withdrawing your consent, by using the toggles on the Cookie Policy, or by clicking on the manage consent button at the bottom of the screen.