Oroklini, Κύπρος
Προς πώληση
€580,000
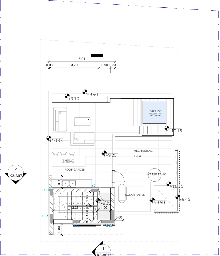
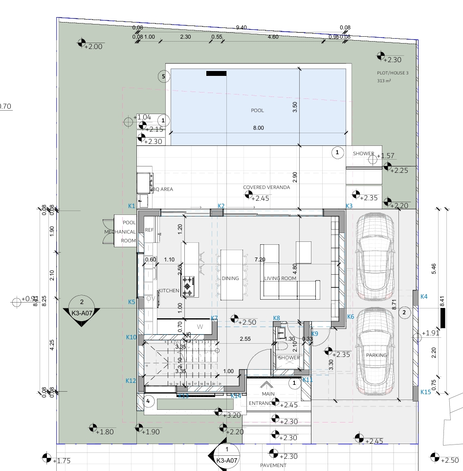
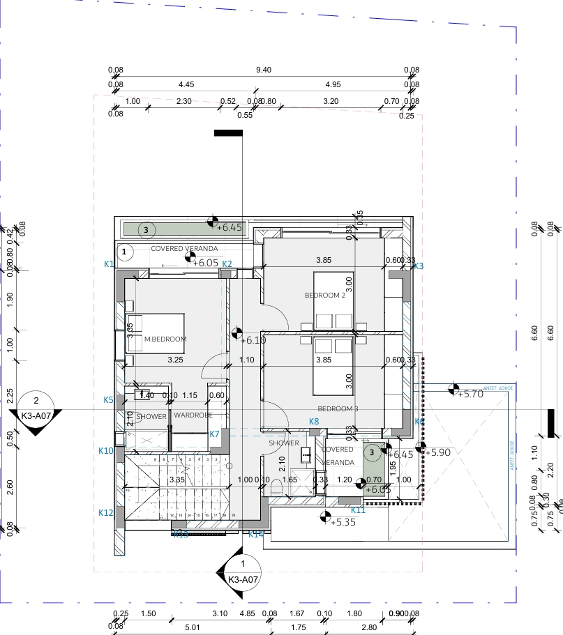
Πωλείται υπό ανέγερση πολυτελές κατοικία τριών υπνοδωματίων στην Ορόκλινη επαρχία Λάρνακας με 150 τ.μ. καλυμμένο εσωτερικό χώρο, 17 τ.μ. καλυμμένες βεράντες, 16 τ.μ. ακάλυπτες βεράντες και 41 τ.μ. κήπο οροφής σε 313 τ.μ. οικόπεδο. Το ισόγειο αποτελείται με ενιαίο χώρο κουζίνα/τραπεζαρία/σαλόνι και μια τουαλέτα επισκεπτών. Ο πρώτος όροφος αποτελείται με τρία υπνοδωμάτια, δύο χώρους υγιεινής εκ των οποίων ένα ιδιωτικό (en-suite) στο κυρίως υπνοδωμάτιο και σκάλα που οδηγεί στον κήπο οροφής. Εξωτερικά αποτελείται από καλυμμένες/ακαλύπτες βεράντες, ιδιωτική πισίνα, κήπος, ψησταριά και δύο καλυμμένους χώρους στάθμευσης. Διαθέτει smart home system, συστήματα κλιματισμού, φωτοβολταικό σύστημα, σύστημα κάμερες ασφαλείας CCTV, θυροτηλεόραση στην είσοδο, υποδαπέδια θέρμανση σε όλα τα μπάνια, κουνουπιέρες στα παράθυρα, σύστημα φίτλρου πόσιμου νερού και ίντερνετ Fiber Optic. Διαθέτει επίσης πρόνοια φόρτισης ηλεκτρικού οχήματος, πρόνοια ηλεκτρικών blinds και πρόνοια τζακούζι στον κήπο οροφής. Είναι περιφραγμένη κοινότητα και βρίσκεται σε πολύ καλή τοποθεσία μόλις 300 μέτρα από την παραλία και κοντά σε όλες τις υπηρεσίες και ψυχαγωγίες. Αναμενόμενη ημερομηνία παράδοσης Απρίλιος του 2027. Τιμή πώλησης 580,000 πλέον Φ.Π.Α.
Owning a home is a keystone of wealth… both financial affluence and emotional security.
Suze OrmanTo provide the best experiences, we and our partners use technologies like cookies to store and/or access device information. Consenting to these technologies will allow us and our partners to process personal data such as browsing behavior or unique IDs on this site and show (non-) personalized ads. Not consenting or withdrawing consent, may adversely affect certain features and functions.
Click below to consent to the above or make granular choices. Your choices will be applied to this site only. You can change your settings at any time, including withdrawing your consent, by using the toggles on the Cookie Policy, or by clicking on the manage consent button at the bottom of the screen.